

作品包括:
Word版说明书1份
CAD版本图纸,共9张
SW三维图一套
摘要
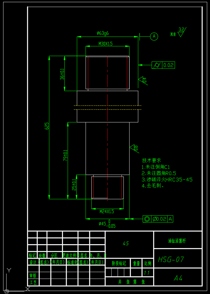
本文设计的是一种新型的HSG工程用液压缸,这种HSG型工程液压油缸是双作用单活塞杆、耳环安装型液压油缸,主要用于工程机械中,本文主要对这种油缸展开以下设计:油缸的型号意义和技术性能分析、油缸结构形式设计、油缸主要零件的工艺分析、油缸的三维设计、油缸的二维设计、油缸参数的计算等。这种油缸可以说在这种重型机械中非常实用,同时能应对恶劣的环境,应用广泛,对于此类型的油缸的研发设计及工艺分析是非常必要的,这种专用工程油缸的全新设计、全新优化是市场急需的,对于现如今工程作业日益剧增的需求的一个现实的研发支持。市场需求的增加、技术研发的迫切需求使得这种HSG工程用液压缸的研究设计及其工艺分析是必要的,这种油缸的设计研发有着广阔的前景。参数如下:工作最大负载F:97000N(查阅标准。推力范围:70360N-101790N),油缸公称压力P:16MPa,缸筒内径D:90mm,缸筒外径D1:106mm,缸杆直径d:63mm,油缸行程L:400mm。
温馨提示:
1、题目前面的备注【字母数字编号】为本站整理分类的编号,与课题内容无关,请选题时忽视;
2、若题目上备注三维,则表示文件里包含三维源文件,由于三维组成零件数量较多,为保证预览截图的简洁性,本站将三维文件夹进行了打包。三维及CAD预览截图,均为本站电脑打开软件进行截图的,保证能够打开,下载原件超高清,下载后解压即可;
3、本站所有资源如无特殊说明,都需要本地电脑安装Office2007。图纸软件为AutoCAD,PROE,UG,SolidWorks,CATIA等;
4、本站所有图文资料仅供用户学习参考,不作为任何商用或其他用途;
5、本站不保证下载资源的准确性、安全性和完整性, 不包修改,不支持退换,同时也不承担用户因使用这些下载资源对自己和他人造成任何形式的伤害或损失;
6、 下载文件中如有侵权或不适当内容,请与我们联系,我们立即纠正。