

作品包括:
Word版说明书1份
CAD版本图纸,共2张
SW三维图一套
摘要
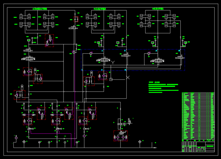
包含液压系统原理图,阀块零件图,阀组SW2016三维,设计说明书。 本文介绍的是一种1750单机弯辊机液压系统设计以及集成阀组的设计,从液压原理图的确定,到根据原理及基本参数确定液压集成块的阀块流道设计,安装设计,再到各种控制阀的选配和安装,最终实现了所需功能的集成阀组以及实现各个动作的液压系统。采用集成阀组,然后进行机加工孔口螺纹,这样会大大减少压力损失,提高整个阀组的通油能力,减少能量损失 ,提高了效率,降低了成本,是一种新型的设计方案,有着广阔的前景。
温馨提示:
1、题目前面的备注【字母数字编号】为本站整理分类的编号,与课题内容无关,请选题时忽视;
2、若题目上备注三维,则表示文件里包含三维源文件,由于三维组成零件数量较多,为保证预览截图的简洁性,本站将三维文件夹进行了打包。三维及CAD预览截图,均为本站电脑打开软件进行截图的,保证能够打开,下载原件超高清,下载后解压即可;
3、本站所有资源如无特殊说明,都需要本地电脑安装Office2007。图纸软件为AutoCAD,PROE,UG,SolidWorks,CATIA等;
4、本站所有图文资料仅供用户学习参考,不作为任何商用或其他用途;
5、本站不保证下载资源的准确性、安全性和完整性, 不包修改,不支持退换,同时也不承担用户因使用这些下载资源对自己和他人造成任何形式的伤害或损失;
6、 下载文件中如有侵权或不适当内容,请与我们联系,我们立即纠正。