

作品包括:
Word版说明书1份,共44页,约16000字
任务书一份
开题报告一份
外文翻译一份
CAD版本图纸,共5张

摘 要
机械手在当代发展社会中有着重要的角色。它可以运输物件、分拣物体、可以帮我们做一些体力劳动。它可以反映自动化工业生产和机械化工业生产,为了保护个人的安全是能够控制严格的条件,所以在机械制造,冶金学中被广泛使用。机械手技术的发展会提高很多方面技术的发展,它的发展和普遍水平也可以从一个方面体现一个国家科学技术和工业生产技术的提高,机械手因为有这么多优点从而有了很大的重视。
本设计结合了近几年机械手的发展情况,通过对机械手方面的设计和分析,通过技术仔细的分析,采用了用气动驱动的设计方法和可编程控制器控制的设计方法。可以使它们之间进行互补,并熟悉各自的特点。用吸盘对工件进行吸持,对它的整体方案设计、机械部分设计和电气控制系统方面完成分析。采用了气动驱动的方法驱动,通过可编程控制器的操控来实现系统性能的初始化、机械手的操作动作和操作故障报警等性能。
通过对本设计的学习,学到了即经济又实用的真空吸盘式机械手设计的方案。
关键词:机械手;气动控制;吸盘;可编程控制器
目 录
摘 要 I
Abstract II
第1章 前言 1
1.1 研究的目的及意义 1
1.2 机械手在国内外现状和发展趋势 1
1.3 主要研究内容 2
1.4小结 2
第2章 系统整体方案设计 3
2.1系统设计目标 3
2.2总体方案设计 4
2.3技术路线 5
2.4 小结 6
第3章 机械结构设计 7
3.1执行系统分析 7
3.1.1圆柱坐标式机械手 7
3.1.2执行机构组成 7
3.1.3执行机构工作原理 9
3.2驱动系统分析 10
3.2.1 驱动系统控制设计 11
3.2.2气动元件分析 12
3.2.3气动回路工作原理 13
3.3真空吸盘式气动机械手设计主要技术参数 19
3.3.1机械手臂部的设计及参数计算 19
3.3.2轴的设计 23
3.3.3真空元件设计及参数计算 24
3.4小结 26
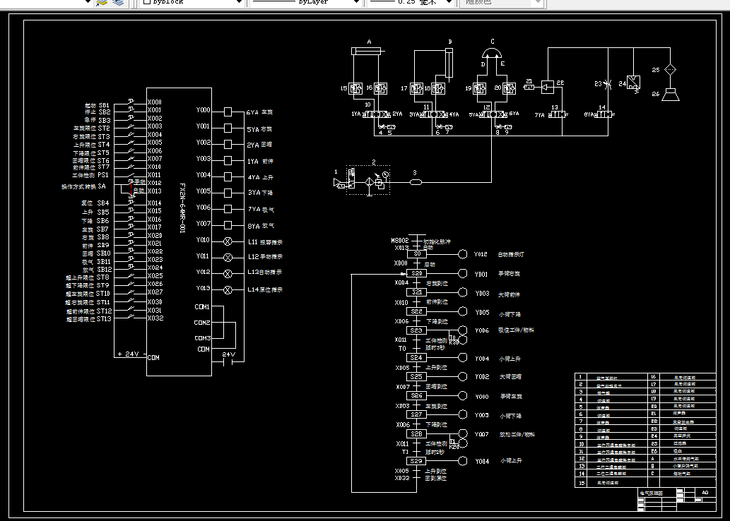
第4章 电气控制系统设计 27
4.1 控制系统分析设计 27
4.1.1 控制系统的组成结构 27
4.1.2 传感器的选择 27
4.1.3 PLC种类及型号分析 27
4.1.4 I/O点数分配 28
4.2 PLC程序设计 29
4.2.1 总体程序框图 29
4.2.2 手动控制程序 31
4.2.3 自动控制程序 31
4.2.4 PLC外部接线图 32
4.3 机械手控制原理 33
4.4 小结 36
总 结 37
参考文献 38
致 谢 40
温馨提示:
1、题目前面的备注【字母数字编号】为本站整理分类的编号,与课题内容无关,请选题时忽视;
2、若题目上备注三维,则表示文件里包含三维源文件,由于三维组成零件数量较多,为保证预览截图的简洁性,本站将三维文件夹进行了打包。三维及CAD预览截图,均为本站电脑打开软件进行截图的,保证能够打开,下载原件超高清,下载后解压即可;
3、本站所有资源如无特殊说明,都需要本地电脑安装Office2007。图纸软件为AutoCAD,PROE,UG,SolidWorks,CATIA等;
4、本站所有图文资料仅供用户学习参考,不作为任何商用或其他用途;
5、本站不保证下载资源的准确性、安全性和完整性, 不包修改,不支持退换,同时也不承担用户因使用这些下载资源对自己和他人造成任何形式的伤害或损失;
6、 下载文件中如有侵权或不适当内容,请与我们联系,我们立即纠正。