欢迎来到龙图网在线图文分享平台-CAD图纸,设计说明书,工业设计3D模型,三维软件下载!   客服QQ:2363701252
热搜:

工艺夹具 模具设计 数控编程 土木工程 3D模型

A514-锂电池盒下固定架注射模设计[含SW三维图] 下载积分:50 资料编号: A514

1.打开支付宝或者微信扫描二维码。
2.填写金额:50 
3.添加备注,填写资料编号:
资料编号: A514
4.支付成功后,请发资料编号到邮箱:jxsj168@qq.com
会有专人在15分钟内把资料发到您邮箱
备注:如果付款忘记填写资料编号,则发邮件时附带您的交易明细截图即可。
请耐心等待,如超过30分钟还没收到,请联系客服QQ:2363701252
点击分享:

作品描述

作品包括:

说明书1份,共41页,约18000字左右

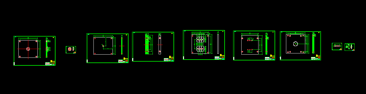
CAD版本本图纸,共11张

SW三维图一份


摘  要

    本文主要是以锂电池盒下固定架为基础,通过测量产品的尺寸,对锂电池盒下固定架进行建模,并对该塑件的模具进行设计,包括塑件成品的设计、工艺参数的分析与计算、工作部分的设计、模具结构的设计和加工方案的制定,注射成型是塑料成型的一种重要方法,它主要适用于热塑性的成型可以一次成型形状复杂的精密塑件,本次设计就是将锂电池盒下固定架作为设计模型,将注塑模具的相关知识作为依据,阐述塑料注塑模具的整体设计过程。

本文重点介绍了锂电池盒下固定架的注射模设计,主要运用UG及其AUTOCAD制图软件来完成整个设计工作,此外还利用了Moldflow Adviser 7.1软件对塑件进行模流分析。从中学习到了许多的模具设计的知识和对在校所学知识的深化,设计的整个过程实现了低成本,高效率,有利于提高模具的生产效率和节约了生产成本,并大大缩短了生产的周期。

关键词:塑料模具; 模具设计; 生产周期

目  录

第一章 前言 2

   1.1 塑性模具的国内外现状及发展趋势 3

1.2 塑料模具工业现状及发展方向 3

   1.3 模具设计流程 4

第二章 注塑件的设计 6

   2.1 功能设计 6

   2.2 材料选择 6

   2.3 结构设计 7

   2.4 塑件的尺寸精度及表面质量 8

第三章 该塑件材料分析和工艺性分析 9

   3.1 材料分析 11

   3.2 工艺分析 12

     3.2.1 尺寸及精度 12

     3.2.2 表面粗糙度 12

     3.2.3 形状 12

     3.2.4 斜度 12

第四章 模具结构设计 16

   4.1型腔数目的确定 16

   4.2分型面的确定 17

   4.3浇口的确定 17

   4.4模具材料的确定 17

   4.5浇注系统的设计 18

   4.6成型零件结构设计 20

   4.7 抽芯结构设计 21

   4.8模架的选用 22

   4.9导向机构的设计 23

   4.10顶出机构的设计 24

   4.11排气设计 24

   4.12温度调节系统设计 25

第五章 成型零部件的设计 26

   5.1 成型零部件的结构设计 19

   5.2 成型零部件工作尺寸计算 19

   5.3 成型零部件的强度与刚度计算 19

第六章 模具总装设计 28

   6.1模具装配及加工要求 28

   6.2模具工作原理 30

谢辞 35

参考文献 36

温馨提示:

1、题目前面的备注【字母数字编号】为本站整理分类的编号,与课题内容无关,请选题时忽视;

2、若题目上备注三维,则表示文件里包含三维源文件,由于三维组成零件数量较多,为保证预览截图的简洁性,本站将三维文件夹进行了打包。三维及CAD预览截图,均为本站电脑打开软件进行截图的,保证能够打开,下载原件超高清,下载后解压即可;

3、本站所有资源如无特殊说明,都需要本地电脑安装Office2007。图纸软件为AutoCAD,PROE,UG,SolidWorks,CATIA等;

4、本站所有图文资料仅供用户学习参考,不作为任何商用或其他用途;
5、本站不保证下载资源的准确性、安全性和完整性, 不包修改,不支持退换,同时也不承担用户因使用这些下载资源对自己和他人造成任何形式的伤害或损失;

6、 下载文件中如有侵权或不适当内容,请与我们联系,我们立即纠正。


线