欢迎来到龙图网在线图文分享平台-CAD图纸,设计说明书,工业设计3D模型,三维软件下载!   客服QQ:2363701252
热搜:

工艺夹具 模具设计 数控编程 土木工程 3D模型

A529-柴油机齿轮室盖钻镗专机总体及夹具设计 下载积分:50 资料编号: A529

1.打开支付宝或者微信扫描二维码。
2.填写金额:50 
3.添加备注,填写资料编号:
资料编号: A529
4.支付成功后,请发资料编号到邮箱:jxsj168@qq.com
会有专人在15分钟内把资料发到您邮箱
备注:如果付款忘记填写资料编号,则发邮件时附带您的交易明细截图即可。
请耐心等待,如超过30分钟还没收到,请联系客服QQ:2363701252
点击分享:

作品描述

作品包括:

说明书1份,共25页,约9000字左右

CAD版本本图纸,共8张


摘 要

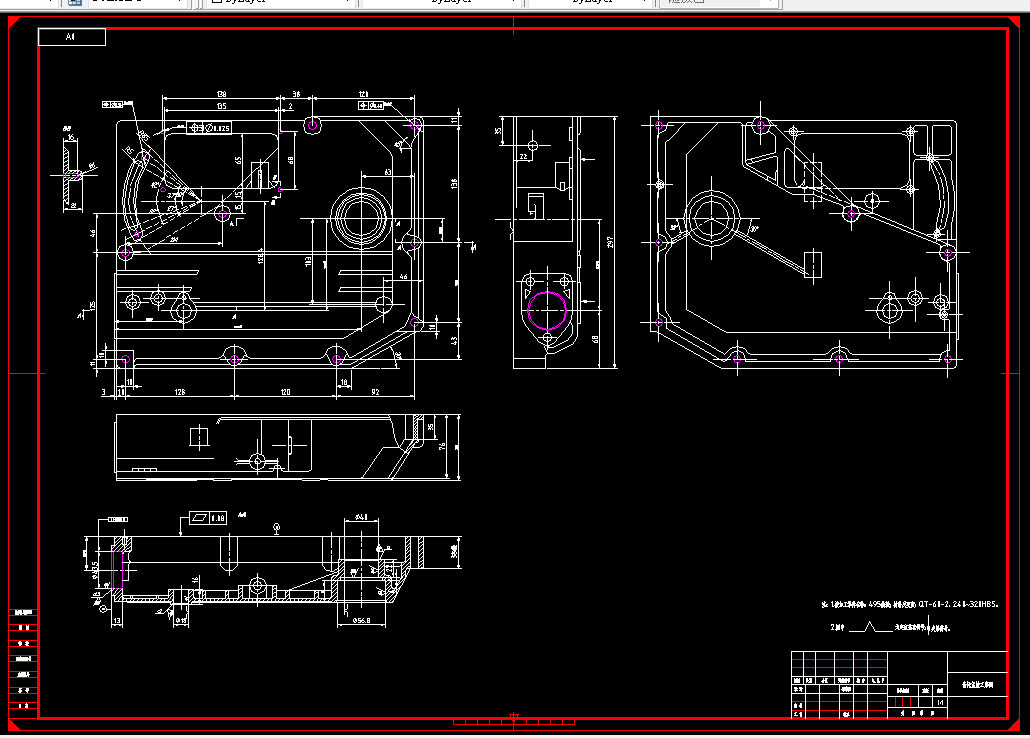
    本篇设计是柴油机齿轮室盖钻镗专机总体及夹具设计。齿轮室盖零件的主要加工表面是外圆表面及孔。一般来说,保证平面的加工精度与保证孔系的加工精度相比,保证平面的加工精度比较容易。孔径加工都是选用专用钻夹具,夹紧方式一般选用手动夹紧,夹紧可靠。因此生产效率较高。能够满足设计要求。

    本设计将钻床和卧式镗床结构有机地结合为一体,降低了机器成本,而且节省了加工时间,提高了工作生产效率。


关键词:柴油机齿轮室盖;主轴;总图绘制;多轴箱  


目  录

摘要 I

Abstract II

第1章  绪论 1

1.1  本课题研究的背景及意义 1

1.2  本论文研究的主要内容 3

第2章  柴油机齿轮室盖钻镗专机总体设计 5

2.1  专用机床工艺方案拟定 7

2.2  加工工序图 9

2.3  加工示意图 10

2.4  机床联系尺寸图 12

2.5  机床生产率计算卡 14

第3章  多轴箱的设计 15

3.1  多轴箱的组成及表示方法 17

3.2  多轴箱通用零件 18

3.3  绘制多轴箱原始依据图 19

3.4  主轴齿轮确定、动力计算 20

3.5  多轴箱传动系统设计 21

3.6  多轴箱坐标检查图 22

第4章  夹具设计 22

4.1  夹具概述 23

4.2  夹紧机构 23

4.3  夹紧力计算 23

结论 24

致谢 25

参考文献 26

温馨提示:

1、题目前面的备注【字母数字编号】为本站整理分类的编号,与课题内容无关,请选题时忽视;

2、若题目上备注三维,则表示文件里包含三维源文件,由于三维组成零件数量较多,为保证预览截图的简洁性,本站将三维文件夹进行了打包。三维及CAD预览截图,均为本站电脑打开软件进行截图的,保证能够打开,下载原件超高清,下载后解压即可;

3、本站所有资源如无特殊说明,都需要本地电脑安装Office2007。图纸软件为AutoCAD,PROE,UG,SolidWorks,CATIA等;

4、本站所有图文资料仅供用户学习参考,不作为任何商用或其他用途;
5、本站不保证下载资源的准确性、安全性和完整性, 不包修改,不支持退换,同时也不承担用户因使用这些下载资源对自己和他人造成任何形式的伤害或损失;

6、 下载文件中如有侵权或不适当内容,请与我们联系,我们立即纠正。


线