欢迎来到龙图网在线图文分享平台-CAD图纸,设计说明书,工业设计3D模型,三维软件下载!   客服QQ:2363701252
热搜:

工艺夹具 模具设计 数控编程 土木工程 3D模型

Z1347-实用电风扇塑料成型模具的设计-扇叶 下载积分:50 资料编号: Z1347

1.打开支付宝或者微信扫描二维码。
2.填写金额:50 
3.添加备注,填写资料编号:
资料编号: Z1347
4.支付成功后,请发资料编号到邮箱:jxsj168@qq.com
会有专人在15分钟内把资料发到您邮箱
备注:如果付款忘记填写资料编号,则发邮件时附带您的交易明细截图即可。
请耐心等待,如超过30分钟还没收到,请联系客服QQ:2363701252
点击分享:

作品描述

作品包括:

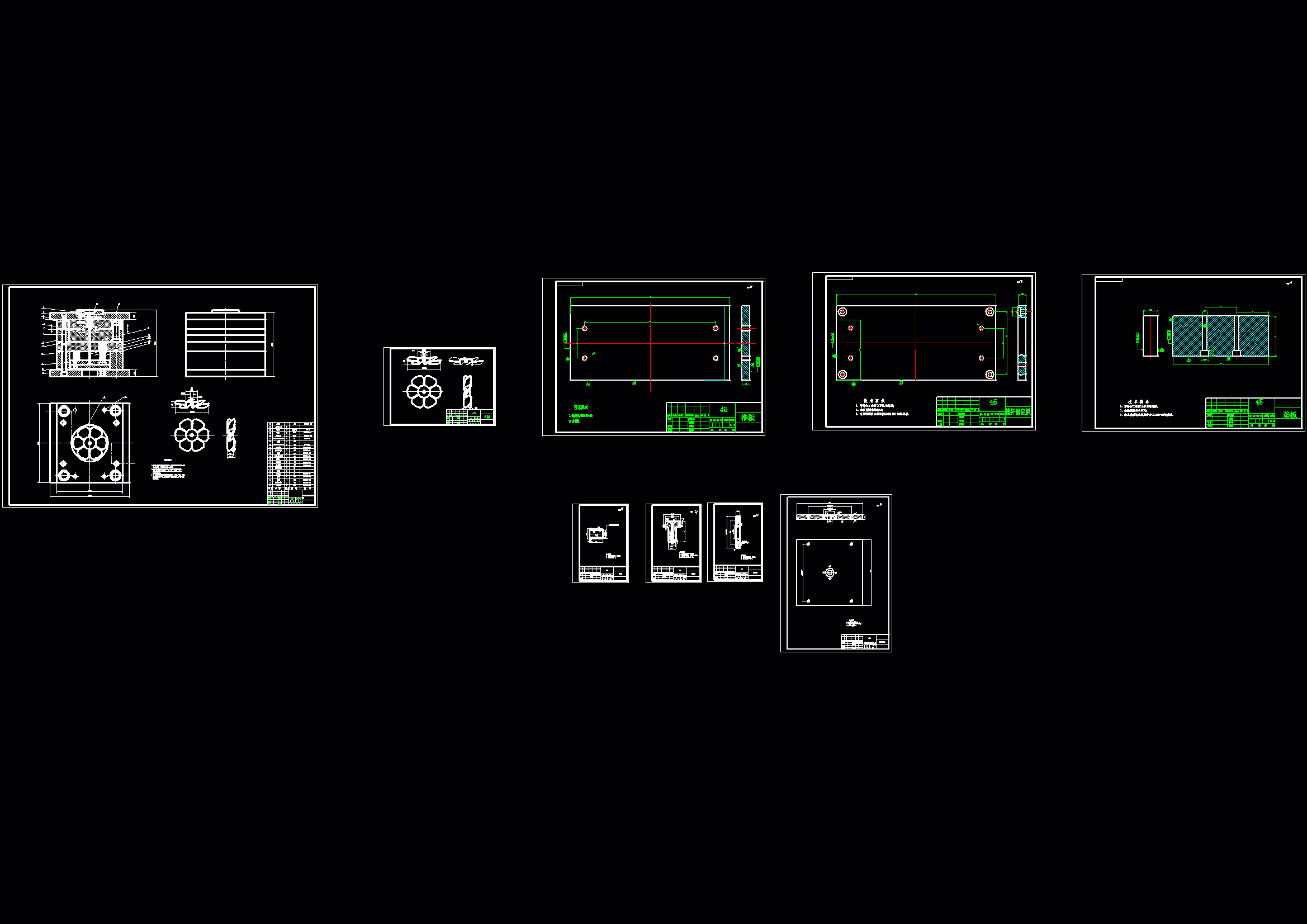
Word版说明书1份,共38页,约17000字

CAD版本图纸,共9张

Proe三维塑件图1张

2}%D[OWHJPYA$QJ5K5N2Q`6.png

摘要

塑料工业是当今世界上增长最快的工业门类之一,而注塑模具是其中发展较快的种类,因此,研究注塑模具对了解塑料产品的生产过程和提高产品质量有很大意义。

本论文介绍了注射成型的基本原理,特别是单分型面注射模具的结构与工作原理,对注塑产品提出了基本的设计原则,详细介绍了冷流道注射模具浇注系统、温度调节系统和顶出系统的设计过程,并对模具强度要求做了说明。设计成型零部件以及设计合理的推出机构。对设计进行验证主要是对注射机的相关重要参数进行验证,包括模具闭合厚度、模具安装尺寸、模具开模行程、注射机的锁模力等。在校验合格后,进行成型零件加工工艺过程的制定,既要保证塑件的质量,又要兼顾经济性。

最后则是模具的装配环节,包括制定装配步骤、明确注意事项等。

通过本设计,可以对注塑模具有一个初步的认识,注意到设计中的某些细节问题,了解模具结构及工作原理;通过对AutoCAD的学习,可以建立较简单零件的零件库,从而有效的提高工作效率。

关键词:生产工艺,注射模,成型零件,装配,塑料模具,分型面 

目  录

摘要 I

Abstract II

第1章 绪论 1

1.1 塑料模的概况 1

1.1.1 中国塑料模具市场分析 1

1.1.2 未来模具设计行业的主要发展方向 2

1.1.3 目前我国塑料模具存在的问题 2

1.2 塑料模的常用类型 3

1.3 论文的主要研究目标及内容 3

1.3.1 设计目标 3

1.3.2 设计的主要内容 3

1.3.3 设计的关键技术问题 4

第2章 风扇叶的成型工艺参数及成型条件 5

2.1 塑料风叶设计与分析 5

2.2 注射性能分析 5

2.3 材料选择 7

2.3.1塑料介绍 7

2.3.2 分析塑料材料 7

2.3.3材料的确定 9

第3章 成型方案的确定 10

3.1分型面的选择 10

3.2型腔数目的确定及布置 11

3.2.1型腔数目的确定 11

3.2.2型腔的布置形式 11

3.3 浇注系统的设计 12

3.3.1浇注系统的功用和设计要求 12

3.3.2主流道设计 13

第4章 成型零件的设计与计算 17

4.1概述 17

4.2 型腔的结构设计 17

4.3 型芯的结构设计 18

4.4 叶片成型设计 18

第5章 脱模导向机构设计 21

5.1合模导向机构的设计 21

5.2塑件脱模的机构设计 22

5.3开模力和脱模力计算、推杆数目与直径的计算 24

第6章 模具温度控制系统的设计 28

第7章 注射机参数的校核 30

总结 33

参考文献 35

致 谢 37

温馨提示:

1、题目前面的备注【字母数字编号】为本站整理分类的编号,与课题内容无关,请选题时忽视;

2、若题目上备注三维,则表示文件里包含三维源文件,由于三维组成零件数量较多,为保证预览截图的简洁性,本站将三维文件夹进行了打包。三维及CAD预览截图,均为本站电脑打开软件进行截图的,保证能够打开,下载原件超高清,下载后解压即可;

3、本站所有资源如无特殊说明,都需要本地电脑安装Office2007。图纸软件为AutoCAD,PROE,UG,SolidWorks,CATIA等;

4、本站所有图文资料仅供用户学习参考,不作为任何商用或其他用途;
5、本站不保证下载资源的准确性、安全性和完整性, 不包修改,不支持退换,同时也不承担用户因使用这些下载资源对自己和他人造成任何形式的伤害或损失;

6、 下载文件中如有侵权或不适当内容,请与我们联系,我们立即纠正。


线