

作品包括:
说明书1份,共49页,约12000字左右
CAD版本本图纸,共7张
SW三维图2张
摘 要
本文首先对右轴承座组件零件进行分析,通过对右轴承座组件进行的研究和分析,描述了它的毛坯制造形式、机械加工余量、基准选择、工序尺寸和毛坯尺寸的确定,以及切削用量和工时的计算等相关内容。为了提高劳动生产率,降低劳动强度,保证加工质量,与指导老协商后,觉得用夹具比较合适。
在这次毕业设计中,根据课题所给的零件图、技术要求,通过查阅相关资料和书籍,了解和掌握了的机械加工工艺和编程的一般方法和步骤,并运用这些方法和步骤进行了右轴承座组件的机械加工工艺及夹具设计。整个设计的指导思想“简便、高效、经济”。力求生产处符合要求的产品。
关键词:右轴承座组件,加工工艺,夹紧,夹具
目录
第一章 绪论 6
1.1课题背景 7
1.2夹具的发展史 8
1.3小结 9
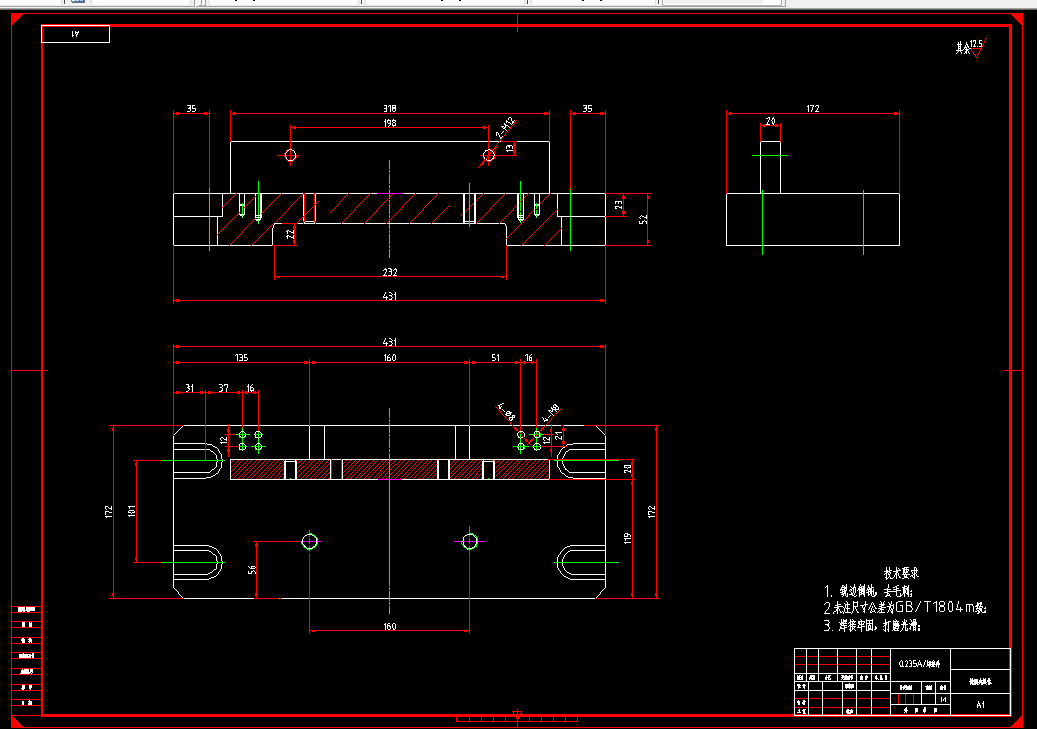
第二章 右轴承座组件的加工工艺规程设计 10
2.1零件的分析 11
2.1.1零件的作用 12
2.1.2零件的工艺分析 13
2.2确定生产类型 13
2.3确定毛坯 13
2.3.1确定毛坯种类 13
2.3.2确定铸件加工余量及形状 14
2.3.3绘制铸件零件图 14
2.4工艺规程设计 14
2.4.1选择定位基准 14
2.4.2制定工艺路线 15
2.4.3选择加工设备和工艺设备 16
2.4.4机械加工余量、工序尺寸及公差的确定 17
2.5确定切削用量及基本工时 18
2.5.1工序1:粗铣、精铣底部大端面,保证厚度尺寸27到位 18
2.5.3工序3:沿70X90腰孔中心轴线处铣开工件,一分为二 19
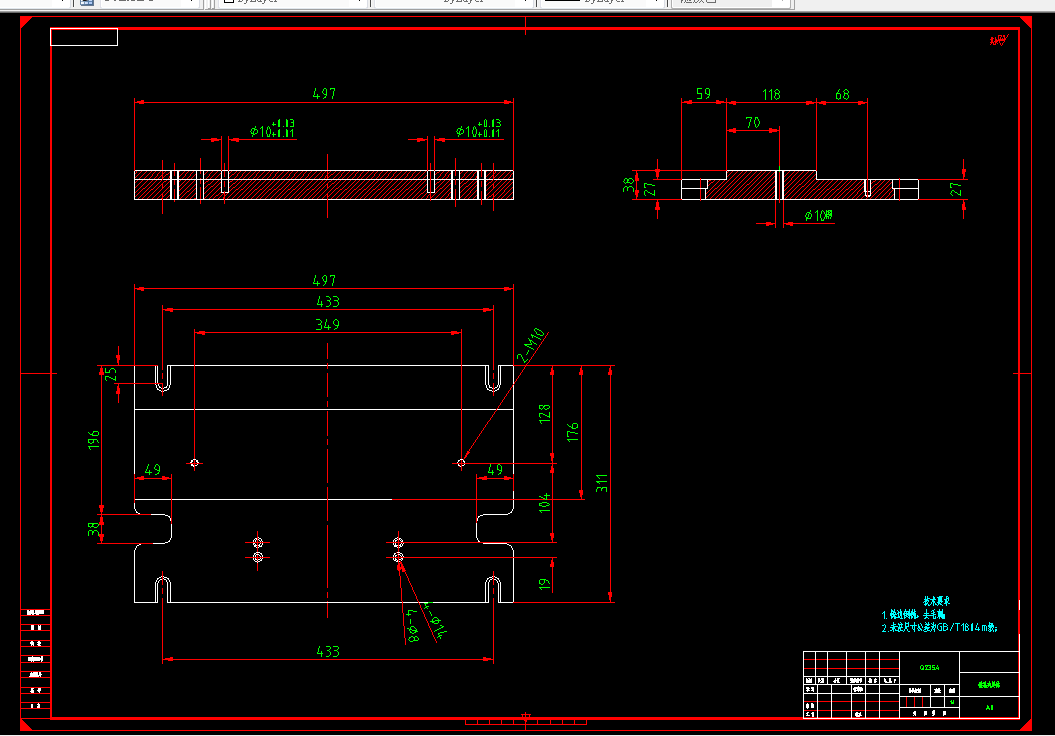
2.5.4工序4:粗铣、精铣右轴承盖上下端面,保证高度尺寸98到位 21
2.5.5工序5:粗、精镗右轴承盖孔 至尺寸 21
2.5.6工序6:粗、精镗右轴承盖孔 至尺寸 22
2.5.7工序7:钻、攻右轴承盖上3-M10螺纹孔 23
2.5.8工序8:钻、绞、忽 23
2.5.9工序9:钻攻右轴承盖表面2-M8螺纹孔,深15 24
2.5.10工序10:粗铣、精铣右轴承座主体顶面,保证高度尺寸239到位 24
2.5.11工序11:粗、精镗右轴承座主体孔 至尺寸 25
2.5.12工序12:粗、精镗右轴承座主体孔 至尺寸 25
2.5.13工序13:钻、攻右轴承座主体2-M16螺纹孔 27
2.5.14工序14:钻攻右轴承座主体表面2-M8螺纹孔,深15 29
2.6本章小结 29
第三章 专用夹具设计 32
3.1镗孔夹具设计 34
3.1.1问题的提出 36
3.1.2夹具的设计 38
3.2钻孔夹具设计 40
3.2.1问题的提出 45
3.2.2夹具的设计...............................................................................................................46
第四章 结论 47
参 考 文 献 48
致谢 49
温馨提示:
1、题目前面的备注【字母数字编号】为本站整理分类的编号,与课题内容无关,请选题时忽视;
2、若题目上备注三维,则表示文件里包含三维源文件,由于三维组成零件数量较多,为保证预览截图的简洁性,本站将三维文件夹进行了打包。三维及CAD预览截图,均为本站电脑打开软件进行截图的,保证能够打开,下载原件超高清,下载后解压即可;
3、本站所有资源如无特殊说明,都需要本地电脑安装Office2007。图纸软件为AutoCAD,PROE,UG,SolidWorks,CATIA等;
4、本站所有图文资料仅供用户学习参考,不作为任何商用或其他用途;
5、本站不保证下载资源的准确性、安全性和完整性, 不包修改,不支持退换,同时也不承担用户因使用这些下载资源对自己和他人造成任何形式的伤害或损失;
6、 下载文件中如有侵权或不适当内容,请与我们联系,我们立即纠正。