

作品包括:
说明书1份,共38页,约14000字左右
工序卡一张
过程卡一张
CAD版本本图纸,共15张

摘要
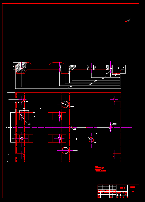
本次设计的是弹簧吊耳的加工工艺以及加工Φ30两孔的夹具的设计,弹簧吊耳一般分为前后吊耳两种,前吊耳是用于固定钢板与后桥定位,只能转动,不能移动,需要经常加注黄油或更换胶套,后吊耳则可以向后移动或延伸,一般大货车后吊耳是固定的,只是钢板延伸。小车则是活动吊耳,钢板与吊耳同时活动,主要作用于载重后,使其钢板能够得到延伸、伸展,能有正常的缓冲作用。限制钢板弹簧位置,并随着钢板弹簧上下运动而前后运动。
夹具设计是针对Φ30两孔的专用夹具,考虑到零件的数量比较大,属于大规模生产,所以效率是非常重要的,所以此设计丢去了以往的老方式,采用技术比较先进的气动作为夹紧力来源。零件并没有过高的技术要求,所以采用一个销定位,配合夹具的左右同时夹紧便可满足要求。
关键词:工艺设计、基准选择、切削用量、夹具设计、定位基准、定位误差。
目 录
中文摘要………………………………………………………………………….…..…Ⅰ
英文摘要...........................................................................................................................Ⅱ
前言……………………………………………………………………………….……...1
第1章 零件的分析……………………………………………………………....…….1
1.1 零件的作用………………………………………………………………………….1
1.2 零件的工艺分析…………………………………………………………………….2
第2章 工艺规程设计………………………………………………………………….3
2.1 确定毛坯的制造形式…………………………………………………………….….3
2.2 基准的选择……………………………………………………………………….….3
2.3 制定工艺路线…………………………………………………………………….….4
2.3.1 工艺路线方案一...................................................................................................5
2.3.2 工艺路线方案二...................................................................................................5
2.3.3 工艺路线的比较与最终工艺方案.......................................................................6
2.4 机械加工余量和工序尺寸及毛坯尺寸的确定……………………………………..6
2.5 确定切削用量及基本工时…………………………………………………………..7
2.5.1 工序一…………………………………………………………………………...9
2.5.2 工序二...................................................................................................................11
2.5.3 工序三…………………………………………………………………………..12
2.5.4 工序四…………………………………………………………………………..16
2.5.5 工序五…………………………………………………………………………..19
2.5.6 工序六…………………………………………………………………………..20
第3章 专用夹具设计....................................................................................................21
3.1 问题的提出………………………………………………………………………….21
3.2 夹具设计………………………………………………………………………….…21
3.2.1 定位基准的选择……………………………………………………………..…21
3.2.2 夹紧力的计算及汽缸的相关数据计算..............................................................21
3.2.3 定位误差的分析…………………………………………………………….….24
3.2.4 夹具设计及操作的简要说明…………………………………………………...25
第4章 结论………………………………………………………………………..26
参考文献 27
致谢 28
附录A:XXX
附录B:XXX
温馨提示:
1、题目前面的备注【字母数字编号】为本站整理分类的编号,与课题内容无关,请选题时忽视;
2、若题目上备注三维,则表示文件里包含三维源文件,由于三维组成零件数量较多,为保证预览截图的简洁性,本站将三维文件夹进行了打包。三维及CAD预览截图,均为本站电脑打开软件进行截图的,保证能够打开,下载原件超高清,下载后解压即可;
3、本站所有资源如无特殊说明,都需要本地电脑安装Office2007。图纸软件为AutoCAD,PROE,UG,SolidWorks,CATIA等;
4、本站所有图文资料仅供用户学习参考,不作为任何商用或其他用途;
5、本站不保证下载资源的准确性、安全性和完整性, 不包修改,不支持退换,同时也不承担用户因使用这些下载资源对自己和他人造成任何形式的伤害或损失;
6、 下载文件中如有侵权或不适当内容,请与我们联系,我们立即纠正。