

作品包括:
Word版设计说明书1份,共31页,约9200字
CAD版本图纸,共6张
SW三维图一套
仿真动画视频一套
![1750597738912656.png MXZ9]AM3QN5N5%8W)V1_I9G.png](/uploadfiles/20250622/1750597738912656.png)
摘要
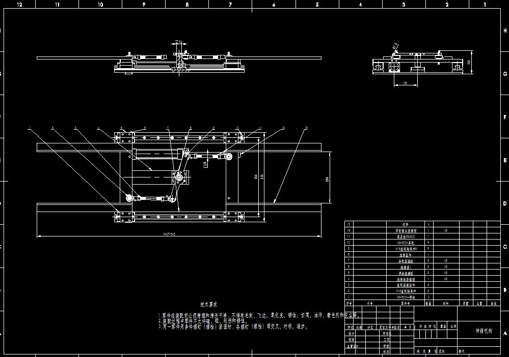
如何利用有限的城市空间提供更多的停车位,成为一个需要解决的城市问题。一方面与普通停车场相比,立体车库可以在同一区域容纳更多的车辆。另一方面,与地下车库相比,立体车库的建设成本更低,可以适应不同的客户需求。因此,深入研究立体车库技术,实现一个安全、可靠、稳定的立体车库系统,是一项非常有意义的工作。梳齿伸缩的目的是方便搬运机构整体能行走到汽车底部,然后将梳齿伸出到汽车轮胎位置,通过顶升机构将汽车升起来脱离地面。其中梳齿伸缩机构通过液压缸伸缩带动旋转结构旋转,然后通过连杆带动梳齿实现伸缩功能。 本文针对汽车搬运的实际需求,设计了一种升降式梳齿汽车搬运器。首先,对市场上已有的汽车搬运器进行了调研和分析,针对其存在的问题,提出了升降式梳齿汽车搬运器的设计方案。其次,使用SolidWorks软件对该搬运器进行了三维建模,并进行了机械结构与动态仿真分析,验证了其设计的合理性。最后,对该搬运器的性能指标进行了测试和分析,结果表明该搬运器具有较好的搬运效率和稳定性,能够满足实际应用需求。本文的研究成果对于汽车搬运领域的发展具有一定的参考价值。
[关键词] 停车;空间;梳齿;伸缩;顶升机构
目 录
1. 绪论 1
1.1研究背景及意义 1
1.2国内外研究现状 1
1.3研究内容和方法 4
1.3.1 研究内容 4
1.3.2 研究方法 4
2.升降式梳齿汽车搬运器总体方案设计 5
3.顶升机构的详细设计 6
3.1顶升机构运动机理 6
3.2机构受力分析及运动机理 7
3.3顶升速度的确定 10
3.4 顶升机构的运动仿真 11
3.4.1仿真前处理 11
3.4.2仿真分析 12
4.梳齿伸缩机构的详细设计 14
4.1梳齿伸缩机构原理 14
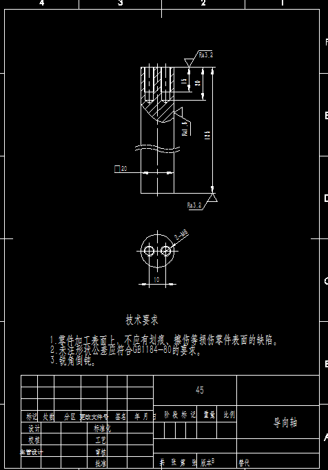
4.2旋转轴的设计 14
4.2.1 旋转轴的结构设计 14
4.2.2 旋转轴理论校核 15
4.3 旋转轴的有限元分析 17
4.4 载车板的有限元分析 20
4.5 梳齿的有限元分析 22
参考文献 24
致 谢 25
温馨提示:
1、题目前面的备注【字母数字编号】为本站整理分类的编号,与课题内容无关,请选题时忽视;
2、若题目上备注三维,则表示文件里包含三维源文件,由于三维组成零件数量较多,为保证预览截图的简洁性,本站将三维文件夹进行了打包。三维及CAD预览截图,均为本站电脑打开软件进行截图的,保证能够打开,下载原件超高清,下载后解压即可;
3、本站所有资源如无特殊说明,都需要本地电脑安装Office2007。图纸软件为AutoCAD,PROE,UG,SolidWorks,CATIA等;
4、本站所有图文资料仅供用户学习参考,不作为任何商用或其他用途;
5、本站不保证下载资源的准确性、安全性和完整性, 不包修改,不支持退换,同时也不承担用户因使用这些下载资源对自己和他人造成任何形式的伤害或损失;
6、 下载文件中如有侵权或不适当内容,请与我们联系,我们立即纠正。