

作品包括:
Word版设计说明书1份
CAD版本图纸,共14张
摘要
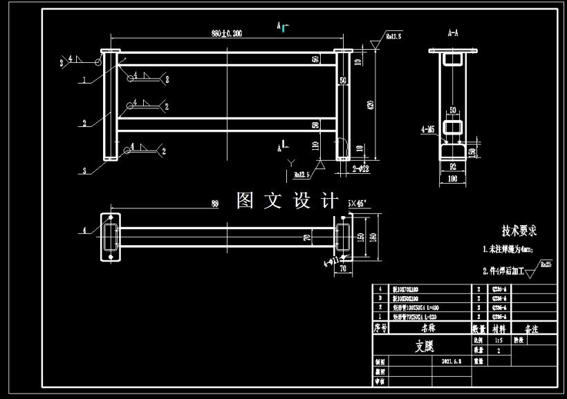
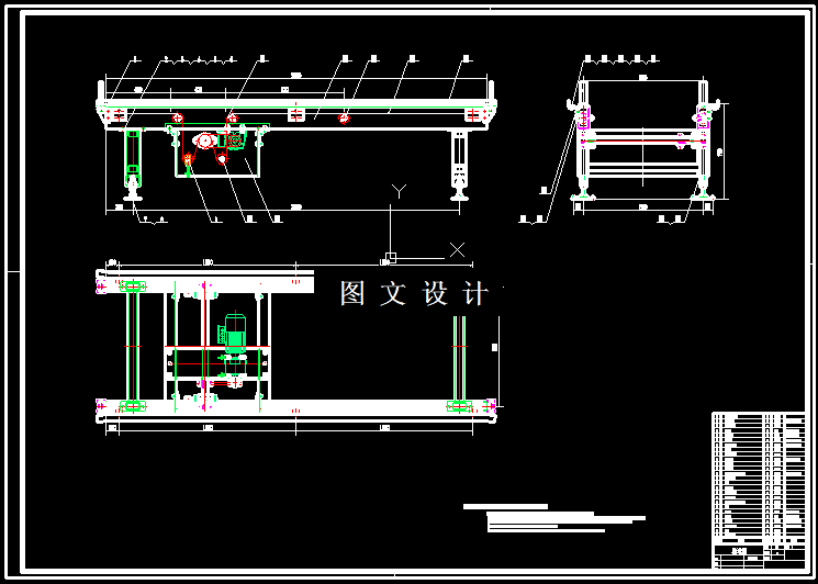
设计的链条输送机与普通输送机构的主要区别是其应用于零件热处理过程中的高温生产线中,因而工作环境非常恶劣。输送机通过两侧的链条支撑上方的料框、并进行输送作业。驱动机构位于设备的下方,既节省空间又能很好的保证设备重心。本输送机设计有自动检测装置,当料框到到入料口时,对射光电检测到料框后,输送机自动启动;当料框完成输送后,料框脱离末端光电的检测后,输送机自动停止输送。整个输送过程是自动化、高效化的提现,增加了工作效率、降低了人工成本。输送机的入料端和出料端设计有过渡衔接机构,充分保证料框能够顺畅输送。本设计很好地解决了使料筐在进入高温环境下而输送机构依然正常工作的问题,为以后相关企业的相应生产设计提供了良好的方案。本文针对主要零部件等进行详细的设计计算、校核,对电路系统进行了简单设计,通过CAD制图软件绘制了二维图纸。
温馨提示:
1、题目前面的备注【字母数字编号】为本站整理分类的编号,与课题内容无关,请选题时忽视;
2、若题目上备注三维,则表示文件里包含三维源文件,由于三维组成零件数量较多,为保证预览截图的简洁性,本站将三维文件夹进行了打包。三维及CAD预览截图,均为本站电脑打开软件进行截图的,保证能够打开,下载原件超高清,下载后解压即可;
3、本站所有资源如无特殊说明,都需要本地电脑安装Office2007。图纸软件为AutoCAD,PROE,UG,SolidWorks,CATIA等;
4、本站所有图文资料仅供用户学习参考,不作为任何商用或其他用途;
5、本站不保证下载资源的准确性、安全性和完整性, 不包修改,不支持退换,同时也不承担用户因使用这些下载资源对自己和他人造成任何形式的伤害或损失;
6、 下载文件中如有侵权或不适当内容,请与我们联系,我们立即纠正。