

作品包括:
说明书1份,共20页,约11000字左右
CAD版本本图纸,共6张
摘 要
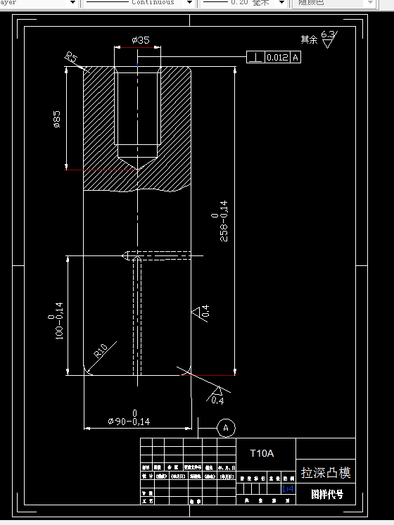
本文按照拉深模具的设计过程,采用正拉深和反拉深复合的形式,设计口杯一次正反拉深模具,主要包括拉深零件的工艺分析,拉深工艺方案的确定,反拉深工艺的特点,模具的总体设计,主要零部件的设计,主要的设计计算,双动压力机的选择,模具的装配及在双动压力机上的调试。这副模具是一副正反拉深复合模具,它安装在双动压力机上,用外滑块进行一般拉深,用内滑块进行反拉深。
关键词:双动拉深压力机、反拉深、拉深模具
毕业设计/论文说明书目录
绪论................................................................1
第1章 一次正反拉深工艺的分析.............................4
1.1 零件的工艺性分析.............................................4
1.1.1 拉深件的工艺分析.............................................. 4
1.1.2 拉深件的结构工艺性.............................................4
1.1.3 拉深件的材料...................................................4
1.2 工艺方案的确定................................................5
1.3 反拉深的工艺的特点............................................5
1.3.1 反拉深的工艺方案的确定........................................ 5
1.3.2 反拉深工艺的特点...............................................5
1.4 主要设计计算.................................................. 6
1.4.1计算毛坯的尺寸..................................................6
1.4.2 判断拉深次数...................................................6
1.4.3 拉深力的计算...................................................7
第2章 模具的结构设计..........................................9
2.1 模具工作部分的尺寸计算...................................... 9
2.1.1 拉深模的间隙...................................................9
2.1.2 拉深模的圆角半径...............................................9
2.2 模具结构的总体设计...........................................11
2.2.1 模具的闭合高度的计算..........................................12
2.2.2 冲压设备的选择................................................13
2.3 模具零件的结构的设计........................................14
2.3.1 拉深凹模......................................................14
2.3.2 拉深凸凹......................................................14
2.3.3凸模...........................................................16
2.3.4 推件块........................................................16
2.3.5 压边圈........................................................17
2.3.6 顶杆..........................................................18
第3章 口杯一次正反拉深模具的装配与调试.................19
3.1模具的装配要点............................................... 19
3.1.1 凹模圆角半径..................................................19
3.1.2 凹模型孔......................................................19
3.1.3 凸模表面质量..................................................19
3.1.4 凸凹模间隙....................................................19
3.1.5 压边零件......................................................19
3.1.6 拉深件的顶出..................................................19
3.2 拉深模装配方法和装配顺序的选择.............................19
3.2.1 装配方法......................................................19
3.2.2 装配顺序......................................................19
3.3. 在双动压力机上安装模具.....................................20
3.3.1 安装要点......................................................20
3.4 拉深模具的试冲和调整........................................21
3.4.1 拉深模具试冲时的调整要点......................................21
3.4.2 拉深模的调整次序..............................................21
3.4.3 拉深模试冲用的材料............................................21
3.4.4 试冲时的润滑..................................................22
结论................
致谢...................................................25
参考文献..................................................26
温馨提示:
1、题目前面的备注【字母数字编号】为本站整理分类的编号,与课题内容无关,请选题时忽视;
2、若题目上备注三维,则表示文件里包含三维源文件,由于三维组成零件数量较多,为保证预览截图的简洁性,本站将三维文件夹进行了打包。三维及CAD预览截图,均为本站电脑打开软件进行截图的,保证能够打开,下载原件超高清,下载后解压即可;
3、本站所有资源如无特殊说明,都需要本地电脑安装Office2007。图纸软件为AutoCAD,PROE,UG,SolidWorks,CATIA等;
4、本站所有图文资料仅供用户学习参考,不作为任何商用或其他用途;
5、本站不保证下载资源的准确性、安全性和完整性, 不包修改,不支持退换,同时也不承担用户因使用这些下载资源对自己和他人造成任何形式的伤害或损失;
6、 下载文件中如有侵权或不适当内容,请与我们联系,我们立即纠正。