

作品包括:
Word版设计说明书1份,共19页,约7100字
外文翻译一份
CAD版本图纸,共8张
UG三维图一份

摘 要
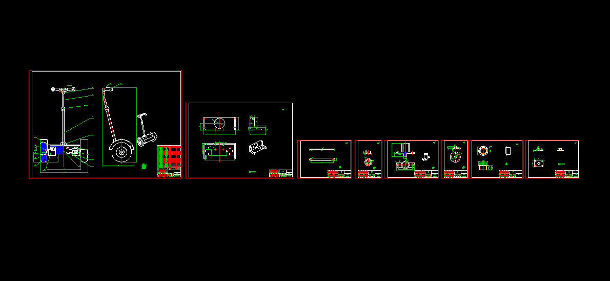
两轮自平衡车结合了两轮同轴、独立驱动、悬架结构和倒立摆模型的自平衡原理,是一种在微处理器控制下始终保持平衡的集智能化与娱乐性于一体的新型代步工具。整车由底盘、动力装置、控制装置和转向装置组成。
底盘采用下沉式的悬架结构,降低车身和使用者的重心减小了平衡控制难度,利用阻尼器削弱冲击力提高驾驶舒适性;控制部分由陀螺仪和加速度计作为传感器模块监测车体状态,可获得精确稳定的测量数据。同时微处理器实时处理状态数据,进而由驱动模块控制电机转动以维持车体平衡;转向操纵杆高度可调节亦可折叠,以适应不同高度人士使用又便于运输和存放;采用电池作为动力能源,当车减速或下坡时可自动回送电能更加节能。
两轮自平衡车的基本设计理念是娱乐、经济、安全、方便、节能环保。本车具有运动灵活、智能控制、操作简便等特点,同时它价格低廉、性价比高,娱乐性和适用性增强,弥补了传统观车辆的体积大、功耗多,不适于单人使用的缺点。两轮自平衡车适用范围更广,市场需求大,具有很强的市场推广价值和市场潜力。
关键词:两轮自平衡电动车,环保, 结构设计,陀螺仪,控制电路。
目录
两轮平衡车的设计 1
摘 要 1
第一章 绪论 2
1.1课题研究的背景及意义 2
1.1.1两轮自平衡车的研究背景 2
1.1.2 研究意义 2
1.2 两轮自平衡车在国内外的研究现状 3
1.2.1 国外研究状况 3
1.2.2 国内研究状况 5
1.3 本文主要完成的内容结构 6
第二章 总体设计 7
2.1 设计目标 7
2.2 总体结构设计 7
2.3 自平衡车的工作原理 8
第三章 机械结构系统 10
3.1 车身 10
3.1.1 悬架 10
3.1.2 车轮 12
3.1.3 惰轮 13
3.1.4轮轴 13
3.1.5配电箱 14
3.2 动力装置 14
3.3 转向控制装置 15
3.4 两轮平衡车的装配 16
3.5本章小结 17
参考文献 18
温馨提示:
1、题目前面的备注【字母数字编号】为本站整理分类的编号,与课题内容无关,请选题时忽视;
2、若题目上备注三维,则表示文件里包含三维源文件,由于三维组成零件数量较多,为保证预览截图的简洁性,本站将三维文件夹进行了打包。三维及CAD预览截图,均为本站电脑打开软件进行截图的,保证能够打开,下载原件超高清,下载后解压即可;
3、本站所有资源如无特殊说明,都需要本地电脑安装Office2007。图纸软件为AutoCAD,PROE,UG,SolidWorks,CATIA等;
4、本站所有图文资料仅供用户学习参考,不作为任何商用或其他用途;
5、本站不保证下载资源的准确性、安全性和完整性, 不包修改,不支持退换,同时也不承担用户因使用这些下载资源对自己和他人造成任何形式的伤害或损失;
6、 下载文件中如有侵权或不适当内容,请与我们联系,我们立即纠正。