

作品包括:
Word版说明书1份,共72页,约25000字
CAD版本图纸,共8张
摘 要
本论文主要设计了掩护式液压支架。设计内容包括:总体设计、主要零部件的设计、主要零部件的校核和液压系统的设计。煤层厚度介于1.6-2.2m之间,煤层厚度变化较大,选用调高范围大且抗水平推力强且带护帮装置的掩护式支架。
支架采用四连杆机构,改善支架的受力状况,缩小支架升降过程中顶梁前端前后移动的距离。支架除要实现有效地对顶板进行支撑,还要实现升、降、推、移四个步骤。根据设计原始数据,本文主要对掩护式支架进行分析,此支架为两柱掩护式支架,四连杆机构,整体稳定性好 。整体结构强度高,调架范围大,有双行人通道。立柱采用双伸缩液压缸,以满足支架最低及最高位置时的高度要求。支架后部要另设置运输机,以运输放顶煤,提高了产煤量。顶梁、掩护梁、底座都做成箱体结构,用钢板焊接而成。液压系统采用锥阀进行控制,提高了移架速度,确保对顶板的及时支护。
关键词:掩护式液压支架 液压系统 四连杆机构 立柱
摘 要 I
Abstract II
第一章 绪论 1
1.1 液压支架的国内外研究现状及发展趋势 1
1.2 液压支架的用途及分类 2
1.3 液压支架的工作情况介绍 5
第二章 液压支架的结构及原理 7
2.1 液压支架的组成 7
2.2 液压支架的工作原理 9
2.3 液压支架的支护方式 12
2.4 液压支架设计的基本要求 12
第三章 液压支架整体结构的确定 14
3.1 液压支架基本参数的确定 14
3.1.1 支架调高范围 14
3.1.2 初撑力 14
3.1.3 移架力与推溜力 15
3.1.4 支架间距与宽度的确定 15
3.1.5 底座宽度 16
3.2 四连杆机构的设计 16
3.2.1 四连杆机构的作用 16
3.2.2 用优选法设计四连杆机构 17
3.3 顶梁尺寸的确定 24
3.3.1 顶梁长度的确定 24
3.3.2 顶梁支护面积 25
3.3.3 顶梁覆盖率 25
第四章 支架的主要部件设计 26
4.1 顶梁和侧护板 26
4.1.1 顶梁结构设计 26
4.1.2 侧护板 26
4.2 掩护梁 27
4.3 底座 28
4.4 连杆 29
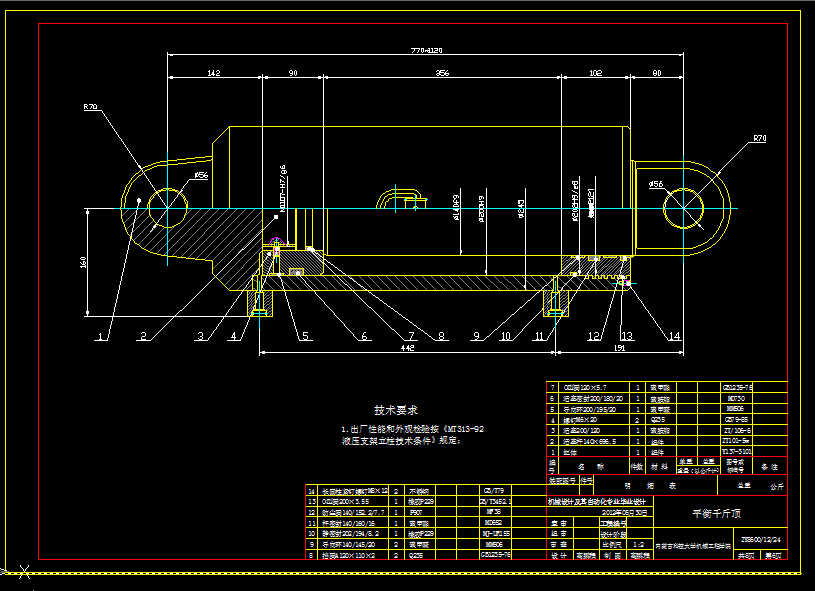
4.5 立柱的设计 29
4.5.1 立柱的分类 29
4.5.2 液压缸基本参数的确定 30
4.6 推移装置的设计 33
第五章 液压支架受力分析与计算 35
5.1 液压支架工作状态 35
5.1.1 顶板状态 35
5.1.2 液压支架的工作状态 35
5.1.3 支架受力 35
5.2 计算载荷的确定 35
5.3 液压支架的受力分析 36
5.4 支护强度计算 39
5.5 底座接触比压计算 40
5.6 支护效率的计算 42
第六章 支架主要部件的强度校核 43
6.1 支架强度设计满足条件 43
6.2 顶梁强度校核 44
6.2.1 顶梁受力情况 44
6.2.2 顶梁强度校核 46
6.3 掩护梁强度校核 47
6.3.1 掩护梁受力情况 47
6.3.2 掩护梁强度计算 48
6.4 底座强度校核 49
6.4.1 底座受力情况 49
6.4.2 底座强度校核 50
6.5 立柱强度校核 51
6.5.1 活塞杆的强度验算 51
6.5.2 立柱缸壁厚度 52
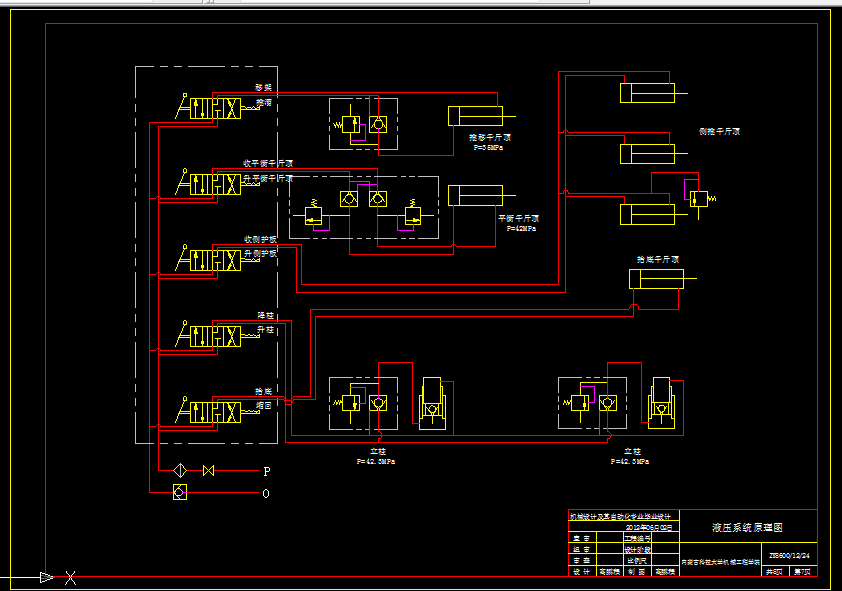
第七章 液压系统的设计 55
7.1 液压系统的作用及特点 55
7.2 液压系统的工作机构 55
7.3 控制系统 56
7.4 立柱和缸体的操作 58
7.4.1 立柱(双伸缩立柱) 58
7.4.2 推移千斤顶(推溜式移架) 60
7.4.3 顶、掩护梁侧推千斤顶 60
7.4.4 抬底千斤顶 61
7.4.5 平衡千斤顶 61
结束语 63
参考文献 64
致 谢 66
温馨提示:
1、题目前面的备注【字母数字编号】为本站整理分类的编号,与课题内容无关,请选题时忽视;
2、若题目上备注三维,则表示文件里包含三维源文件,由于三维组成零件数量较多,为保证预览截图的简洁性,本站将三维文件夹进行了打包。三维及CAD预览截图,均为本站电脑打开软件进行截图的,保证能够打开,下载原件超高清,下载后解压即可;
3、本站所有资源如无特殊说明,都需要本地电脑安装Office2007。图纸软件为AutoCAD,PROE,UG,SolidWorks,CATIA等;
4、本站所有图文资料仅供用户学习参考,不作为任何商用或其他用途;
5、本站不保证下载资源的准确性、安全性和完整性, 不包修改,不支持退换,同时也不承担用户因使用这些下载资源对自己和他人造成任何形式的伤害或损失;
6、 下载文件中如有侵权或不适当内容,请与我们联系,我们立即纠正。