欢迎来到龙图网在线图文分享平台-CAD图纸,设计说明书,工业设计3D模型,三维软件下载!   客服QQ:2363701252
热搜:

工艺夹具 模具设计 数控编程 土木工程 3D模型

B375-六轴气动试验台本体和气动控制系统的设计 下载积分:150 资料编号: B375

1.打开支付宝或者微信扫描二维码。
2.填写金额:150 
3.添加备注,填写资料编号:
资料编号: B375
4.支付成功后,请发资料编号到邮箱:jxsj168@qq.com
会有专人在15分钟内把资料发到您邮箱
备注:如果付款忘记填写资料编号,则发邮件时附带您的交易明细截图即可。
请耐心等待,如超过30分钟还没收到,请联系客服QQ:2363701252
点击分享:

作品描述

作品包括:

Word版说明书1份,共58页,约26000字

CAD版本图纸,共7张


摘   要


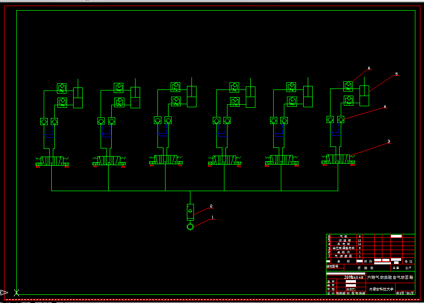
本次设计的主体是机械本体的设计和气动控制系统的设计,结合实验室的六轴气动机床进行了机械本体结构的设计校核,设计了相应的气动控制回路及控制回路PLC的设计。通过气动回路的电磁换向阀简单介绍了6-SPS(六轴平台机构,S为球面副,P为移动副)并联机床的极限位的运动,与此同时提出了上工作平台的运动学分析。

本文首先介绍了有关6-DOF并联机床的发展及概况,然后对6自由度并联机构的本体组成及自由度的计算分析,为气动实验装置本体的设计做铺垫,之后是气动回路及控制的设计,利用气动回路的电磁换向阀的电磁铁动作顺序对上工作平台不同的极限位姿进行了介绍,最后提出了上工作台运动学分析,并做了简单的介绍。

关键此词 :6-SPS并联机构 机械本体 气动回路 PLC 运动学分析


目录

摘   要………………………………………………………………………………...I

Abstact………………………………………………………………………………..II

第一章   绪 论………………………………………………………………………I

1.1 研究背景 1

1.2 国内外研究 2

1.2.1  虚拟轴机床机构研究 3

1.2.2 并联机床的开发 5

1.3 课题来源及本文主要工作 8

1.3.1 课题来源 8

1.3.2 选题意义 8

第二章 并联机构组成元素和自由度计算…………………………………………..9

2.1引言 9

2.1.1 空间机构的组成元素 9

2.1.2 基本类型的运动副 9

2.2并联机构的基本组成 12

2.3自由度计算 16

2.3.1常用自由度计算方法 16

第三章  六轴气动试验台总体方案规划…………………………………………..19

3.1系统总体组成 19

3.2六轴气动实验装置自由度的计算: 20

3.3 机械结构分析 21

3.3.1平合和机座(静平台) 22

3.3.2自由度 22

3.3.3腿 22

3.3.4阶 23

3.3.5式 23

3.3.6型 23

3.3.7输入(关节变量) 23

3.3.8输出(平台的位姿) 23

3.4工作原理、应用及结构设计 24

3.5 实验台元件的选择及设计 25

3.5.1气缸的选择 25

3.5.2球铰的设计及相关校核 27

3.5.3 试验台的装配顺序 30

第四章    气动控制系统的设计…………………………………………………..31

4.1气动回路的设计 31

4.1.1气动回路元件的选择 31

4.1.2 气动辅助元件的选择 32

4.2气动回路的设计 32

4、3 气动控制系统的设计 33

4.3.1 PLC简介 34

4.3.2 PLC应用的设计 37

第五章 实验台运动学分析…………………………………………………………40

5.1气动回路分析上工作台的运动 40

5.2工作台运动学分析 41

5.2.1齐次变换 41

5.2.2位置反解 43

5.2.3 工作空间分析 45

结论…………………………………………………………………………………..48

主要参考文献………………………………………………………………………..50

附录…………………………………………………………………………………..51

致谢…………………………………………………………………………………..54

温馨提示:

1、题目前面的备注【字母数字编号】为本站整理分类的编号,与课题内容无关,请选题时忽视;

2、若题目上备注三维,则表示文件里包含三维源文件,由于三维组成零件数量较多,为保证预览截图的简洁性,本站将三维文件夹进行了打包。三维及CAD预览截图,均为本站电脑打开软件进行截图的,保证能够打开,下载原件超高清,下载后解压即可;

3、本站所有资源如无特殊说明,都需要本地电脑安装Office2007。图纸软件为AutoCAD,PROE,UG,SolidWorks,CATIA等;

4、本站所有图文资料仅供用户学习参考,不作为任何商用或其他用途;
5、本站不保证下载资源的准确性、安全性和完整性, 不包修改,不支持退换,同时也不承担用户因使用这些下载资源对自己和他人造成任何形式的伤害或损失;

6、 下载文件中如有侵权或不适当内容,请与我们联系,我们立即纠正。


线