

作品包括:
Word版设计说明书1份
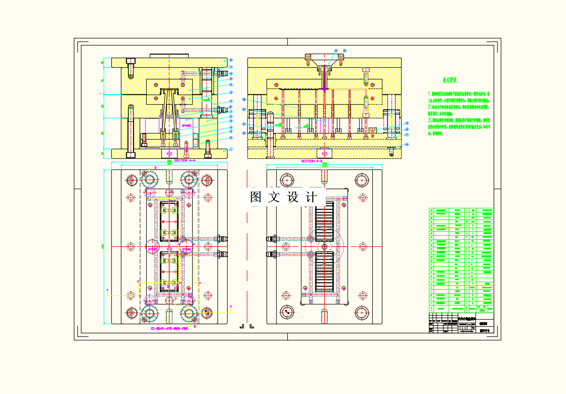
CAD版本图纸,共7张
摘要
本课题首先使用 软件 对汽车内饰盒罩壳进行建模。通过创建不同的浇口方案进行填充+ 保压+冷却+翘曲分析之后,进行比较来得出最佳的浇口方案为侧浇口进料,所以该汽车内饰盒罩壳采用侧浇口为流道系统。为了提高模具在投入生产时的生产效率,采用一模两腔的进料方式。因为本次课题的塑件为汽车内饰盒罩壳,所以为了满足材料的使用要求和性能,采用 ABS 作为此次生产塑件的原料。在确定完浇口方案跟材料之后,进行汽车内饰盒罩壳的模具结构设计,完成塑件的分型面选择、注射机型号的选择等设计步骤。由于该汽车内饰盒罩壳底部具有四个卡扣,所以其侧向抽芯机构采用斜顶侧抽的工作原理,满足其结构和工艺性的要求。
温馨提示:
1、题目前面的备注【字母数字编号】为本站整理分类的编号,与课题内容无关,请选题时忽视;
2、若题目上备注三维,则表示文件里包含三维源文件,由于三维组成零件数量较多,为保证预览截图的简洁性,本站将三维文件夹进行了打包。三维及CAD预览截图,均为本站电脑打开软件进行截图的,保证能够打开,下载原件超高清,下载后解压即可;
3、本站所有资源如无特殊说明,都需要本地电脑安装Office2007。图纸软件为AutoCAD,PROE,UG,SolidWorks,CATIA等;
4、本站所有图文资料仅供用户学习参考,不作为任何商用或其他用途;
5、本站不保证下载资源的准确性、安全性和完整性, 不包修改,不支持退换,同时也不承担用户因使用这些下载资源对自己和他人造成任何形式的伤害或损失;
6、 下载文件中如有侵权或不适当内容,请与我们联系,我们立即纠正。