

作品包括:
Word版设计说明书1份
CAD版本图纸,共7张
UG三维零件图1张
摘要
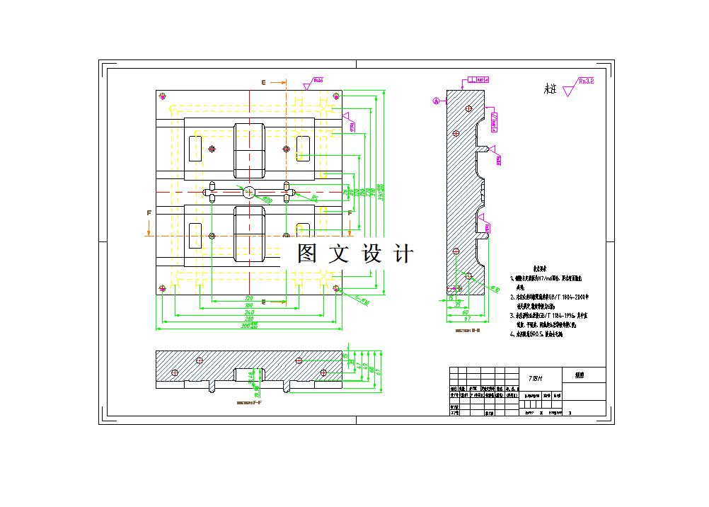
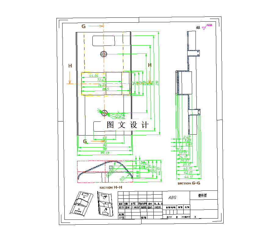
本次设计就是将快乐王子儿童座椅作为核心进行注塑模具设计。首先要分析塑件的结构及工艺性能,考虑塑件在实际生活中的应用,选择合适的材料。塑件分型面的选择也是非常关键的一部分,根据注塑模设计原则确定分型面的位置,通常情况下分型面选用塑件较大的平面。然后是对出模数量的分析,根据塑件的结构特点和实际生产确定出模的数量。完成好型腔布局后考虑浇注系统的形式和位置,浇注系统的设计主要针对主流道,分流道和浇口进行设计,既要保证充填均匀又要减少废料。对于成型部件的设计采用了嵌入式的型芯、型腔,成型零部件因为是与塑件直接接触的所以精度要求更高, 对整零件的尺寸进行计算校核。模具注塑完成后用冷却系统对模具进行降温,帮助塑件冷却成型。顶出系统最常用的是顶针顶出,设计更简单加工方便。最后根据设计的参数选择合适的模架。通常模架选用标准模架,能够节省制造成本同时可靠性稳定性更好。结合完成后的设计数据,选择三维软件进行建模,CAD 绘制出二维图纸。最后编写出说明书并选择合适的注塑机进行计算校核。
温馨提示:
1、题目前面的备注【字母数字编号】为本站整理分类的编号,与课题内容无关,请选题时忽视;
2、若题目上备注三维,则表示文件里包含三维源文件,由于三维组成零件数量较多,为保证预览截图的简洁性,本站将三维文件夹进行了打包。三维及CAD预览截图,均为本站电脑打开软件进行截图的,保证能够打开,下载原件超高清,下载后解压即可;
3、本站所有资源如无特殊说明,都需要本地电脑安装Office2007。图纸软件为AutoCAD,PROE,UG,SolidWorks,CATIA等;
4、本站所有图文资料仅供用户学习参考,不作为任何商用或其他用途;
5、本站不保证下载资源的准确性、安全性和完整性, 不包修改,不支持退换,同时也不承担用户因使用这些下载资源对自己和他人造成任何形式的伤害或损失;
6、 下载文件中如有侵权或不适当内容,请与我们联系,我们立即纠正。