

作品包括:
Word版说明书1份,共35页,约16000字
开题报告一份
CAD版本图纸,共2张
三菱PLC程序一份

摘 要
目前垃圾所造成的能源浪费以及环境污染问题日益严峻,人们在缺乏基本的环保意识之外还缺少相应的垃圾分类存储设备去帮助和辅助人工能够有效识别相关垃圾的种类从而实现分类存储,因此加大智能化的垃圾分类设备的推广和使用对经济环境的发展有着重要的意义。
本次设计以智能垃圾分类的控制系统为核心,分析其核心的PLC控制系统设计过程,为了完成所研究的内容,首先对垃圾桶的设备的功能进行分析,确保此次垃圾桶能够识别和分类的垃圾种类,以及完成垃圾分类处理的相关设备动作流程,根据相应的控制流程完成相关控制流程图的编写,然后针对本次设计的控制内容选择所需要的控制元件如可编程序控制器PLC、传感器、断路器以及急停开关等电器元器件,电器元件选型结束后根据电气原理图的相关知识完成相关元件电路图的绘制,最后根据三菱PLC编程软件编写相关的控制程序,三菱编程软件自带有程序检查和编译功能,根据相关的不断优化最终确保所编写的程序能够稳定运行。通过本次对智能分类垃圾桶的控制系统设计让我对自动化控制技术有了一个更加深入的了解,并且通过亲身实践也更加提高了自身的动手实践能力。
关键词:垃圾分类存储设备;自动化;PLC;流程图;传感器;控制程;电器原理图;
目 录
摘 要 1
ABSTRACT 2
1 绪论 1
1.1研究的意义与目的 1
1.2国内外研究现状 2
1.3 研究的主要内容 6
2 控制系统设计方案 8
2.1 控制功能分析 8
2.2控制流程图的绘制 9
3 系统的硬件设计 11
3.1 控制器介绍及选型 11
3.2 其它主要元器件 12
3.3 电气保护设计 15
3.4 输入输出分配 17
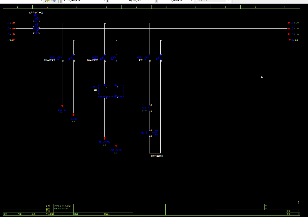
3.5 电气原理图 18
4 系统的软件设计 20
4.1 GX Works2编程软件介绍 20
4.2 PLC程序设计 20
5 程序调试与仿真 25
5.1 PLC程序仿真软件介绍 25
5.2 系统仿真测试 25
6结论 29
致谢 31
参考文献 30
温馨提示:
1、题目前面的备注【字母数字编号】为本站整理分类的编号,与课题内容无关,请选题时忽视;
2、若题目上备注三维,则表示文件里包含三维源文件,由于三维组成零件数量较多,为保证预览截图的简洁性,本站将三维文件夹进行了打包。三维及CAD预览截图,均为本站电脑打开软件进行截图的,保证能够打开,下载原件超高清,下载后解压即可;
3、本站所有资源如无特殊说明,都需要本地电脑安装Office2007。图纸软件为AutoCAD,PROE,UG,SolidWorks,CATIA等;
4、本站所有图文资料仅供用户学习参考,不作为任何商用或其他用途;
5、本站不保证下载资源的准确性、安全性和完整性, 不包修改,不支持退换,同时也不承担用户因使用这些下载资源对自己和他人造成任何形式的伤害或损失;
6、 下载文件中如有侵权或不适当内容,请与我们联系,我们立即纠正。