

作品包括:
Word版设计说明书1份
CAD版本图纸,共5张
SW三维图一份
摘要
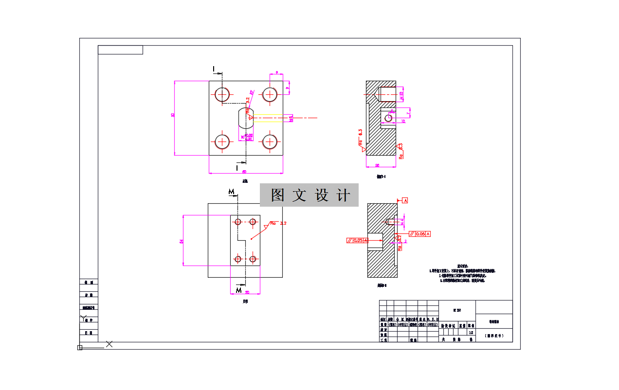
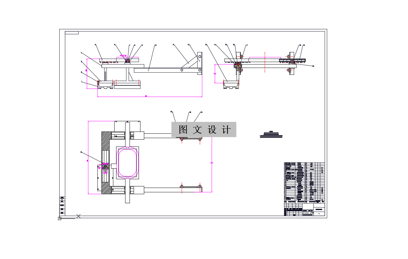
绣花机是一种专门用于大批量生产针织绣品的大型机器设备,人民借此用较为低廉的价格享受针织品在生活中带来的幸福感。然而,伴随我国人民物质水平的不断提高,过去的针织品质量已经满足不了当今的需要。因此,绣花机的工艺水平必须进行优化改进,只有如此才能满足人民对于高质量的针织品的需求。在整个绣花机的各个组成部分中,绣花机移框的传动机构对于整个绣品的质量有着非常明显的作用。然而,如今市面上的大部分绣花机采用的技术,仍然是落后了时代十几年的老技术。基于此,本设计提出了一种新型移框驱动机构,它采用直线电机模组替换同步带直接驱动绣花机的移框,没有其他的运动变换机构,因此移框传动的精度以及平稳性大大提高,可以想见,在未来绣花机的发展中具有重要作用。
温馨提示:
1、题目前面的备注【字母数字编号】为本站整理分类的编号,与课题内容无关,请选题时忽视;
2、若题目上备注三维,则表示文件里包含三维源文件,由于三维组成零件数量较多,为保证预览截图的简洁性,本站将三维文件夹进行了打包。三维及CAD预览截图,均为本站电脑打开软件进行截图的,保证能够打开,下载原件超高清,下载后解压即可;
3、本站所有资源如无特殊说明,都需要本地电脑安装Office2007。图纸软件为AutoCAD,PROE,UG,SolidWorks,CATIA等;
4、本站所有图文资料仅供用户学习参考,不作为任何商用或其他用途;
5、本站不保证下载资源的准确性、安全性和完整性, 不包修改,不支持退换,同时也不承担用户因使用这些下载资源对自己和他人造成任何形式的伤害或损失;
6、 下载文件中如有侵权或不适当内容,请与我们联系,我们立即纠正。