

作品包括:
Word版设计说明书1份
CAD版本图纸,共9张
UG三维图一份
摘要
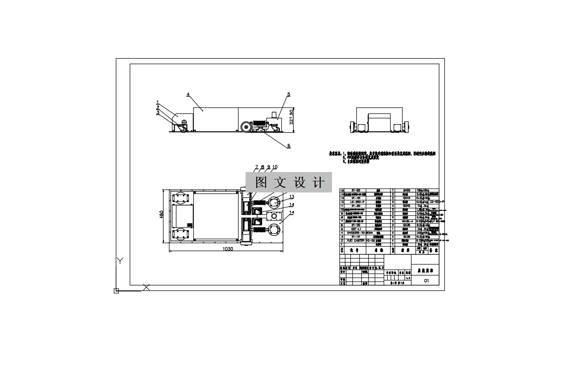
本文完成了对 AGV 的总体设计,AGV 底盘设计,AGV 车壳设计以及 AGV 电控系统的设计。首先从大体上完成对 AGV 总体设计,总体设计中根据牵引质量要求对电机进行选型, 同时匹配减速机。考虑到 AGV 行驶的稳定性,轮系分布采用四轮布置形式,共四个万向轮和两个驱动轮。在此基础上,进一步完成驱动模块的设计,同时完成悬挂的设计。驱动模块设计完成后对底盘进行设计,包括底盘结构设计以及底盘上安装零部件的选择,零部件包括万向轮、驱动轮、电池、电控柜等。机械结构设计完成之后,本文使用 solid works 自带的 simulation 对关键零件的关键部位进行强度校核。车壳设计中完成了车壳结构设计、控制面板设计以及传感器布置。激光导引相比于磁导引,场地布置更加灵活,安装更加方便,所以导引方式选择为激光导引方式。最后对 AGV 的电控部分进行初步设计,本文仅涉及硬件选型。
温馨提示:
1、题目前面的备注【字母数字编号】为本站整理分类的编号,与课题内容无关,请选题时忽视;
2、若题目上备注三维,则表示文件里包含三维源文件,由于三维组成零件数量较多,为保证预览截图的简洁性,本站将三维文件夹进行了打包。三维及CAD预览截图,均为本站电脑打开软件进行截图的,保证能够打开,下载原件超高清,下载后解压即可;
3、本站所有资源如无特殊说明,都需要本地电脑安装Office2007。图纸软件为AutoCAD,PROE,UG,SolidWorks,CATIA等;
4、本站所有图文资料仅供用户学习参考,不作为任何商用或其他用途;
5、本站不保证下载资源的准确性、安全性和完整性, 不包修改,不支持退换,同时也不承担用户因使用这些下载资源对自己和他人造成任何形式的伤害或损失;
6、 下载文件中如有侵权或不适当内容,请与我们联系,我们立即纠正。