

作品包括:
Word版设计说明书1份
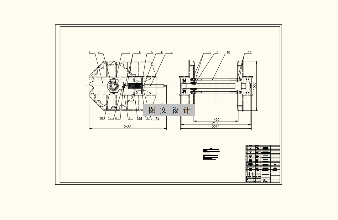
CAD版本图纸,共6张
摘要
桥式刮板取料机因为其具有均化效果好、结构比较简单、取料量比较大的优点,所以被广泛应用于钢铁、能源、建材等行业中,其主要应用于某些对均化性能有较高要求的生产原料的场合,比如钢铁厂的铁粉,热电厂的燃煤,亦或者是水泥厂的石灰石、黏土、原煤等物料进行预均化处理。 张紧装置作为桥式刮板取料机不可或缺的一部分,设备在启动、运行以及制动的时候,会对刮板链产生巨大的瞬时冲击力,其主要作用就是防止刮板链因为这个冲击力而发生跳齿、脱链的故障。 本文将会以保证刮板取料机设备运行稳定性和提高设备使用寿命的角度,针对取料机刮板链张紧结构的作用,分析生产实际中常见的取料机张紧装置种类,制定合理的设计方案,再对其进行结构布置和功能划分,并完成其总体机构的设计以及其重要零部件的设计和校核。
温馨提示:
1、题目前面的备注【字母数字编号】为本站整理分类的编号,与课题内容无关,请选题时忽视;
2、若题目上备注三维,则表示文件里包含三维源文件,由于三维组成零件数量较多,为保证预览截图的简洁性,本站将三维文件夹进行了打包。三维及CAD预览截图,均为本站电脑打开软件进行截图的,保证能够打开,下载原件超高清,下载后解压即可;
3、本站所有资源如无特殊说明,都需要本地电脑安装Office2007。图纸软件为AutoCAD,PROE,UG,SolidWorks,CATIA等;
4、本站所有图文资料仅供用户学习参考,不作为任何商用或其他用途;
5、本站不保证下载资源的准确性、安全性和完整性, 不包修改,不支持退换,同时也不承担用户因使用这些下载资源对自己和他人造成任何形式的伤害或损失;
6、 下载文件中如有侵权或不适当内容,请与我们联系,我们立即纠正。