

作品包括:
Word版设计说明书1份
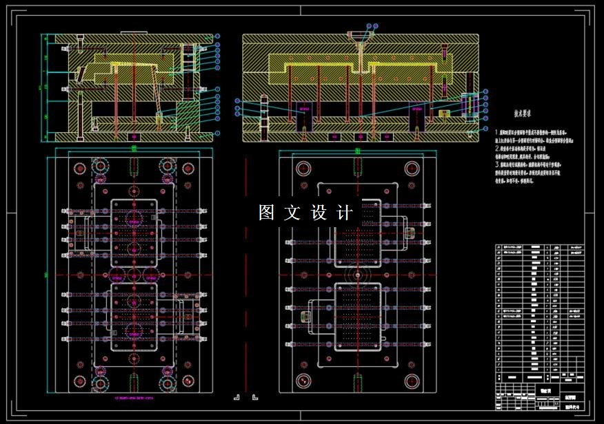
CAD版本图纸,共14张
UG三维图一套
摘要
本次设计拟定采用一模两腔的型腔分布,在浇注方面采用了侧浇口进料的大水口模架系统模架。注塑模具是一种以特定的型腔、型芯等结构形式让塑胶原料成型的一种新型生产工业,在模具设计前需要通对塑料件的材料选择以及成型工艺进行分析和注塑成型机的确定,所以本次模具设计选择了比较合适的注塑成型机并对注塑机多个重要参数进行了校核与计算。并对塑料模的塑件分模面进行选择设计。经过多种数据的比较与分析等,从而综合各种因素选择一个最合理的方案。 并将模具所有零件及装配图绘制成CAD电子图档,通过计算机辅助设计软件CAD图的绘画,并对塑件的各机构及模架进行了设计绘画,并绘制转化二维装配图及主要的零件图。然后对模具的各种重要的参数进行了一系统的设计与校核,从而完成整个设计。
温馨提示:
1、题目前面的备注【字母数字编号】为本站整理分类的编号,与课题内容无关,请选题时忽视;
2、若题目上备注三维,则表示文件里包含三维源文件,由于三维组成零件数量较多,为保证预览截图的简洁性,本站将三维文件夹进行了打包。三维及CAD预览截图,均为本站电脑打开软件进行截图的,保证能够打开,下载原件超高清,下载后解压即可;
3、本站所有资源如无特殊说明,都需要本地电脑安装Office2007。图纸软件为AutoCAD,PROE,UG,SolidWorks,CATIA等;
4、本站所有图文资料仅供用户学习参考,不作为任何商用或其他用途;
5、本站不保证下载资源的准确性、安全性和完整性, 不包修改,不支持退换,同时也不承担用户因使用这些下载资源对自己和他人造成任何形式的伤害或损失;
6、 下载文件中如有侵权或不适当内容,请与我们联系,我们立即纠正。