

作品包括:
Word版设计说明书1份
CAD版本图纸,共8张
UG三维塑件图1张
摘要
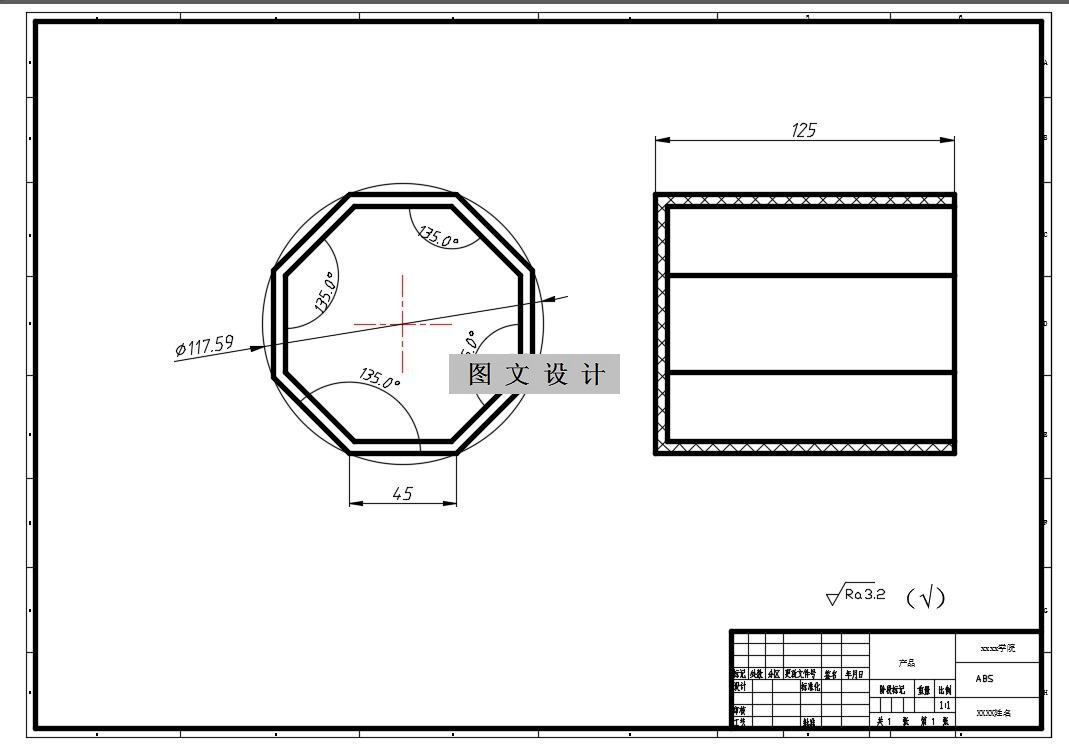
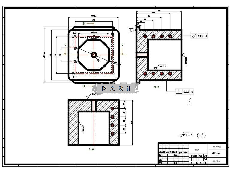
塑件尺寸的大小取决于塑料的流动性。在注射成型过程中,流动性差的塑料及薄壁塑件等的尺寸不能设计的过大。大而薄的塑件在塑料尚未充满型腔时已经固化,或勉强能充满但料的前锋已不能很好的熔合而形成冷接缝影响塑件的外观和结构强度。 塑件的尺寸精度是指所获得的塑件尺寸与产品图中尺寸的符合程度,即所获塑件尺寸的准确度。影响塑件的精度的因素很多,首先是模具的制造精度和模具的磨损程度,其次是塑料收缩率的波动以及成型是工艺条件的变化、塑件成型后的时效变化和模具的结构等。因此,塑件的尺寸精度一般不高,应在保证使用要求的前提下尽可能选用低级精度。根据我国目前塑件的成型水平,塑件的尺寸公差可依据SJ1372-78塑料制件公差数值标准确定。该标准将塑件分成8个等级,每种塑料可选其中三个等级,即高精度、一般精度、低级精度。1、2级精度要求较高,一般 不采用。此外,对塑件图上无公差要求的自由尺寸,建议采用标准中的8级精度。对孔类尺寸数值冠以(+);对于轴类尺寸数值冠以(-);对于中心距尺寸几其他位置尺寸可取表中数值之半冠以()号。
温馨提示:
1、题目前面的备注【字母数字编号】为本站整理分类的编号,与课题内容无关,请选题时忽视;
2、若题目上备注三维,则表示文件里包含三维源文件,由于三维组成零件数量较多,为保证预览截图的简洁性,本站将三维文件夹进行了打包。三维及CAD预览截图,均为本站电脑打开软件进行截图的,保证能够打开,下载原件超高清,下载后解压即可;
3、本站所有资源如无特殊说明,都需要本地电脑安装Office2007。图纸软件为AutoCAD,PROE,UG,SolidWorks,CATIA等;
4、本站所有图文资料仅供用户学习参考,不作为任何商用或其他用途;
5、本站不保证下载资源的准确性、安全性和完整性, 不包修改,不支持退换,同时也不承担用户因使用这些下载资源对自己和他人造成任何形式的伤害或损失;
6、 下载文件中如有侵权或不适当内容,请与我们联系,我们立即纠正。