

作品包括:
Word版设计说明书1份
CAD版本图纸,共9张
UG三维图一套
摘要
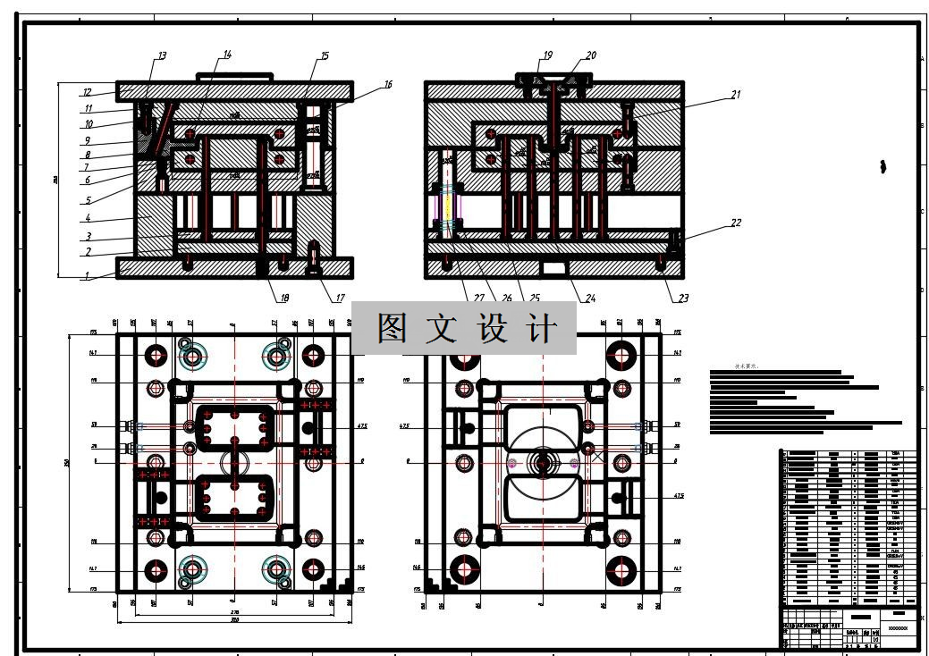
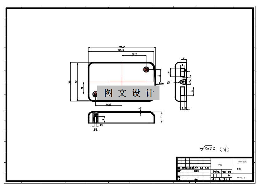
现代模具行业是技术、资金密集型的行业,模具行业的发展,可以带动制造业的蓬勃发展。本文介绍了注塑模的发展近况,对塑件进行分析,根据所学知识对注塑设备、模架、分型面、浇口位置的选择,以及模具重要零部件的详细设计过程及相关尺寸的计算,开模过程分析等,通过本设计,可以对注塑模具有一个初步的认识,通过对UG、CAD等软件的学习,完成设计零件的三维实体造型以及模具设计;完成型腔设计,主要包括定动模、浇道及浇注系统、冷却系统等;完成模架和推出机构的设计,主要包括动定模底座、推板、推板固定板、斜顶、推杆、浇口导套以及支承板零件的设计。
温馨提示:
1、题目前面的备注【字母数字编号】为本站整理分类的编号,与课题内容无关,请选题时忽视;
2、若题目上备注三维,则表示文件里包含三维源文件,由于三维组成零件数量较多,为保证预览截图的简洁性,本站将三维文件夹进行了打包。三维及CAD预览截图,均为本站电脑打开软件进行截图的,保证能够打开,下载原件超高清,下载后解压即可;
3、本站所有资源如无特殊说明,都需要本地电脑安装Office2007。图纸软件为AutoCAD,PROE,UG,SolidWorks,CATIA等;
4、本站所有图文资料仅供用户学习参考,不作为任何商用或其他用途;
5、本站不保证下载资源的准确性、安全性和完整性, 不包修改,不支持退换,同时也不承担用户因使用这些下载资源对自己和他人造成任何形式的伤害或损失;
6、 下载文件中如有侵权或不适当内容,请与我们联系,我们立即纠正。