欢迎来到龙图网在线图文分享平台-CAD图纸,设计说明书,工业设计3D模型,三维软件下载!   客服QQ:2363701252
热搜:

工艺夹具 模具设计 数控编程 土木工程 3D模型

B690-发动机曲轴加工工艺规程及夹具设计[含Proe三维图] 下载积分:100 资料编号: B690

1.打开支付宝或者微信扫描二维码。
2.填写金额:100 
3.添加备注,填写资料编号:
资料编号: B690
4.支付成功后,请发资料编号到邮箱:jxsj168@qq.com
会有专人在15分钟内把资料发到您邮箱
备注:如果付款忘记填写资料编号,则发邮件时附带您的交易明细截图即可。
请耐心等待,如超过30分钟还没收到,请联系客服QQ:2363701252
点击分享:

作品描述

作品包括:

Word版说明书1份,共42页,约25000字

CAD版本图纸,共5张

Proe三维图一份


摘  要

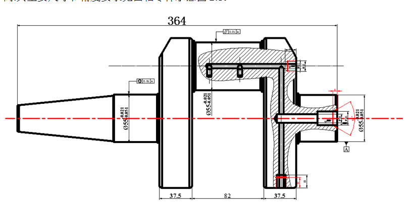
曲轴作为单缸柴油机最重要的部件之一,它的功用是将活塞和连轴杆传来的气体力转变为转矩输出,以驱动与其相连的动力装置,此外还驱动内燃机本身的配气机构及各种附件。由于柴油机曲轴在工作中受力情况复杂,所以曲轴的部分加工工艺及加工精度要求较高。柴油机曲轴加工面较多、定位、装夹较为复杂,因此需制订合理的加工路线。本说明书介绍了柴油机曲轴加工工艺规程的编制及相关夹具的设计,夹具设计的合理性、经济性。同时还介绍曲轴加工中用到的一套夹具的详细设计过程,包括夹具及误差的计算分析以及其中一个零部件的数控程序编制。


关键词:曲轴;工艺规程;夹具;数控;


目录

第一章 前言 1

第二章 曲轴的结构分析及毛坯图绘制 2

2.1  分析曲轴的零件图 2

2.2曲轴主轴颈的精度分析 3

2.3 零件毛坯图的材料以及成型方法的选定 4

2.3.1 零件毛坯图的绘制 5

第三章 制订加工工艺过程 7

3.1 基准的确定 7

3.2定位基准的选择 7

3.2.1粗基准的选择 8

3.2.2精基准的选择 8

3.2.3  加工顺序的安排 8

3.2.4热处理工序的安排 9

3.2.5辅助工序的安排 10

3.2.6加工余量的确定及工序尺寸的确定 10

3.3 加工工艺过程的确定 11

第四章 确定切削用量 14

4.1  切削用量的确定 14

第五章 曲轴夹具设计要求 17

5.1  夹具设计的要求 17

5.1.1  夹具的组成 17

5.1.2  夹具的功用 17

5.1.3  夹具设计工作的特点 18

5.1.4 夹具设计的基本要求 18

5.1.5  机床夹具设计原理 19

5.1.6  定位方式及其所用的定位元件 21

5.1.7  定位误差分析 23

5.1.8 定位误差的分析计算 24

5.2  工件在夹具中的夹紧 26

5.2.1  对夹紧装置的基本要求 26

5.2.2  确定夹紧力的原则 26

5.2.3  常见夹紧机构 27

5.2.4 夹具的其他装置 29

第六章 专用夹具设计 33

6.1专用夹具设计流程 33

6.2车连杆轴颈的夹具设计 35

6.3钻扇板Φ5油孔夹具的设计 38

第七章 总结 40

参考文献 41

致谢 42

附录A 钻模板数控加工手工程序编制

附录B 装配图A0

附录C 零件图夹具体A0

附录D 零件图钻模板A1

附录E 零件毛坯图A2

附录F 零件图V型块A3

附录G 工序卡一套(26张)

附录H 中英文翻译

温馨提示:

1、题目前面的备注【字母数字编号】为本站整理分类的编号,与课题内容无关,请选题时忽视;

2、若题目上备注三维,则表示文件里包含三维源文件,由于三维组成零件数量较多,为保证预览截图的简洁性,本站将三维文件夹进行了打包。三维及CAD预览截图,均为本站电脑打开软件进行截图的,保证能够打开,下载原件超高清,下载后解压即可;

3、本站所有资源如无特殊说明,都需要本地电脑安装Office2007。图纸软件为AutoCAD,PROE,UG,SolidWorks,CATIA等;

4、本站所有图文资料仅供用户学习参考,不作为任何商用或其他用途;
5、本站不保证下载资源的准确性、安全性和完整性, 不包修改,不支持退换,同时也不承担用户因使用这些下载资源对自己和他人造成任何形式的伤害或损失;

6、 下载文件中如有侵权或不适当内容,请与我们联系,我们立即纠正。


线