

作品包括:
Word版说明书1份,共20页,约11000字
任务书一份
外文翻译一份
CAD版本图纸,共4张
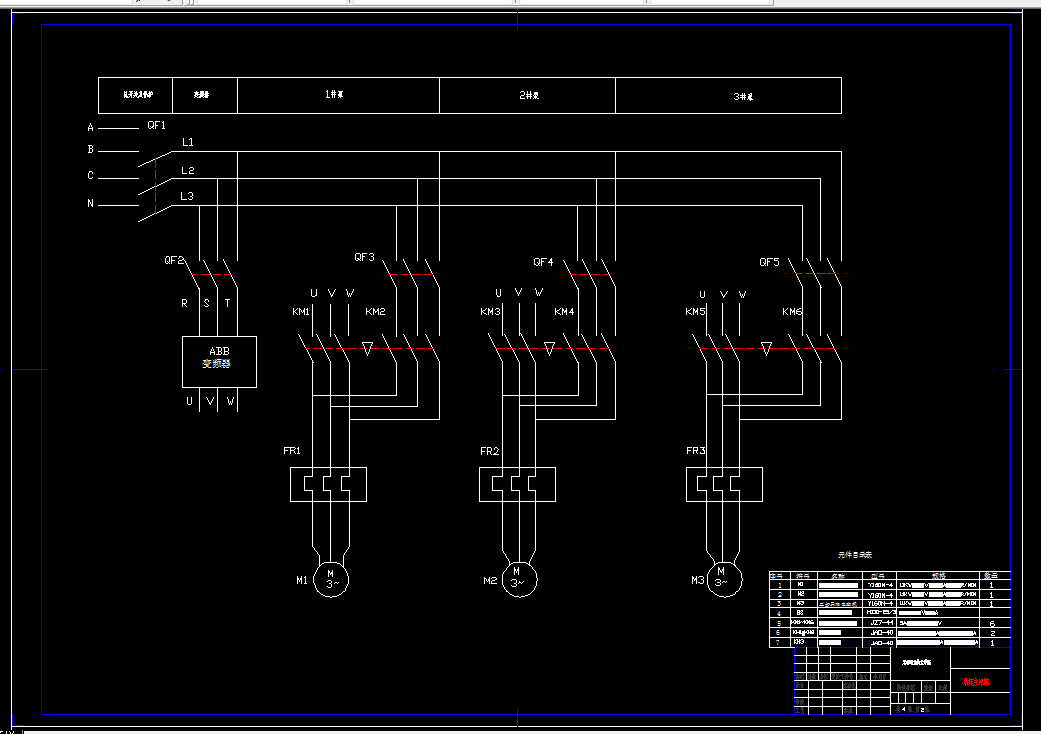
![1730706920630087.png ]V($]U)VM3R{980H`T7}2DX.png](/uploadfiles/20241104/1730706920630087.png)
目 录
摘要…………………………………………………………………………………………………Ⅲ
ABSTRACT………………………………………………………………………………………Ⅳ
第一章 绪论………………………………………………………………………………………1
1.1PLC 的用途与特点………………………………………………………………………3
第二章 系统组成及控制要求……………………………………………………………………6
2.1系统简介…………………………………………………………………………………6
2.2系统组成…………………………………………………………………………………6
2.3控制要求及技术指标……………………………………………………………………6
2.4变频器的技术参数………………………………………………………………………7
第三章 控制系统设计……………………………………………………………………………8
3.1确定控制方案……………………………………………………………………………8
3.1.1抽水泵系统………………………………………………………………………9
3.1.2半自动运行………………………………………………………………………9
3.1.3手动………………………………………………………………………………9
3.1.4 加压泵系统……………………………………………………………………10
3.1.5 系统实现功能…………………………………………………………………10
3.2主电路设计………………………………………………………………………………10
3.3PLC的接线图…………………………………………………………………………… 11
3.4控制电路图………………………………………………………………………………11
3.5程序设计…………………………………………………………………………………11
第四章 PLC选型分析………………………………………………………………………………12
4.1硬件设置…………………………………………………………………………………12
4.2系统软件…………………………………………………………………………………12
4.3PLC的I/O分配……………………………………………………………………………13
4.4PLC主要技术条件分析……………………………………………………………………13
4.5PID应用及介绍……………………………………………………………………………14
4.6PID计算……………………………………………………………………………………16
4.7PLC系统状态分析…………………………………………………………………………17
第五章 结束语……………………………………………………………………………………18
参考文献……………………………………………………………………………………………19
温馨提示:
1、题目前面的备注【字母数字编号】为本站整理分类的编号,与课题内容无关,请选题时忽视;
2、若题目上备注三维,则表示文件里包含三维源文件,由于三维组成零件数量较多,为保证预览截图的简洁性,本站将三维文件夹进行了打包。三维及CAD预览截图,均为本站电脑打开软件进行截图的,保证能够打开,下载原件超高清,下载后解压即可;
3、本站所有资源如无特殊说明,都需要本地电脑安装Office2007。图纸软件为AutoCAD,PROE,UG,SolidWorks,CATIA等;
4、本站所有图文资料仅供用户学习参考,不作为任何商用或其他用途;
5、本站不保证下载资源的准确性、安全性和完整性, 不包修改,不支持退换,同时也不承担用户因使用这些下载资源对自己和他人造成任何形式的伤害或损失;
6、 下载文件中如有侵权或不适当内容,请与我们联系,我们立即纠正。