

作品包括:
Word版设计说明书1份
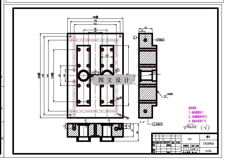
CAD版本图纸,共5张
UG三维塑件图1张
摘要
本次设计的具体过程如下:第一步对塑件的成型工艺性能进行分析。这包括对塑件的结构尺寸的分析和成型塑件的材料各项性能的分析。第二步就是如何合理的选择注射机。选择正确的注射机是本次设计的基础。第三步就是拟定模具的结构形式。模具的结构形式必须根据塑件的结构尺寸,通过计算进行合理的选择。第四步就是浇注系统的设计。第五步是本次设计的重点,成型零部件的设计和计算。第六步是斜滑块侧抽芯机构的设计和计算。 本设计主要是通过使用UG与Auto CAD完成装配图、零件图。此次课设设计综合了大学四年来所学的专业知识,从而进一步巩固了模具设计方面的相关知识,并积累了相关的设计理念与经验。 1457486
温馨提示:
1、题目前面的备注【字母数字编号】为本站整理分类的编号,与课题内容无关,请选题时忽视;
2、若题目上备注三维,则表示文件里包含三维源文件,由于三维组成零件数量较多,为保证预览截图的简洁性,本站将三维文件夹进行了打包。三维及CAD预览截图,均为本站电脑打开软件进行截图的,保证能够打开,下载原件超高清,下载后解压即可;
3、本站所有资源如无特殊说明,都需要本地电脑安装Office2007。图纸软件为AutoCAD,PROE,UG,SolidWorks,CATIA等;
4、本站所有图文资料仅供用户学习参考,不作为任何商用或其他用途;
5、本站不保证下载资源的准确性、安全性和完整性, 不包修改,不支持退换,同时也不承担用户因使用这些下载资源对自己和他人造成任何形式的伤害或损失;
6、 下载文件中如有侵权或不适当内容,请与我们联系,我们立即纠正。