

作品包括:
说明书一份,共32页,约12000字
CAD版本图纸,共3张
目 录
目 录 0
摘 要 1
ABSTRACT 2
1 前言 3
1.1 课题背景 3
1.2 课题分析 5
2 塑件分析 6
2.1 产品分析及其技术条件 6
2.2 塑件材料的确定 7
2.3 塑件材料的性能分析 7
2.3.1基本特性 7
2.3.2成型性能 7
2.3.3主要用途 8
3 成型布局及注塑机选择 9
3.1 进胶方式选择 9
3.2 型腔的布局及成型尺寸 9
3.3 估算塑件体积质量 10
3.4 注塑机的选择和校核 10
3.4.1注射胶量的计算 10
3.4.2锁模力的计算 11
3.4.3 注塑机选择确定 12
4 注塑模具设计 13
4.1 模架的选用 13
4.1.1模架基本类型 13
4.1.2模架的选择 13
4.1.3导向与定位机构设计 14
4.2 浇注系统的设计 15
4.2.1主流道设计 15
4.2.2分流道的设计 16
4.2.3浇口的设计 16
4.2.4冷料穴的设计 16
4.3 分型面的设计 17
4.4 成型零部件的设计 18
4.4.1成型零部件结构 18
4.4.2成型零部件工作尺寸的计算 19
4.4.3模具强度与刚度校核 19
4.5 脱模及推出机构 20
4.5.1脱模力 20
4.5.2推出机构 20
4.6 冷却系统的设计与计算 22
4.6.1冷却水道设计的要点 22
4.6.2冷却水道在定模和动模中的位置 23
4.7 排气结构设计 23
4.8 模具与注射机安装模具部分相关尺寸校核 24
5 结语 25
致谢 26
附图 27
参考文献 28
摘 要
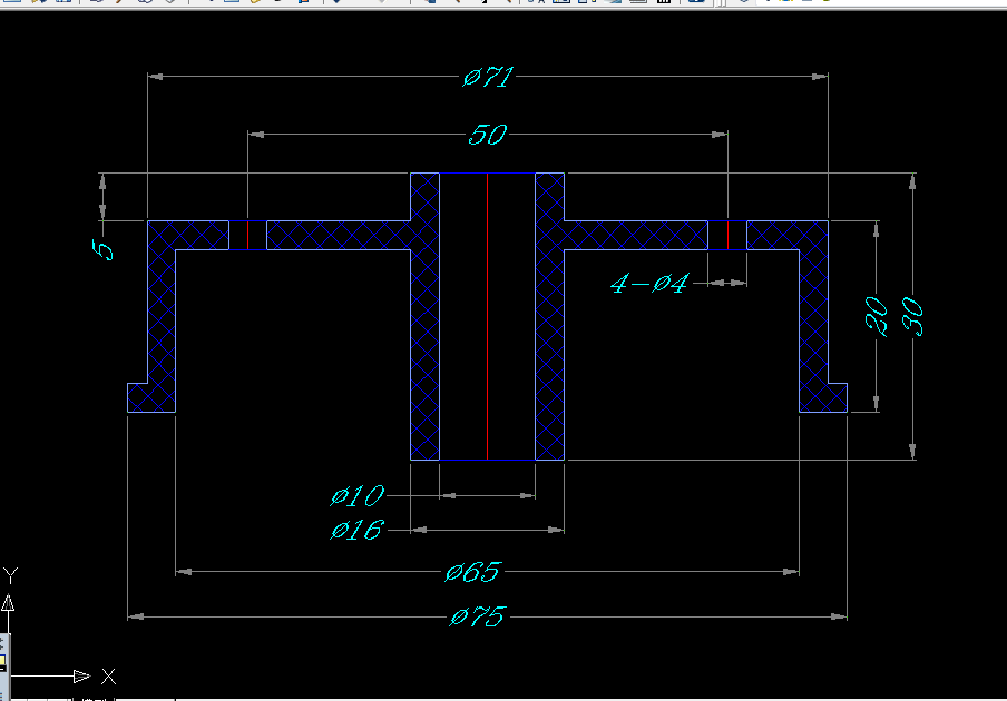
根据塑料制品的要求,了解塑件的用途,分析塑件的工艺性、尺寸精度等技术要求,考虑塑件制件尺寸。本模具采用一模四腔,侧浇口进料,注射机采用HTF160×2A型号,设置冷却系统,CAD和PROE绘制二维总装图和零件图,选择模具合理的加工方法。附上说明书,系统地运用简要的文字,简明的示意图和和计算等分析塑件,从而作出合理的模具设计。
关键词:机械设计;模具设计;CAD绘制二维图;PROE绘制3D图。
温馨提示:
1、题目前面的备注【字母数字编号】为本站整理分类的编号,与课题内容无关,请选题时忽视;
2、若题目上备注三维,则表示文件里包含三维源文件,由于三维组成零件数量较多,为保证预览截图的简洁性,本站将三维文件夹进行了打包。三维及CAD预览截图,均为本站电脑打开软件进行截图的,保证能够打开,下载原件超高清,下载后解压即可;
3、本站所有资源如无特殊说明,都需要本地电脑安装Office2007。图纸软件为AutoCAD,PROE,UG,SolidWorks,CATIA等;
4、本站所有图文资料仅供用户学习参考,不作为任何商用或其他用途;
5、本站不保证下载资源的准确性、安全性和完整性, 不包修改,不支持退换,同时也不承担用户因使用这些下载资源对自己和他人造成任何形式的伤害或损失;
6、 下载文件中如有侵权或不适当内容,请与我们联系,我们立即纠正。