

作品包括:
Word版说明书1份,共45页,约12000字
CAD版本图纸,共11张
摘要
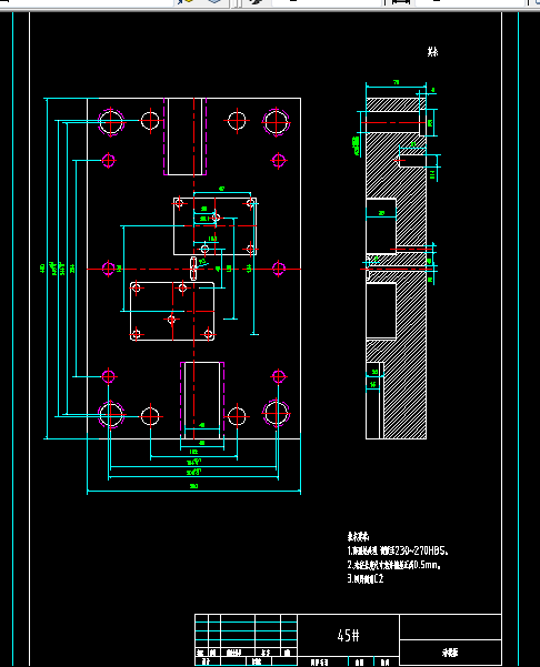
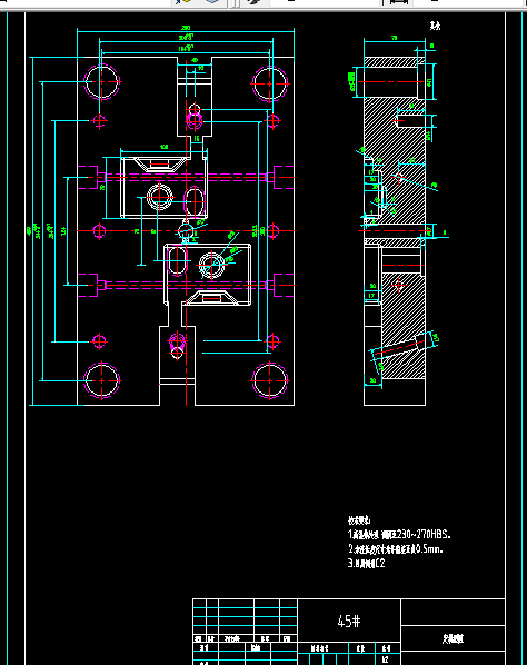
本次的毕业设计是照相机前盖的注塑模的设计,依据产品的数量和塑料的工艺性能确定为单分型面侧浇口。根据注塑的额定注塑量我们可以确定模具的型腔为一模2腔,排列方式为直线对称排列,制件有侧孔,无法直接脱模,所以我们需要设计侧抽芯机构,利用斜导柱带动滑块来完成侧孔的横向抽芯,最后当主流道余料全部被拉出后,再利用推杆推出机构完成塑件的推出。由于塑件比较大,所以需要设计冷却系统对制件进行局部冷却,防止制件发生翘曲变形。
关键词:注塑模;单分型面;一模2腔。
目 录
摘要 I
Abstract I
目 录 II
绪论 1
第一章 塑料制件的分析 3
1.1 成型塑料件的工艺性分析 3
1.2 成型塑件的材料分析 4
1.2.1 ABS塑料主要的性能指标: 4
1.2.2 ABS的注射成型工艺参数: 5
第二章 塑件成型的基本过程 6
第三章 注塑设备的选择 7
3.1估算塑件体积质量 7
3.2 注塑机的选择 8
第四章 成型零件有关尺寸的计算 9
第五章 浇注系统的设计 15
5.1浇口套的选用 15
5.2冷料井的设计 15
5.3分流道的设计 16
5.4分流道的布置 16
5.5浇口设计 18
第六章 合模导向机构的设计 20
6.1导柱的设计 20
6.2 导套的设计 21
第七章 脱模结构的设计 23
第八章 侧抽芯机构的设计 24
8.1抽拔距的计算 24
8.2斜导柱的尺寸与安装形式 24
8.3 锁紧楔形式 26
8.4 斜导柱的受力分析及强度计算 26
第九章 排气系统和温度调节系统的设计 27
9.1排气系统 27
9.2温度调节系统的设计 27
第十章 绘制装配图 29
第十一章 注射机的校核 31
11.1 注射量的校核 31
11.2 锁模力的校核 31
11.3注射机安装模具部分的尺寸校核 31
结束语 33
致谢 34
参考文献 35
《附录》 37
1产品网格划分 38
2 型腔的布置和设计 38
3 浇注系统的设计 39
4 注塑工艺参数的设定 40
5 模拟结果分析 41
温馨提示:
1、题目前面的备注【字母数字编号】为本站整理分类的编号,与课题内容无关,请选题时忽视;
2、若题目上备注三维,则表示文件里包含三维源文件,由于三维组成零件数量较多,为保证预览截图的简洁性,本站将三维文件夹进行了打包。三维及CAD预览截图,均为本站电脑打开软件进行截图的,保证能够打开,下载原件超高清,下载后解压即可;
3、本站所有资源如无特殊说明,都需要本地电脑安装Office2007。图纸软件为AutoCAD,PROE,UG,SolidWorks,CATIA等;
4、本站所有图文资料仅供用户学习参考,不作为任何商用或其他用途;
5、本站不保证下载资源的准确性、安全性和完整性, 不包修改,不支持退换,同时也不承担用户因使用这些下载资源对自己和他人造成任何形式的伤害或损失;
6、 下载文件中如有侵权或不适当内容,请与我们联系,我们立即纠正。