

作品包括:
说明书一份,41页,13000字左右.
CAD版本图纸,共10张:
摘 要
本设计介绍了一种林区割灌机产品:自走式割灌机。设计中根据林区路面状况,以及清林抚育的作业情况,而设计出能够适应林区崎岖路面及道路狭窄等恶劣环境的自走式割灌机,具有很高的实用性和推广价值。
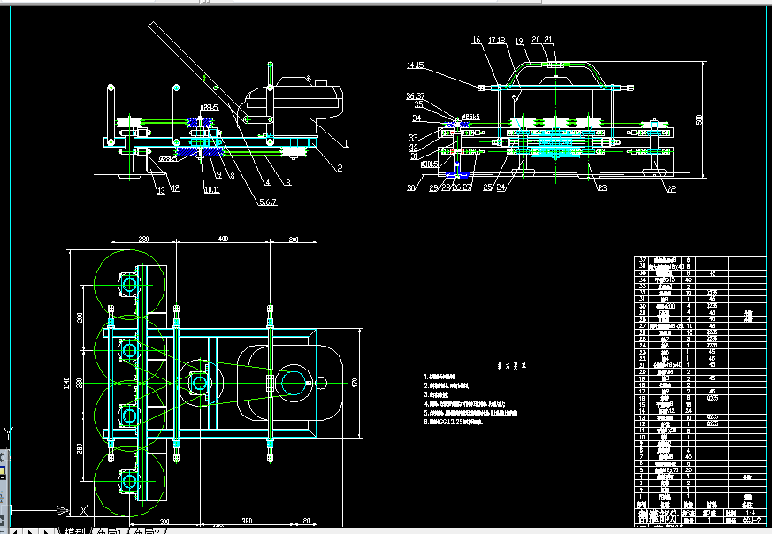
该自走式割灌机由行走部分,割灌部分,驾驶台以及排障部分等组成,可以锯切加工直径范围在10 ~80mm的灌木。整个机器由两个汽油机提供动力,一个提供行走动力,另一个提供割灌动力。锯片位于整个机器的前下端,由驾驶台控制杆控制其离地面高度,以适应林区路面状况。通过顶部的排障杆使高于机器顶部的灌木倒向预定方向,达到排障目的。该自走式割灌机结构简单,容易维修,操作简单。
在文章中,对该自走式割灌机的主要部件进行了设计计算(例如:皮带轮,轴,轴承,键,四连杆等 ),并对主要部件进行了系统的介绍和说明,对使用中涉及到的润滑,保养及注意事项也作了说明。
关键词:自走式;割灌机;割灌部分;行走部分;驾驶台;排障杆
目 录
摘要……………………………………………………………………………………………Ⅰ
Abstract……………………………………………………………………………………Ⅱ
第1章绪论……………………………………………………………………………………1
1.1引言……………………………………………………………………………………1
1.2割灌机的应用范围……………………………………………………………………1
1.3割灌机的发展现状……………………………………………………………………2
1.4我国割灌机的市场及前景……………………………………………………………6
1.5割灌机的发展方向……………………………………………………………………7
1.6自走式割灌机设计的意义……………………………………………………………8
第2章 结构概述 ………………………………………………………………………… 9
2.1工作原理……………………………………………………………………………… 9
2.2结构分析……………………………………………………………………………… 9
2.3本章小结…………………………………………………………………………… 10
第3章 行走部分设计…………………………………………………………………… 11
3.1 方案的确定…………………………………………………………………………11
3.2 机构选择……………………………………………………………………………12
3.3 动力选择……………………………………………………………………………13
3.4 主要设计参数………………………………………………………………………13
3.5本章小结……………………………………………………………………………14
第4章 割灌部分设计…………………………………………………………………… 15
4.1 方案的确定…………………………………………………………………………15
4.2 汽油机输出带轮设计 ……………………………………………………………15
4.3 中间传动轴的计算…………………………………………………………………20
4.4 中间传动轴的校核 …………………………………………………………………20
4.5中间传动轴轴承的校核 ……………… ……………………………………………24
4.6 中间轴的键的选择和校核 …………………………………………………………27
4.7本章小结……………………………………………………………………………28
第5章 驾驶台设计………………………………………………………………………29
5.1方案确定……………………………………………………………………………29
5.2本章小结……………………………………………………………………………30
第6章 排障部分设计 …………………………………………………………………31
6.1方案确定……………………………………………………………………………31
6.2本章小结……………………………………………………………………………32
结论……………………………………………………………………………………………33
参考文献……………………………………………………………………………………34
致谢……………………………………………………………………………………………35
温馨提示:
1、题目前面的备注【字母数字编号】为本站整理分类的编号,与课题内容无关,请选题时忽视;
2、若题目上备注三维,则表示文件里包含三维源文件,由于三维组成零件数量较多,为保证预览截图的简洁性,本站将三维文件夹进行了打包。三维及CAD预览截图,均为本站电脑打开软件进行截图的,保证能够打开,下载原件超高清,下载后解压即可;
3、本站所有资源如无特殊说明,都需要本地电脑安装Office2007。图纸软件为AutoCAD,PROE,UG,SolidWorks,CATIA等;
4、本站所有图文资料仅供用户学习参考,不作为任何商用或其他用途;
5、本站不保证下载资源的准确性、安全性和完整性, 不包修改,不支持退换,同时也不承担用户因使用这些下载资源对自己和他人造成任何形式的伤害或损失;
6、 下载文件中如有侵权或不适当内容,请与我们联系,我们立即纠正。