欢迎来到龙图网在线图文分享平台-CAD图纸,设计说明书,工业设计3D模型,三维软件下载!   客服QQ:2363701252
热搜:

工艺夹具 模具设计 数控编程 土木工程 3D模型

C255-电动绞肉机设计 下载积分:50 资料编号: C255

1.打开支付宝或者微信扫描二维码。
2.填写金额:50 
3.添加备注,填写资料编号:
资料编号: C255
4.支付成功后,请发资料编号到邮箱:jxsj168@qq.com
会有专人在15分钟内把资料发到您邮箱
备注:如果付款忘记填写资料编号,则发邮件时附带您的交易明细截图即可。
请耐心等待,如超过30分钟还没收到,请联系客服QQ:2363701252
点击分享:

作品描述

作品包括:

Word版说明书1份,共36页,约10000字

CAD版本图纸,共15张


摘要

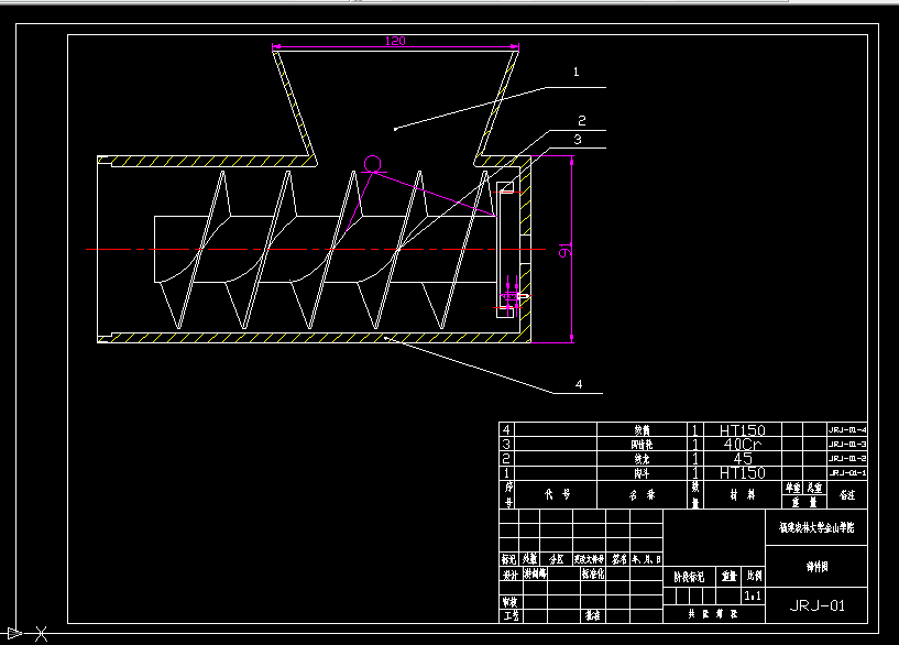
绞肉机是肉类加工企业在生产过程中,将原料肉按不同工艺要求加工规格不等的颗粒状肉馅,以便于同其它辅料充分混合来满足不同产品的需求绞肉机为系列产品。本文论述了绞肉机的结构、工作原理、主要技术参数、传动系统、典型零件的结构设计及生产能力分析设计。希望对本次设计的探索和研究能设计出实用经济的家用绞肉机,更好的方便人民的生活。食品工业要想达到现代化水平,在很大程度上还是依赖于食品机械的发展及其现代化水平,现代食品工业离不开现代仪器和设备。

食品工业的发展是设备和工艺共同发展的结果,应使设备和工艺达到最佳配合,以设备革新和创新促进工艺的改进和发展,以工艺的发展进一部促进设备的发展和完善。两者互相促进、互相完善,是使整个食品工业向现代化迈进的必要条件。

关键词:绞肉机;绞龙;螺旋供料器;齿轮强度;绞刀;挤肉样板 


目录

摘要 I

Abstract II

第一章 绪  论 - 1 -

第二章 结 构 及 工 作 原 理 - 2 -

2.1绞肉机的结构方案确定 - 2 -

2.2绞肉机的结构 - 4 -

2.3绞肉机的工作原理 - 5 -

2.4生产能力分析 - 6 -

2.4.1绞刀的切割能力 - 6 -

2.4.2绞肉机的生产能力G - 7 -

2.4.3功率消耗N - 7 -

第三章 绞龙的设计 - 8 -

3.1绞龙的设计 - 8 -

3.1.1绞龙的材料 - 9 -

3.1.2绞龙直径 - 9 -

3.1.3绞龙的转速 - 9 -

3.2绞筒的设计 - 11 -

第四章 传动系统的设计 - 11 -

4.1电机的选择 - 11 -

4.2 带传动的设计计算 - 12 -

4.2.1确定计算功率 - 12 -

4.2.2选择V带的带型 - 12 -

4.2.3先是要把带轮的基准直径dd算出来,然后还要计算带速v - 13 -

4.2.4要先计算中心距a,再来确定V带地基准长度Ld - 13 -

4.2.5验算小带轮上的包角α1 - 13 -

4.2.6确定带的根数z - 14 -

4.2.7求带传动的压轴力 - 14 -

4.2.8带轮结构设计 - 14 -

4.3齿轮传动的设计计算 - 15 -

4.3.1齿根弯曲疲劳强度 - 15 -

4.3.2齿面接触疲劳强度 - 17 -

4.3.3几何尺寸计算 - 19 -

4.3.4圆整中心距后的强度校核 - 20 -

4.4.1各轴的转速计算 - 22 -

4.4.2各轴输入功率计算 - 22 -

4.4.3按扭转强度条件计算 - 22 -

第五章 绞刀设计 - 23 -

5.1绞刀的设计 - 24 -

5.1.1刀刃的起讫位置 - 25 -

5.1.2刀刃的前角 - 26 -

5.1.3刀刃的后角 - 28 -

5.1.4刀刃的刃倾角 - 28 -

5.1.5刀片的结构 - 29 -

第六章 设计小结 - 30 -

参考文献 - 31 -

致谢 - 32 -

温馨提示:

1、题目前面的备注【字母数字编号】为本站整理分类的编号,与课题内容无关,请选题时忽视;

2、若题目上备注三维,则表示文件里包含三维源文件,由于三维组成零件数量较多,为保证预览截图的简洁性,本站将三维文件夹进行了打包。三维及CAD预览截图,均为本站电脑打开软件进行截图的,保证能够打开,下载原件超高清,下载后解压即可;

3、本站所有资源如无特殊说明,都需要本地电脑安装Office2007。图纸软件为AutoCAD,PROE,UG,SolidWorks,CATIA等;

4、本站所有图文资料仅供用户学习参考,不作为任何商用或其他用途;
5、本站不保证下载资源的准确性、安全性和完整性, 不包修改,不支持退换,同时也不承担用户因使用这些下载资源对自己和他人造成任何形式的伤害或损失;

6、 下载文件中如有侵权或不适当内容,请与我们联系,我们立即纠正。


线