

作品包括:
Word版设计说明书1份
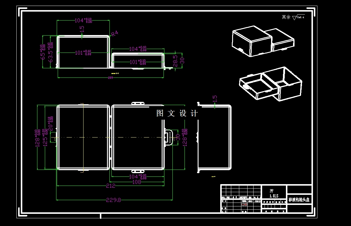
CAD版本图纸,共10张
UG三维图一份
摘要
此设计为移液枪枪头盒注塑模具设计(17141),采用一模二腔,侧浇注口进行填充,提供三维(UG格式)+二维装配图1张及主要零件图9张+设计报告文档( 文档约1.9W字 54页)。本论文所讲的设计是移液枪枪头盒塑零件注塑模具设计,本论文中非常详细的叙述了注塑模具在成型时的成型加工工艺。以及模具制造的制造技术及研究绘制模具图的全部流程。然后再对本零件的实行使用性以及结构上面的进行比较详细的分析及工艺过程来演示分析,并学习和使用CAD,NXug,pore等软件进行绘图和分析、同时对成型过程中各种参数的变化,在模具设计时给以优化及避免。本文列出了注射机的各项参数及选择的重要根据,并进行了对主要的参数做了一系列进行了计算与重要部位的校核。体会到了零件的分析,模具的设计布局,同时也为本模具说明书做了铺垫。设计完成注塑分析与设计,需要画出整套装配图及零件图。本模具机能比较可靠,可以提高产物的质量和出产效率,使成本降到最低。
温馨提示:
1、题目前面的备注【字母数字编号】为本站整理分类的编号,与课题内容无关,请选题时忽视;
2、若题目上备注三维,则表示文件里包含三维源文件,由于三维组成零件数量较多,为保证预览截图的简洁性,本站将三维文件夹进行了打包。三维及CAD预览截图,均为本站电脑打开软件进行截图的,保证能够打开,下载原件超高清,下载后解压即可;
3、本站所有资源如无特殊说明,都需要本地电脑安装Office2007。图纸软件为AutoCAD,PROE,UG,SolidWorks,CATIA等;
4、本站所有图文资料仅供用户学习参考,不作为任何商用或其他用途;
5、本站不保证下载资源的准确性、安全性和完整性, 不包修改,不支持退换,同时也不承担用户因使用这些下载资源对自己和他人造成任何形式的伤害或损失;
6、 下载文件中如有侵权或不适当内容,请与我们联系,我们立即纠正。