

作品包括:
Word版设计说明书1份
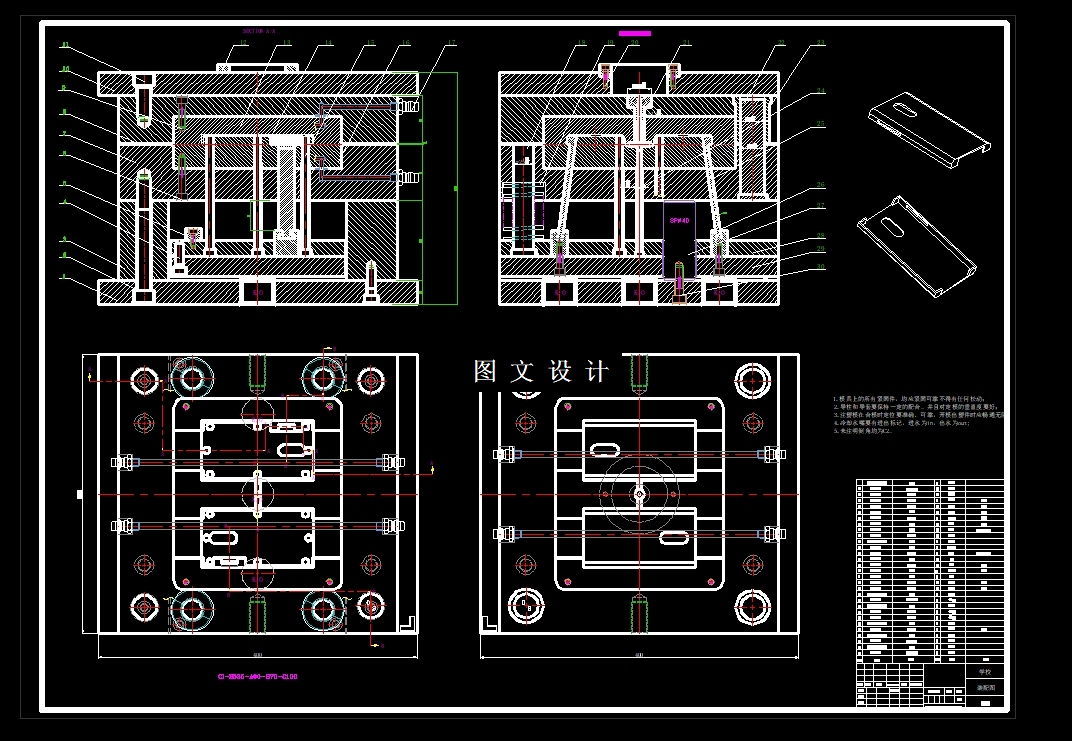
CAD版本图纸,共12张
UG三维图一份
摘要
此设计为手机保护壳的注塑模设计,采用一模二腔,侧浇注口进行填充,提供三维(UG格式)+二维装配图1张及主要零件图11张+设计报告文档( 文档约1.6W字 43页)。运用UG和CAD等电脑软件对塑件的塑胶模具设计进行成型分析和建模设计。三维图方面不仅仅要完成塑件的建模,还需要完成塑件的整套注塑模具的建模。除此之外,二维图纸方面需要完成此套注塑模具的装配图、产品图以及重要的零件图。根据塑件的构造,分析适合它的模具结构方案,最后选择了一模两腔推杆及斜顶的脱模推出的方案。这次的注塑模具有很多优点,比如模具的结构不复杂、加工简单、模具稳定不容易坏、精度达标、生产过程中报废率低、维修方便、使用时间相对长等等。本次的内容不仅仅介绍和分析了模具的分型面和浇注系统,同时也对模具的抽芯机构、运水、调温系统等等要点作出了相当详尽的介绍和分析。
1767505
温馨提示:
1、题目前面的备注【字母数字编号】为本站整理分类的编号,与课题内容无关,请选题时忽视;
2、若题目上备注三维,则表示文件里包含三维源文件,由于三维组成零件数量较多,为保证预览截图的简洁性,本站将三维文件夹进行了打包。三维及CAD预览截图,均为本站电脑打开软件进行截图的,保证能够打开,下载原件超高清,下载后解压即可;
3、本站所有资源如无特殊说明,都需要本地电脑安装Office2007。图纸软件为AutoCAD,PROE,UG,SolidWorks,CATIA等;
4、本站所有图文资料仅供用户学习参考,不作为任何商用或其他用途;
5、本站不保证下载资源的准确性、安全性和完整性, 不包修改,不支持退换,同时也不承担用户因使用这些下载资源对自己和他人造成任何形式的伤害或损失;
6、 下载文件中如有侵权或不适当内容,请与我们联系,我们立即纠正。