欢迎来到龙图网在线图文分享平台-CAD图纸,设计说明书,工业设计3D模型,三维软件下载!   客服QQ:2363701252
热搜:

工艺夹具 模具设计 数控编程 土木工程 3D模型

C350-集装箱龙门起重机设计(电气控制部分) 下载积分:50 资料编号: C350

1.打开支付宝或者微信扫描二维码。
2.填写金额:50 
3.添加备注,填写资料编号:
资料编号: C350
4.支付成功后,请发资料编号到邮箱:jxsj168@qq.com
会有专人在15分钟内把资料发到您邮箱
备注:如果付款忘记填写资料编号,则发邮件时附带您的交易明细截图即可。
请耐心等待,如超过30分钟还没收到,请联系客服QQ:2363701252
点击分享:

作品描述

作品包括:

Word版说明书1份,共59页,约39000字

CAD版本图纸,共5张

 

摘 要


轨道式集装箱门式起重机是目前国内外非常受推崇的一种集装箱堆场机型,我国港口越来越多地选用这种机型。本文介绍轨道式集装箱门式起重机的三大工作机构、电气设备和电气控制系统等内容,主要是集装箱门式起重机的电气控制系统的设计过程。


关键词:门式起重机,电动机,变频器,接触器,继电器


目  录


摘要………………………………………………………………………………1

前言………………………………………………………………………………1

第1章  轨道式集装箱龙门式起重机…………………………………………3

1.1  概述 …………………………………………………………………3

1.2  特点………………………………………………………………… 6

1.3 分类……………………………………………………………………7

1.4 主要技术参数…………………………………………………………7

1.5  集装箱门式起重机机构…………………………………………… 9

第2章  门式起重机的工作机构…………………………………………… 11

      2.1  概述…………………………………………………………………11

      2.2  起升机构……………………………………………………………11

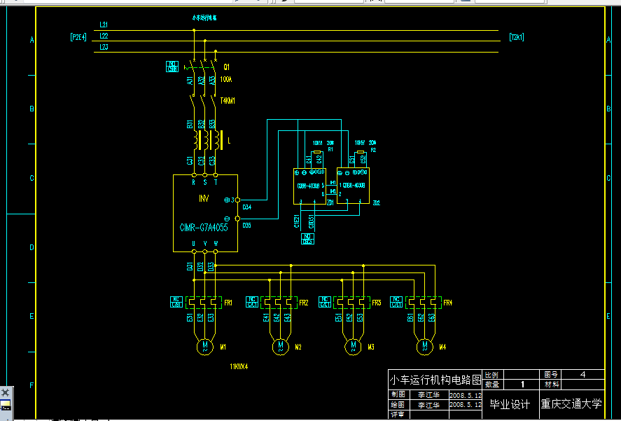
      2.3  小车走行机构………………………………………………………12

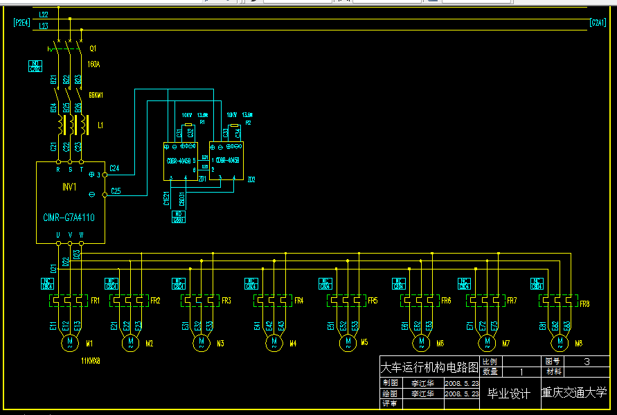
      2.4  大车走行机构………………………………………………………13

第3章  门式起重机的电气设备…………………………………………… 16

      3.1  概述…………………………………………………………………16

      3.2  电动机………………………………………………………………22

3.3  控制电器及选用……………………………………………………29

3.4  变频器的选择………………………………………………………33

3.5  可编程序控制器(PLC)………………………………………… 42

3.6  电器保护装置及选用………………………………………………51

3.7  导电装置以及电气电路……………………………………………53

3.8  起重机控制站………………………………………………………54

      3.9  电气设备的维护与检修……………………………………………54

3.10 机房结构概述………………………………………………………55

结语……………………………………………………………………………57

谢词……………………………………………………………………………58

主要参考文献…………………………………………………………………59

注:电气图中各种元件和电缆型号见附录1、2

温馨提示:

1、题目前面的备注【字母数字编号】为本站整理分类的编号,与课题内容无关,请选题时忽视;

2、若题目上备注三维,则表示文件里包含三维源文件,由于三维组成零件数量较多,为保证预览截图的简洁性,本站将三维文件夹进行了打包。三维及CAD预览截图,均为本站电脑打开软件进行截图的,保证能够打开,下载原件超高清,下载后解压即可;

3、本站所有资源如无特殊说明,都需要本地电脑安装Office2007。图纸软件为AutoCAD,PROE,UG,SolidWorks,CATIA等;

4、本站所有图文资料仅供用户学习参考,不作为任何商用或其他用途;
5、本站不保证下载资源的准确性、安全性和完整性, 不包修改,不支持退换,同时也不承担用户因使用这些下载资源对自己和他人造成任何形式的伤害或损失;

6、 下载文件中如有侵权或不适当内容,请与我们联系,我们立即纠正。


线