

作品包括:
Word版说明书1份,共37页,约12000字
CAD版本图纸,共9张
摘 要
机械制造技术基础课程设计,是以切削理论为基础,制造工艺为主线,兼顾工艺装备知识的机械制造技术基本涉机能力培养的实践课程;是综合运用机械制造技术的基本知识,基本理论和基本技能,分析和解决实际工程问题的一个重要教学环节;是对学生运用掌握的“机械制造”技术基础知识及相关知识的一次全面的应用训练。
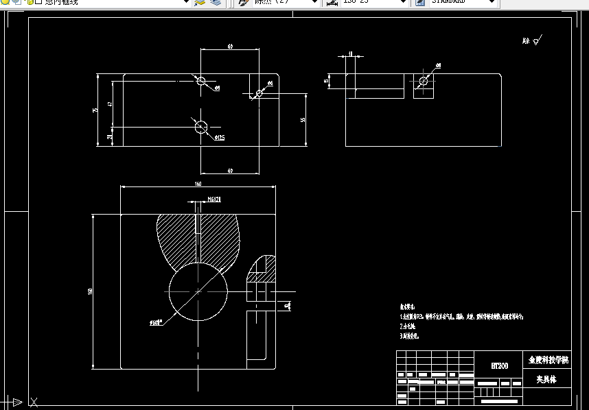
此次论文是对轴承外壳零件的加工工艺和钻夹具的论述,零件为铸件,体积小,零件结构复杂,加工精度要求不高。由于面较容易加工,因此制定工艺规程时,先加工面,再以面为基准加工其他。加工过程中,各工序夹具都采用专用夹具,夹具设计应满足结构简单、使用方便、能够保证零件尺寸精度的原则。
设计钻床夹具,首先要仔细分析加工零件的技术要求,运用夹具设计的基本原理和方法,拟定夹具设计方案;在满足加工精度的条件下,合理的进行安装、定位、夹紧;在完成夹具草图后,进一步考虑零件间的连接关系和螺钉、螺母、定位销等的固定方式,设计合理的结构实现各零部件间的相对运动;根据各零件的使用要求,选择相应的材料。
完成钻床夹具的所有设计后,用AutoCAD进行二维图形的绘制,首先画装配图,然后从装配图上拆画零件图,标注相关尺寸及技术要求,最后进行论文的撰写、整理、修改完成该毕业设计。
关键词 : 轴承外壳 加工工艺 夹具 设计
目录
摘 要 I
ABSTRACT I
第1章 引言 1
1.1课题的提出原因 1
1.2课题的主要内容 1
1.3课题的构思 1
1.4本人所完成的工作量 1
第2章 零件的工艺设计 2
2.1 零件的功用及工艺分析 2
2.1.1 零件的功用 2
2.1.2零件的工艺分析 3
2.2 工艺规程的设计 3
2.2.1 确定生产类型 3
2.2.2确定毛坯的制造形式 4
2.2.3基准的选择 4
2.2.4工序的合理组合 5
2.2.5制定工艺路线 5
2.2.6确定切削用量及基本工时 6
第3章 加工设备与工艺装备选择 11
3.1选择机床 11
3.2选择夹具 11
3.3选择刀具 11
第4章 钻床夹具设计 13
4.1问题的提出 13
4.2定位基准的选择 13
4.3切削力及夹紧力的计算 13
4.4定位误差的分析 15
4.5夹具总体方案 15
4.6夹紧装置 15
4.7钻套的选择 15
4.8钻模板的设计 16
4.9夹具的装夹与拆卸 16
第5章 基于UG NX6的机构建模和装配 17
5.1UG NX6软件简介 17
5.2 基于UG 夹具建模 18
5.2.1 UG 中的特征建模技术 18
5.2.2 夹具的UG 建模 18
5.3 基于UG的夹具机构虚拟装配 25
5.3.1 夹具的虚拟装配 25
第6章 小 结 27
致谢 29
参考文献 31
温馨提示:
1、题目前面的备注【字母数字编号】为本站整理分类的编号,与课题内容无关,请选题时忽视;
2、若题目上备注三维,则表示文件里包含三维源文件,由于三维组成零件数量较多,为保证预览截图的简洁性,本站将三维文件夹进行了打包。三维及CAD预览截图,均为本站电脑打开软件进行截图的,保证能够打开,下载原件超高清,下载后解压即可;
3、本站所有资源如无特殊说明,都需要本地电脑安装Office2007。图纸软件为AutoCAD,PROE,UG,SolidWorks,CATIA等;
4、本站所有图文资料仅供用户学习参考,不作为任何商用或其他用途;
5、本站不保证下载资源的准确性、安全性和完整性, 不包修改,不支持退换,同时也不承担用户因使用这些下载资源对自己和他人造成任何形式的伤害或损失;
6、 下载文件中如有侵权或不适当内容,请与我们联系,我们立即纠正。