

作品包括:
Word设计说明书1份,共45页
CAD版本图纸,共10张
SW三维图一套
摘要
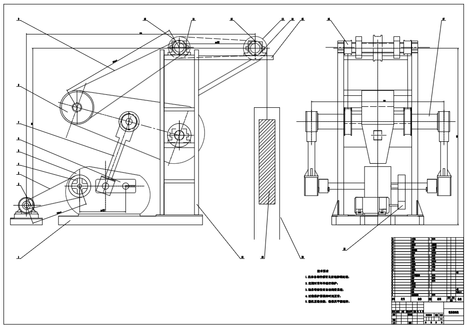
对游梁式抽油机进行增大行程的改进设计时,面临着的缺点如:整体造价高,整体外形尺寸大,且使用消耗功率较多等突出问题。按照采油工艺的要求,目前所有的国家都在研制一种长冲程,能承受大载荷,低冲次,且高效节能的抽油机。其中所述的链条抽油机就能满足上述要求,具有结构较为简单,整体质量轻,且耗能少,冲次低,冲程长,悬点加速度变化小,运动过程的惯性载荷小,整体平稳,减速器设定的额定扭矩小和便于安装等特点本文阐述了一种新型的链条抽油机,利用增大转角机构原理、滑轮组增倍原理对现有抽油机进行了改进,对改进后的抽油机部分进行详细的总体设计,对零部件进行必要的强度校核,完成整体装配后对其进行了三维建模和有限元分析。
温馨提示:
1、题目前面的备注【字母数字编号】为本站整理分类的编号,与课题内容无关,请选题时忽视;
2、若题目上备注三维,则表示文件里包含三维源文件,由于三维组成零件数量较多,为保证预览截图的简洁性,本站将三维文件夹进行了打包。三维及CAD预览截图,均为本站电脑打开软件进行截图的,保证能够打开,下载原件超高清,下载后解压即可;
3、本站所有资源如无特殊说明,都需要本地电脑安装Office2007。图纸软件为AutoCAD,PROE,UG,SolidWorks,CATIA等;
4、本站所有图文资料仅供用户学习参考,不作为任何商用或其他用途;
5、本站不保证下载资源的准确性、安全性和完整性, 不包修改,不支持退换,同时也不承担用户因使用这些下载资源对自己和他人造成任何形式的伤害或损失;
6、 下载文件中如有侵权或不适当内容,请与我们联系,我们立即纠正。