

作品包括:
Word设计说明书1份
CAD版本图纸,共13张
UG三维图一份
摘要
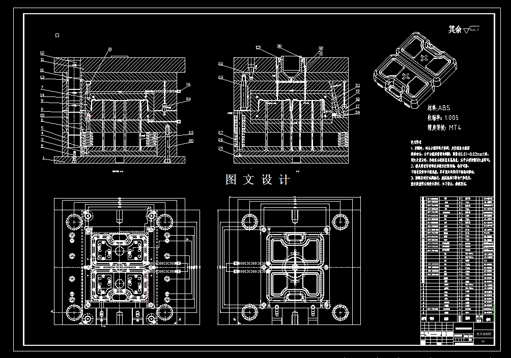
本文以便携式急救箱外壳为研究对象,采用逆向工程与模具设计相结合的方法,对该产品进行了逆向设计与模具设计。首先使用3D扫描技术对急救箱外壳进行了扫描和分析,获取了其三维CAD数据、构件材料和结构特点等信息。然后通过分析急救箱外壳的使用场景和注塑过程的要求,选择了适合的注塑机型号和规格,并设计了相应的模具结构和流道系统。同时,使用CAE软件进行模拟分析和优化,预测模具在注塑过程中的热流、应力和变形等情况,优化和调整模具设计,最终确定了最优的模具设计方案。通过实际注塑试验验证,所设计的模具具有较好的生产效率和注塑成品的质量,能够满足便携式急救箱外壳的生产需求。本文的研究结果对于便携式急救箱生产和模具设计具有参考意义
温馨提示:
1、题目前面的备注【字母数字编号】为本站整理分类的编号,与课题内容无关,请选题时忽视;
2、若题目上备注三维,则表示文件里包含三维源文件,由于三维组成零件数量较多,为保证预览截图的简洁性,本站将三维文件夹进行了打包。三维及CAD预览截图,均为本站电脑打开软件进行截图的,保证能够打开,下载原件超高清,下载后解压即可;
3、本站所有资源如无特殊说明,都需要本地电脑安装Office2007。图纸软件为AutoCAD,PROE,UG,SolidWorks,CATIA等;
4、本站所有图文资料仅供用户学习参考,不作为任何商用或其他用途;
5、本站不保证下载资源的准确性、安全性和完整性, 不包修改,不支持退换,同时也不承担用户因使用这些下载资源对自己和他人造成任何形式的伤害或损失;
6、 下载文件中如有侵权或不适当内容,请与我们联系,我们立即纠正。