

作品描述:
Word版说明书一份,40页,15000字左右.
CAD版本图纸共3张
摘 要
ZY3200/14/34掩护式液压支架的设计,主要是针对冀中集团梧桐庄矿22313工作面的煤层、围岩情况及其配套设备进行选型设计的一种实用液压支架,它包括以下几个部分:
通过介绍整个矿井的地质条件及工作面的实际情况,结合支架的发展情况及分类,对液压支架进行了选型,并确定其基本技术参数。
根据结构部件在整个液压支架中承载情况及作用,详细对支架的顶梁、四连杆机构、侧护板、底座、立柱、各种千斤顶等部件进行了结构设计,确定了其整体结构尺寸。重点对立柱做了结构、技术参数说明,并根据其承载的工作阻力对立柱的稳定性,活塞杆和缸体的强度进行了校验。
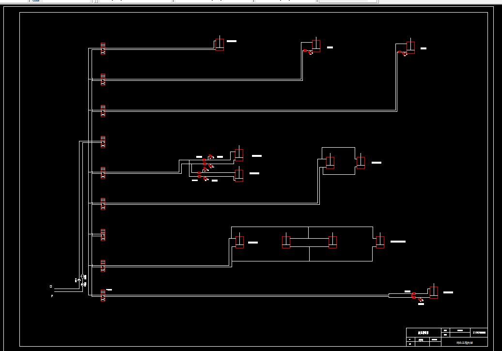
介绍了该支架液压系统的特点,详细说明了立柱、各种千斤顶系统的基本控制回路及它们的工作原理,并对泵站液压元件、液压管路进行了选型。
关键词: 掩护式液压支架 结构部件 液压系统
目 录
第一章 概论……………………………………………………………6
1.1 矿井的概述………………………………………………………6
1.2 支架的发展情况…………………………………………………6
1.3 液压支架在工作面的工作情况…………………………………….6
1.4 液压支架的工作原理……………………………………………...6
1.5液压支架的选型…………………………………………………7
1.6 掩护式支架的特点………………………………………………..8
1.7 主要技术特征及配套设备…………………………………………9
1.8液压支架基本参数的确定………………………………………10
1.9配套设备与要求…………………………………………………11
第二章 液压支架结构尺寸的设计……………………………….12
2.1顶梁尺寸的确定…………………………………………………12
2.2四连杆机构的确定…………………………………………… .12
2.3底座长度的确定…………………………………………………14
第三章 液压支架部件的设计………………………………………15
3.1顶梁的设计………………………………………………………15
3.2掩护梁的设计……………………………………………………15
3.3四连杆机构设计…………………………………………………16
3.4侧护板的设计……………………………………………………16
3.5 底座的设计……………………………………………………..17
3.6推移装置…………………………………………………………18
3.7护帮装置…………………………………………………………18
3.8 立柱……………………………………………………………. 19
3.9千斤顶……………………………………………………………21
第四章 喷雾灭尘系统设计……………………………….……………23
4.1 系统的作用…………………………………………………….23
4.2 系统的组成…………………………………………………….23
第五章 液压支架部件受力分析及强度验算…………………..25
5.1 支架的强度条件………………………………………………….25
5.2 立柱的强度校核……………………………………………… 25
5.2.1立柱的稳定性验算…………………………………………….25
5.2.2活塞杆强度验算……………………………………………….27
5.2.3缸体的强度验算………………………………………………………..29
第六章 液压支架的液压系统设计………………………………………..31
6.1液压支架的液压系统简介………………………………………31
6.2液压支架的基本控制回路………………………………………32
6.3泵站及各种液压元件的选型……………………………………35
结 论………………………………………………………………………38
参考文献………………………………………………………………….39
谢 辞………………………………………………………………………40
温馨提示:
1、题目前面的备注【字母数字编号】为本站整理分类的编号,与课题内容无关,请选题时忽视;
2、若题目上备注三维,则表示文件里包含三维源文件,由于三维组成零件数量较多,为保证预览截图的简洁性,本站将三维文件夹进行了打包。三维及CAD预览截图,均为本站电脑打开软件进行截图的,保证能够打开,下载原件超高清,下载后解压即可;
3、本站所有资源如无特殊说明,都需要本地电脑安装Office2007。图纸软件为AutoCAD,PROE,UG,SolidWorks,CATIA等;
4、本站所有图文资料仅供用户学习参考,不作为任何商用或其他用途;
5、本站不保证下载资源的准确性、安全性和完整性, 不包修改,不支持退换,同时也不承担用户因使用这些下载资源对自己和他人造成任何形式的伤害或损失;
6、 下载文件中如有侵权或不适当内容,请与我们联系,我们立即纠正。