欢迎来到龙图网在线图文分享平台-CAD图纸,设计说明书,工业设计3D模型,三维软件下载!   客服QQ:2363701252
热搜:

工艺夹具 模具设计 数控编程 土木工程 3D模型

D368-海棠湾大酒店供配电系统设计 下载积分:50 资料编号: D368

1.打开支付宝或者微信扫描二维码。
2.填写金额:50 
3.添加备注,填写资料编号:
资料编号: D368
4.支付成功后,请发资料编号到邮箱:jxsj168@qq.com
会有专人在15分钟内把资料发到您邮箱
备注:如果付款忘记填写资料编号,则发邮件时附带您的交易明细截图即可。
请耐心等待,如超过30分钟还没收到,请联系客服QQ:2363701252
点击分享:

作品描述

作品包括:

Word版说明书1份,共63页,约23000字

CAD版本图纸,共6张


摘 要

随着旅游业的发展,酒店业如雨后春笋般蓬勃发展起来,既是社会发展使然,更是人之常情所至,如此说,酒店业的兴旺正是应势而生,水到渠成的事。现在酒店业已不仅仅只是提供给人们一个吃住行的场所,而是集吃、住、行、娱乐、健身和购物为一身的多功能服务体系。这种社会需求下,人们对酒店业所提供的服务有了更高的要求。

本文以某酒店为例,主要阐述了某酒店各电气系统设计的设计依据、原理及方法和设计选择的结论。本设计从电源进线到电压配电柜出线逐级向下到低压配电系统,并根据规定选择电线电缆,达到安全用电目的。


关键词:

变压器  熔断器   负荷  无功补偿   短路电流   电气系统

目   录

摘 要 i

Abstract ii

前言 1

一、 酒店供电的基本要求 2

二、酒店供电设计的原则 3

三、酒店的原始数据资料 4

第二章  负荷计算 6

一、负荷计算的目的 7

二、负荷计算的方法 8

三、负荷计算方法确定原则 8

四、具体负荷计算 8

第三章  无功功率补偿 16

一、 无功功率 16

二、提高功率因素的好处 16

三、提高自然功率因素常采用的措施 16

四、补偿电容 16

五、电容器设备的选择 17

第四章  变压器的选型 19

一、变压器台数的选择原则 19

二、主变压器容量的选择 19

三、变压器选择技术参数 20

四、备用电源设备选型 21

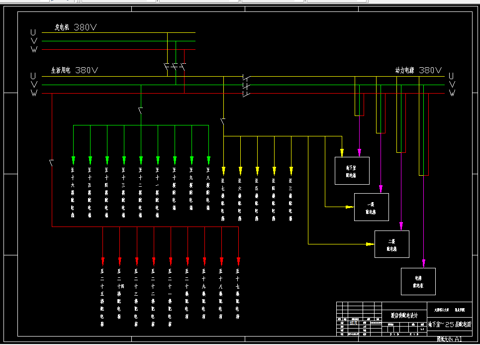
第五章  10KV主接线方案的设计 23

一、主接线的基本要求 23

二、主接线常见形式 23

三、主接线的选择 25

四、酒店主接线选择 25

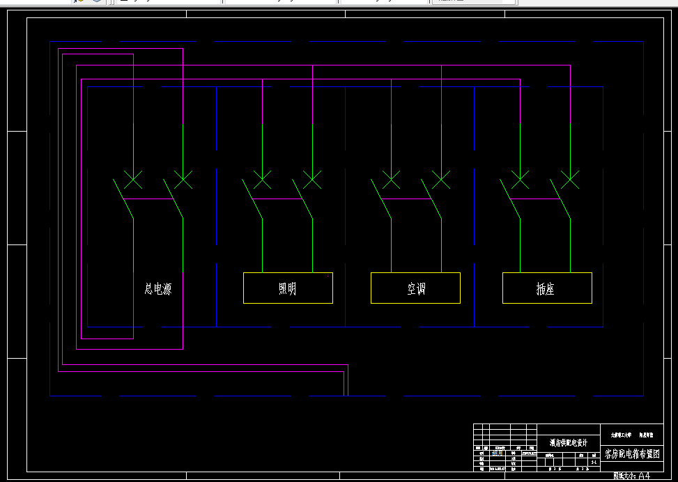
五、低压配电系统设计 26

第六章  电气设备选择 28

一、 电气设备的选择原则 28

二、10KV进线高压侧电气设备的选择 29

三、10kv进线低压侧电气设备的选择 29

四、负荷侧低压电气设备的选择 29

第七章  高低压配电柜的选择 31

第八章  短路电流的计算 33

一、 短路种类 33

二、计算短路电流的目的 33

三、短路电流计算的一般规定 33

第九章  继电保护方案的设计 36

一、变电所各断路器过流保护的设置与配合 36

二、变压器的保护设置 37

第十章  主要电气设备的校验 38

一、 高压电气设备的选择与校验项目 38

二、低压电气设备的选择校验项目 39

外文文献 43

中文文献 49

主要参考文献、资料 54

致谢信 55


温馨提示:

1、题目前面的备注【字母数字编号】为本站整理分类的编号,与课题内容无关,请选题时忽视;

2、若题目上备注三维,则表示文件里包含三维源文件,由于三维组成零件数量较多,为保证预览截图的简洁性,本站将三维文件夹进行了打包。三维及CAD预览截图,均为本站电脑打开软件进行截图的,保证能够打开,下载原件超高清,下载后解压即可;

3、本站所有资源如无特殊说明,都需要本地电脑安装Office2007。图纸软件为AutoCAD,PROE,UG,SolidWorks,CATIA等;

4、本站所有图文资料仅供用户学习参考,不作为任何商用或其他用途;
5、本站不保证下载资源的准确性、安全性和完整性, 不包修改,不支持退换,同时也不承担用户因使用这些下载资源对自己和他人造成任何形式的伤害或损失;

6、 下载文件中如有侵权或不适当内容,请与我们联系,我们立即纠正。


线