

作品包括:
Word版说明书1份,共70页,约29000字
CAD版本图纸,共6张
摘 要
水是人类社会赖以生存和发展的物质基础,是不可或缺、难以代替的重要资源。随着生活水平的提高,人们对水质、水量的要求越来越高,这就要求给排水工程人员予以城市给水系统合理的规划和设计。
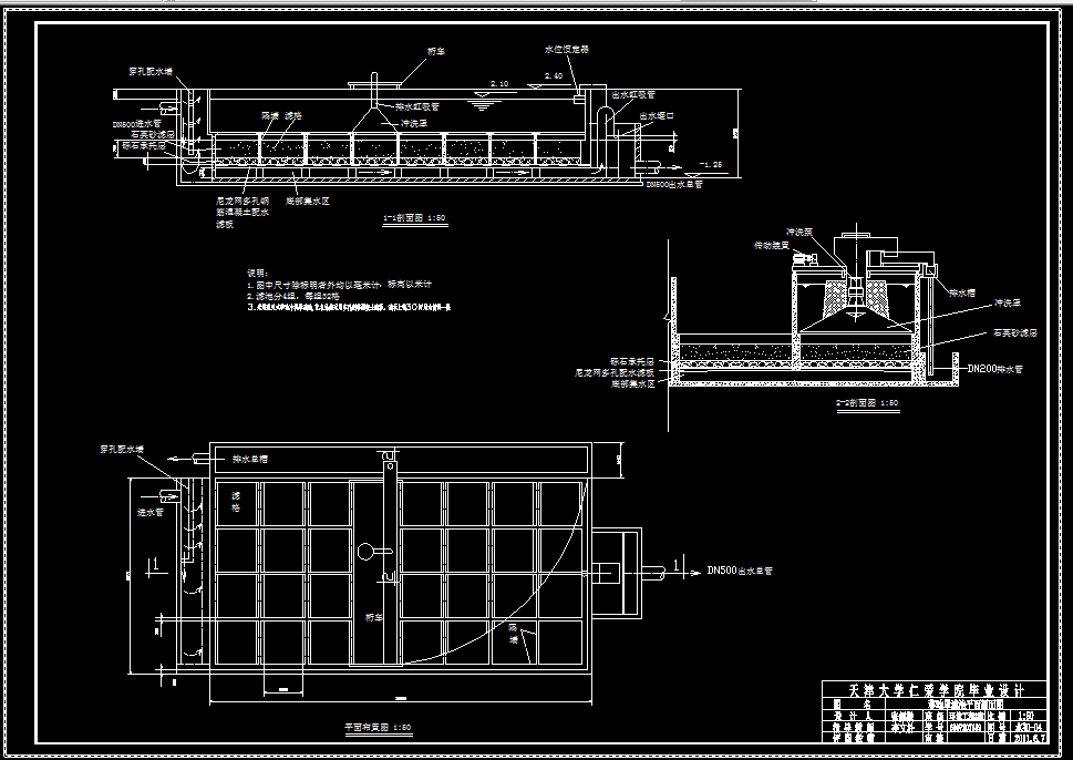
本设计为溧阳市第三自来水厂设计,近期设计规模为60000m3/d,远期设计规模为120000m3/d.
净水工程的设计主要包括净水厂的工艺确定和主要处理构筑物的设计计算。
净水厂的设计包括净水厂的位置选择、水处理工艺流程的确定、处理构筑物的设计计算以及水厂的平面和高程布置。
通过技术经济比较,确定净水厂的工艺流程选用方案:
原水—→静态混合器—→折板絮凝池—→斜管沉淀池—→移动罩滤池—→消毒—→清水池—→二级泵站—→城市管网
关键词:净水工程;静态混合器;絮凝池;斜管沉淀池;移动罩滤池。
目 录
第一章 概论 1
1.1 设计依据及设计范围 1
1.2 原始资料 2
第二章 给水处理工艺流程和给水处理构筑物的选择 5
2.1 净水厂厂址选择 5
2.2 设计原则 5
2.3 水厂工艺流程的确定 6
2.4 水厂平面布置 12
2.5 水厂高程布置 13
2.6 构筑物设计 15
第三章 安全措施 附属构筑物及人员编制 20
3.1 安全措施 20
3.2 附属构筑物及人员编制 20
第四章 各构筑物的设计计算 21
4.1 设计流量计算 21
4.2 加药设备设计计算 21
4.3 混合设备设计计算 23
4.4 絮凝设备设计计算 23
4.5 沉淀设备设计计算 28
4.6 过滤设备设计计算 31
4.7 加氯间设计计算 34
4.8 清水池设计计算 35
4.9 泵站设计计算 39
4.10 净水厂高程计算 43
参考文献 44
外文资料
中文译文
致谢
温馨提示:
1、题目前面的备注【字母数字编号】为本站整理分类的编号,与课题内容无关,请选题时忽视;
2、若题目上备注三维,则表示文件里包含三维源文件,由于三维组成零件数量较多,为保证预览截图的简洁性,本站将三维文件夹进行了打包。三维及CAD预览截图,均为本站电脑打开软件进行截图的,保证能够打开,下载原件超高清,下载后解压即可;
3、本站所有资源如无特殊说明,都需要本地电脑安装Office2007。图纸软件为AutoCAD,PROE,UG,SolidWorks,CATIA等;
4、本站所有图文资料仅供用户学习参考,不作为任何商用或其他用途;
5、本站不保证下载资源的准确性、安全性和完整性, 不包修改,不支持退换,同时也不承担用户因使用这些下载资源对自己和他人造成任何形式的伤害或损失;
6、 下载文件中如有侵权或不适当内容,请与我们联系,我们立即纠正。