欢迎来到龙图网在线图文分享平台-CAD图纸,设计说明书,工业设计3D模型,三维软件下载!   客服QQ:2363701252
热搜:

工艺夹具 模具设计 数控编程 土木工程 3D模型

D535-5000m3d印染废水处理工艺设计 下载积分:150 资料编号: D535

1.打开支付宝或者微信扫描二维码。
2.填写金额:150 
3.添加备注,填写资料编号:
资料编号: D535
4.支付成功后,请发资料编号到邮箱:jxsj168@qq.com
会有专人在15分钟内把资料发到您邮箱
备注:如果付款忘记填写资料编号,则发邮件时附带您的交易明细截图即可。
请耐心等待,如超过30分钟还没收到,请联系客服QQ:2363701252
点击分享:

作品描述

作品包括:

Word版说明书1份,共50页,约19000字

CAD版本图纸,共5张


设计总说明


   印染废水在我国工业废水总量占有很大比例,而且具有碱性强,色度高,有机浓度高,生物降解性差等特点,如不治理,必然会对受纳水体造成严重污染,破坏水体生态系统。

    实践证明,对于印染废水,物化生化法是一种有效的处理工艺,但常规处理方法的效率较低,必须对其进行强化。本设计要求处理水量为5000 m3/d的印染废水。通过对印染废水排放状况进行研究,根据印染废水的特点及在废水处理中取得的成功经验,选择了工艺成熟、稳定、节能、占地少、效率高的水解酸化—接触氧化法,使出水水质达到广东省印染废水污染物排放标准的要求。


关键词:印染废水    水解酸化    接触氧化    混凝沉淀


目录

1 绪论 1

1.1 印染生产概况 1

1.2 印染生产中化学品的使用 1

1.2.1 染料 1

1.2.2 助剂 2

1.3 印染废水来源、水质、水量 2

1.3.1 来源 2

1.3.2 水质及水量 2

1.4 印染废水排放的现状与特点 2

1.4.1 印染废水的现状 2

1.4.2 印染废水的特点 3

1.5 印染废水有害成分的分析 4

1.6 印染废水处理面临的问题 5

1.6.1 排放标准的日益严格 5

1.6.2 印染废水处理难度增加 5

2 印染废水处理技术及发展 6

2.1 物理法处理印染废水的技术 6

2.1.1 吸附法 6

2.1.2 絮凝法 8

2.1.3 膜分离法 9

2.1.4 离子交换法 10

2.2 化学法处理印染废水的技术 10

2.2.1 化学氧化法 10

2.2.2 电化学法 11

2.2.3 光化学法 12

2.3 生物法处理印染废水的技术 12

2.3.1 好氧法 12

2.3.2 厌氧法 13

2.3.3 联合处理技术 13

3 印染废水处理工艺方案及流程 14

3.1 本设计所选工艺 14

3.2 流程简介 15

3.2.1 印染废水处理系统工艺流程框图 15

3.2.2 工艺流程说明 15

4 主要构筑物的设计计算[19] 17

4.1格栅的计算 17

4.2 调节池的计算 19

4.2.1 调节池的作用与意义 19

4.2.2 调节池的设计与计算 19

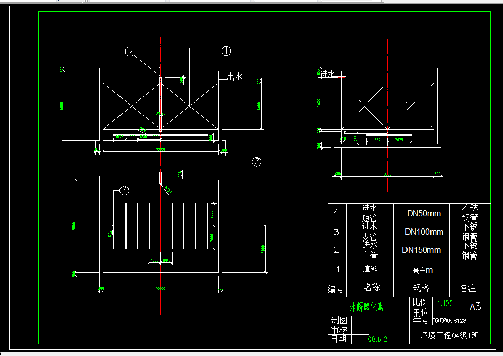
4.3 水解酸化池计算 22

4.4 生物接触氧化池的设计与计算 24

4.4.1 生物接触氧化池设计与计算应考虑的一些因素: 24

4.4.2 BOD容积负荷率 24

4.4.3 计算: 24

4.5 混凝设计 28

4.5.1 混凝反应池设计 28

4.6 竖流式沉淀池的设计与计算 30

4.6.1 中心管计算 30

4.6.2 沉淀区计算 30

4.7 沉淀池出水堰计算 32

4.8 次氯酸钠氧化池 33

4.8.1 次氯酸钠氧化池概况 33

4.8.2 设计计算 33

4.9 清水池的设计 34

4.10 污泥浓缩池的设计与计算 34

4.10.1 容积计算 34

4.10.2 工艺构造尺寸 34

4.10.3 排水和排泥 34

4.11 脱水设备的设计与计算 35

4.12 设备房 36

5 污水处理站总体设计 37

5.1 平面布置 37

5.2 建筑、结构 37

5.3 电气设计 37

5.4 供电系统 37

5.5 配电系统 37

5.6 照明系统 37

6 工程运行成本及技术经济分析 38

6.1 投资成本分析 38

6.1.1 工艺设备,电气以及材料 38

6.2 土建 39

6.3 总投资预算 39

6.4 运行成本分析 39

6.4.1 人员安排 40

6.4.2 电耗 40

6.4.3 药剂消耗费 40

6.4.4 其他费用(包括维修,折旧费用) 40

6.4.5 总运行费用 40

总结 …………………………………………………………………………………41

参考文献 42

致谢 44 


温馨提示:

1、题目前面的备注【字母数字编号】为本站整理分类的编号,与课题内容无关,请选题时忽视;

2、若题目上备注三维,则表示文件里包含三维源文件,由于三维组成零件数量较多,为保证预览截图的简洁性,本站将三维文件夹进行了打包。三维及CAD预览截图,均为本站电脑打开软件进行截图的,保证能够打开,下载原件超高清,下载后解压即可;

3、本站所有资源如无特殊说明,都需要本地电脑安装Office2007。图纸软件为AutoCAD,PROE,UG,SolidWorks,CATIA等;

4、本站所有图文资料仅供用户学习参考,不作为任何商用或其他用途;
5、本站不保证下载资源的准确性、安全性和完整性, 不包修改,不支持退换,同时也不承担用户因使用这些下载资源对自己和他人造成任何形式的伤害或损失;

6、 下载文件中如有侵权或不适当内容,请与我们联系,我们立即纠正。


线