欢迎来到龙图网在线图文分享平台-CAD图纸,设计说明书,工业设计3D模型,三维软件下载!   客服QQ:2363701252
热搜:

工艺夹具 模具设计 数控编程 土木工程 3D模型

D539-1500吨每天线路板废水处理工程设计 下载积分:150 资料编号: D539

1.打开支付宝或者微信扫描二维码。
2.填写金额:150 
3.添加备注,填写资料编号:
资料编号: D539
4.支付成功后,请发资料编号到邮箱:jxsj168@qq.com
会有专人在15分钟内把资料发到您邮箱
备注:如果付款忘记填写资料编号,则发邮件时附带您的交易明细截图即可。
请耐心等待,如超过30分钟还没收到,请联系客服QQ:2363701252
点击分享:

作品描述

作品包括:

Word版说明书1份,共47页,约16000字

CAD版本图纸,共7张


设 计 说 明

        本毕业设计的课题是1500吨/天线路板废水处理工程设计。该工程设计的平均流量是1500t/d,进水水质状况是Cu2+为30~50mg/L ,Ni2+为5~10mg/L,CODcr为700~900 mg/L,PH为3~12,SS为300 mg/L。根据广东省《污染物排放限值》(DB44/26-2001)中第二时段一级标准,排放污水的水质应达到如下指标:Cu2+为0.5 mg/L ,Ni2+为1.0 mg/L, CODcr为90 mg/L,PH为6-9,SS为60 mg/L。

    线路板生产废水,以重金属铜离子污染为主,废水种类复杂,PH变化大,应先分别收集,单独预处理后再集中处理。络合物的处理用化学置换法,但条件许可的话也可用稀释混合法,这样可节约药剂,降低成本。有机物废液经酸化中和反应后,流入调节池,再进行混凝沉淀处理。线路板废水的污泥含有铜、镍等贵重金属,可回收变废为宝。针对线路板废水的这些特点,本设计采用分类处理的物化沉淀为主工艺处理线路板废水。该方法具有工艺简单,处理效果好,构造简单,便于操作和维护等优点,是处理线路板废水的理想工艺,经过处理后的出水各项指标均达到广东省《水污染物排放限值》一级标准。


关键词:线路板废水,重金属,分类处理,物化沉淀

目     录

1 前言 1

1.1 处理废水类型及流量 1

1.2 设计进水水质 1

1.3 设计出水水质 1

1.4 设计依据 1

1.5 设计范畴 2

1.6 设计原则 2

2 线路板废水的处理工艺比较 3

2.1 线路板废水的水质特性 3

2.2 线路板废水处理方案比较 4

2.2.1 离子交换法处理线路板废水 4

2.2.2 气浮法处理线路板废水 5

2.2.3 分类处理的物化沉淀法处理线路板废水 6

2.3 线路板废水处理工艺方案选择 7

3 工程设计 9

3.1 设计计算部分 9

3.2 各构筑物、设备单元设计 9

3.2.1 含镍重金属废水预处理部分设计计算 9

3.2.2 含络合物的废水预处理部分设计计算 10

3.2.3 有机废水预处理部分的设计计算 14

3.2.4 综合废水处理设计计算 20

3.2.5 污泥处理系统的设计计算 28

3.3 线路板废水处理工程设备的选型 31

3.3.1 含络合物的废水预处理部分的设备选型 31

3.3.2 有机废水预处理部分的设备选型 32

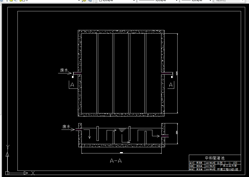
3.3.3 综合调节池到中和絮凝池的设备选型 32

3.3.4 斜管沉淀池的污泥泵选型 33

3.3.5 活性炭吸附池到清水池的泵选型 33

3.4 线路板废水处理工程的总体布置 33

3.4.1 平面布置 33

3.4.2 高程布置 34

4 工程投资概算及效益分析 35

4.1 主要构筑物、建筑物及投资概算一览表 35

4.2 各类设备投资概算一览表 36

4.3 总投资概算 37

4.4 效益分析 37

结语 39

致谢 40

参考文献 41

附录 42


温馨提示:

1、题目前面的备注【字母数字编号】为本站整理分类的编号,与课题内容无关,请选题时忽视;

2、若题目上备注三维,则表示文件里包含三维源文件,由于三维组成零件数量较多,为保证预览截图的简洁性,本站将三维文件夹进行了打包。三维及CAD预览截图,均为本站电脑打开软件进行截图的,保证能够打开,下载原件超高清,下载后解压即可;

3、本站所有资源如无特殊说明,都需要本地电脑安装Office2007。图纸软件为AutoCAD,PROE,UG,SolidWorks,CATIA等;

4、本站所有图文资料仅供用户学习参考,不作为任何商用或其他用途;
5、本站不保证下载资源的准确性、安全性和完整性, 不包修改,不支持退换,同时也不承担用户因使用这些下载资源对自己和他人造成任何形式的伤害或损失;

6、 下载文件中如有侵权或不适当内容,请与我们联系,我们立即纠正。


线