

作品包括:
Word版说明书1份,共40页,约15000字
CAD版本图纸,共5张
摘 要
室内空气中可挥发有机污染物对人体的危害严重影像了人们的生活质量和身体健康,Fenton试剂法处理有机污水的研究较早。在液态时促进化学反应能够极大的提高低溶解性挥发性有机化合物(VOCs)的吸收率,进而提高去除率。
本设计提出采用UV/Fenton法吸收处理硝基苯废气。硝基苯中的硝基为强钝化基,须在较强的条件下硝基苯才能发生亲电取代发应,生成间位产物,生物降解很难。Fenton试剂在紫外灯的照射下,能够产生较多的•OH自由基,使硝基苯被氧化去除,去除效率高。
关键词:有机废气,吸收塔,UV/Fenton法,硝基苯废气
目 录
1 绪论 1
1.1 硝基苯的特性 1
1.2 硝基苯对人体健康的危害 1
1.3 硝基苯的毒理学资料及环境行为 1
1.4 硝基苯有机废气处理的必要性 2
2 常用的净化方法 3
2.1 热力燃烧 3
2.2 催化氧化 4
2.3 炭吸附法 5
2.4 冷凝法 8
2.5 膜分离技术 19
2.6 变压吸附技术 10
2.7 生物处理技术 10
2.8 高压脉冲电晕法 10
2.9 臭氧分解法( Ozonolysis Method) 11
2.10 光分解法( Photeolysis Method) 11
2.11 离子体分解法( Plasma Decomposition) 12
3 UV/Fenton净化处理法 13
3.1 UV/Fenton法氧化机理 13
4 设计资料 15
4.1 硝基苯废气的气量和组成 15
4.2 设计依据与原则 15
4.3 设计原则 15
4.4 设计范围 15
4.4 设计目标 16
5 UV/Fenton净化处理工艺设计 17
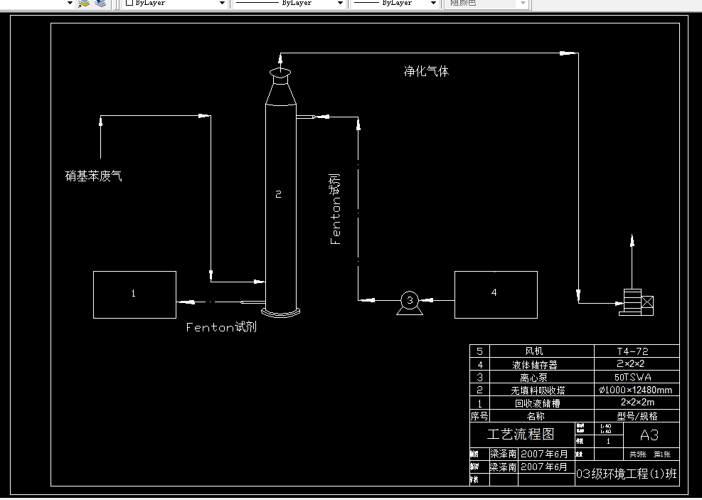
5.1 工艺流程 17
5.2 工艺设计计算 18
5.2.1 吸收塔尺寸的确定 18
5.2.2 喷淋量的确定 19
5.2.3 吸收塔附件的选择 19
5.2.4 吸收塔总压降 22
5.2.5 管网设计 22
5.2.6 风机及配套电机的选择 27
7 工程投资 32
8 运行费用 33
8.1 成本概算有关单价 33
8.2 运行成本概算 33
参 考 文 献 34
致 谢 36
温馨提示:
1、题目前面的备注【字母数字编号】为本站整理分类的编号,与课题内容无关,请选题时忽视;
2、若题目上备注三维,则表示文件里包含三维源文件,由于三维组成零件数量较多,为保证预览截图的简洁性,本站将三维文件夹进行了打包。三维及CAD预览截图,均为本站电脑打开软件进行截图的,保证能够打开,下载原件超高清,下载后解压即可;
3、本站所有资源如无特殊说明,都需要本地电脑安装Office2007。图纸软件为AutoCAD,PROE,UG,SolidWorks,CATIA等;
4、本站所有图文资料仅供用户学习参考,不作为任何商用或其他用途;
5、本站不保证下载资源的准确性、安全性和完整性, 不包修改,不支持退换,同时也不承担用户因使用这些下载资源对自己和他人造成任何形式的伤害或损失;
6、 下载文件中如有侵权或不适当内容,请与我们联系,我们立即纠正。