

作品描述:
Word版说明书一份,24页,6800字左右.
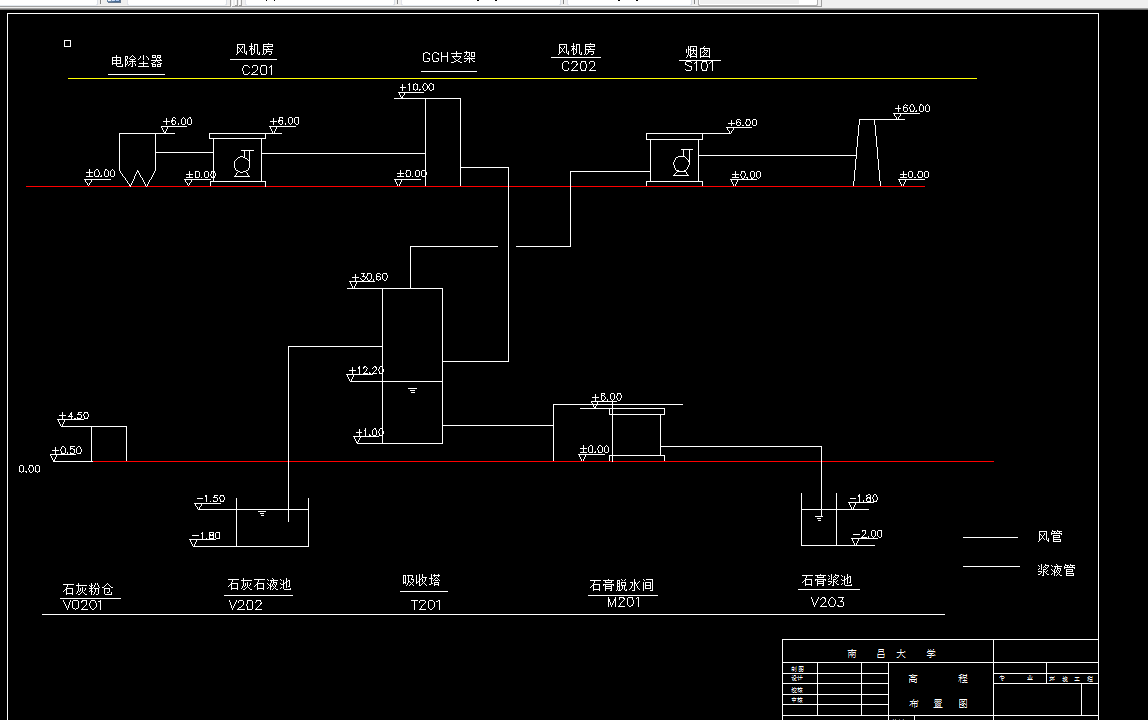
CAD版本图纸,共4张
摘 要
我国是钢铁工业大国,钢铁的年产量居世界首位。烧结是钢铁工业的重要组成部分。在烧结过程中,产生大量的废气,
其中含有较高浓度的粉尘和二氧化硫,依据环保的要求,必须加以治理,才可以排放。
本设计依据烟气的主要参数和国家排放标准的要求,设计首先针对本工程情况,进行了方案论证,最后选择以电除
尘器为主要除尘设备,以喷淋塔为主要脱硫设施,采用石灰石-石膏法,对某钢铁厂130m2烧结机废气进行净化。本设计
最后完成了设计计算说明书一份和部分设计图纸。
[关键词]:喷淋塔,二氧化硫,石灰石-石膏法,烟气脱硫。
目 录
摘要----------------------------------------------------I
Abstract------------------------------------------------II
前言----------------------------------------------------III
第一章 设计说明书
1、概述------------------------------------------------1
2、烧结厂废气治理现状----------------------------1
3、工艺方案比较-------------------------------------2
4、主要处理构筑物及设备说明------------------2
5、主要处理构筑物及设备说明-------------------3
第二章 设计计算书-------------------------------5
1、物料衡算------------------------------------------5
2、旋流板塔的计算---------------------------------6
3、石灰浆槽------------------------------------------9
4、石灰化灰池---------------------------------------9
5、再生反应池---------------------------------------10
6、水利循环加速澄清池---------------------------10
7、斜管沉灰池的设计------------------------------15
8、泵前池---------------------------------------------15
9、烟囱的计算---------------------------------------16
10、引风机的选型------------------------------------17
11、泵的选型---------------------------------------17
第三章 设备及构筑物一览表------------------18
1、设备一览表--------------------------------------18
2、构筑物一览表------------------------------------18
第四章 经济分析----------------------------------19
1、建筑物、构筑物的固定资产基本估算------19
2、运行成本估算------------------------------------19
结论----------------------------------------------------21
参考文献----------------------------------------------22
温馨提示:
1、题目前面的备注【字母数字编号】为本站整理分类的编号,与课题内容无关,请选题时忽视;
2、若题目上备注三维,则表示文件里包含三维源文件,由于三维组成零件数量较多,为保证预览截图的简洁性,本站将三维文件夹进行了打包。三维及CAD预览截图,均为本站电脑打开软件进行截图的,保证能够打开,下载原件超高清,下载后解压即可;
3、本站所有资源如无特殊说明,都需要本地电脑安装Office2007。图纸软件为AutoCAD,PROE,UG,SolidWorks,CATIA等;
4、本站所有图文资料仅供用户学习参考,不作为任何商用或其他用途;
5、本站不保证下载资源的准确性、安全性和完整性, 不包修改,不支持退换,同时也不承担用户因使用这些下载资源对自己和他人造成任何形式的伤害或损失;
6、 下载文件中如有侵权或不适当内容,请与我们联系,我们立即纠正。