

文档包括:
Word版说明书1份,共68页,约23000字
外文翻译一份
CAD版本图纸,共3张
摘 要
机械手是一种能模仿人手的某些动作,代替人完成某些特定工作的自动化装置。它可代替人的繁重劳动以实现生产的机械化和自动化,能在有害环境下操作以保护人身安全,因而广泛应用于机械制造、冶金、电子、轻工和原子能等部门。
本设计主要是二维机械手运动的控制。机械手采用的是两相混合型步进电机作为动力源,应用L298双H桥芯片作为步进电机驱动器来实现步进电机正反转的控制。除机械手步进电机控制外,本设计还要完成传送装置的设计、传感器电路的设计,这些设计配合机械手完成物体的分拣动作。
采用安装在微机 WINDOWS 98系统DOS下的TURBO C软件对微机并口进行编程控制。设计需要完成对射管检测将要被分拣的物体到来和接近开关检测金属和非金属的信号采集,并将采集结果通过微机状态口送入微机,微机根据采集信号的状态通过数据口控制步进电机旋转,横轴和竖轴采取不同的运动组合完成分拣运动,将金属和非金属区分开。
通过本毕业设计,深入了解步进电机的工作原理和工作性能,掌握微机并行接口的工作原理,学会设计步进电机驱动电路和信号传感器的应用电路。在电路制作过程中,学会如何用Protel99se软件进行电路原理图和PCB图的绘制,掌握手工制作PCB板的方法。
关键词:机械手;并行端口;L298
目 录
引言 1
1 绪论 2
1.1 工业机器人的发展历史 2
1.2 国外工业机器人的技术发展现状 2
1.3 我国工业机器人的发展现状 3
2 设计内容、要求及步进电机控制方案选择 5
2.1 控制方案要求及动作图 5
2.1.1横向、纵向运动功能 6
2.1.2状态检测功能 6
2.3 步进电机控制方案选择 6
2.3.1方案一 单电压功率驱动接口 6
2.3.2方案二 高低压功率驱动接口 7
2.3.3方案三 斩波恒流功率驱动接口 7
2.3.4方案四 集成功率驱动接口 8
2.3.5方案示意图 9
3 硬件设计 10
3.1 步进电机简介 10
3.1.1步进电机的基本特点 11
3.1.2进电机原理简介 12
3.2 并行打印机接口介绍 13
3.2.1端口功能介绍 13
3.2.2寄存器地址及控制使用 14
3.2.3接口定位 15
3.2.4TC语言访问并口简介 15
3.3 IEEE1284并口协议及并行口5 种工作模式介绍与选用 16
3.4 光电耦合电路设计 26
3.4.1光电耦合电路的主要作用 26
3.4.2光电耦合电路工作原理 26
3.4.3TLP52-1、TLP52-4简介 27
3.5 步进电机控制电电路设计 28
3.5.1 H 桥型驱动电路设计 28
3.5.2 L298介绍 30
3.5.3步进电机控制框图 31
3.5.4光电隔离电路 32
3.5.5 L298 控制电路 33
3.6 直流电机电路设计 33
3.8限位开关检测电路 34
3.9 接近开关检测电路设计 35
3.9.1接近开关原理介绍 35
3.9.2 接近开关检测电路 35
3.10 对射管检测电路设计 36
3.11电压转换电路设计 36
3.11.1 7805、7812芯片简介 36
3.11.2 电压转换电路设计 37
3.12 USB接口电路设计 38
3.13 系统电路图及其PCB图 39
3.14 元件清单 43
4 软件设计 44
4.1 并口分配 44
4.2 TURBO C程序设计概要 44
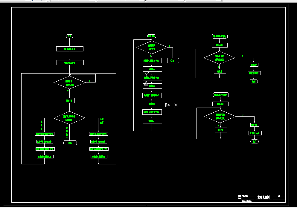
4.3 程序流程图 49
4.4 步进电机控制程序设计 52
4.4.1步进程序设计 52
4.4.2步进电机A、B相线圈正、负调试及程序设计 52
4.4.3机械手横、竖轴起步基准确认程序设计 54
4.4.4物体检测判断程序设计 55
4.4.5金属非金属检测判断设计 56
4.4.6完整控制程序设计 57
4.5 软硬件调试结果 61
5 结论 62
谢辞 63
参考文献 64
温馨提示:
1、题目前面的备注【字母数字编号】为本站整理分类的编号,与课题内容无关,请选题时忽视;
2、若题目上备注三维,则表示文件里包含三维源文件,由于三维组成零件数量较多,为保证预览截图的简洁性,本站将三维文件夹进行了打包。三维及CAD预览截图,均为本站电脑打开软件进行截图的,保证能够打开,下载原件超高清,下载后解压即可;
3、本站所有资源如无特殊说明,都需要本地电脑安装Office2007。图纸软件为AutoCAD,PROE,UG,SolidWorks,CATIA等;
4、本站所有图文资料仅供用户学习参考,不作为任何商用或其他用途;
5、本站不保证下载资源的准确性、安全性和完整性, 不包修改,不支持退换,同时也不承担用户因使用这些下载资源对自己和他人造成任何形式的伤害或损失;
6、 下载文件中如有侵权或不适当内容,请与我们联系,我们立即纠正。