欢迎来到龙图网在线图文分享平台-CAD图纸,设计说明书,工业设计3D模型,三维软件下载!   客服QQ:2363701252
热搜:

工艺夹具 模具设计 数控编程 土木工程 3D模型

F844-动片瓷件的注塑模具设计[含UG三维图] 下载积分:50 资料编号: F844

1.打开支付宝或者微信扫描二维码。
2.填写金额:50 
3.添加备注,填写资料编号:
资料编号: F844
4.支付成功后,请发资料编号到邮箱:jxsj168@qq.com
会有专人在15分钟内把资料发到您邮箱
备注:如果付款忘记填写资料编号,则发邮件时附带您的交易明细截图即可。
请耐心等待,如超过30分钟还没收到,请联系客服QQ:2363701252
点击分享:

作品描述

作品包括:

Word版说明书1份,共24页,约6200字

开题报告一份

CAD版本图纸,共7张

UG三维图一份


摘 要


动片瓷件是典型的注塑件,根据计算结果和选用的标准模架,可以判定此模具可以采用标准模架;为了保证制件的顺利取件,模具必须有足够的高度,才能取下制件;此模具设计需要运用NX8.5、AutoCAD 2012等常用软件,对动片瓷件的结构分析,制件尺寸的合理性进行设计,文章涉及到动片瓷件的工艺分析、结构设计及相关的计算、模具加热和冷却系统等内容。

关键词:注塑件;动片瓷件;加热冷却

 

 

目 录


前  言 1

1  塑件成型工艺分析 2

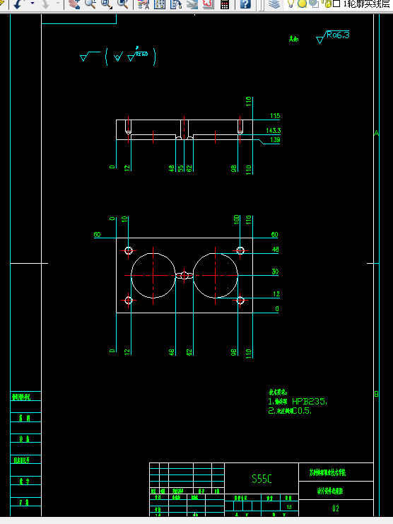
1.1 动片瓷件的结构设计 2

1.1.1 动片瓷件零件图纸 2

1.1.2 动片瓷件零件尺寸介绍 2

1.2 动片瓷件材料选择及成型加工性能 2

1.2.1 塑件的材料选择 2

1.2.2 ABS的成型加工性能 3

1.3塑件工艺性分析 3

1.3.1 塑件的结构和尺寸精度及表面质量分析 3

1.3.2 结构分析 3

1.3.3 尺寸精度及表面质量分析 3

2型腔数目和分布 5

2.1 塑件在模具中型腔数目及分布 5

2.1.1 型腔数目的确定 5

2.1.2 型腔的分布 5

3 浇注系统设计 6

3.1 主流道、分流道、浇口设计 6

3.1.1 主流道设计 6

3.1.2 分流道设计 6

3.1.3 浇口设计 7

3.2 成型零件结构设计 7

3.3 推出机构设计 8

3.3.1 推出机构的设计原理及零件图 8

3.3.2 推出机构的导向与复位 9

4 模具加热与冷却系统设计 10

4.1 加热系统设计 10

4.2 冷却系统设计 10

4.2.1 冷却回路尺寸的确定 10

4.2.2 冷却回路的布置 10

5 模架的选择 11

6 注塑机的选择 12

6.1模具闭合高度 12

6.2注塑机参数 12

7 模具总装图及零件工作图 13

7.1模具总装图 13

7.2模具零件图 14

总 结 16

致 谢 17

参考文献 18


温馨提示:

1、题目前面的备注【字母数字编号】为本站整理分类的编号,与课题内容无关,请选题时忽视;

2、若题目上备注三维,则表示文件里包含三维源文件,由于三维组成零件数量较多,为保证预览截图的简洁性,本站将三维文件夹进行了打包。三维及CAD预览截图,均为本站电脑打开软件进行截图的,保证能够打开,下载原件超高清,下载后解压即可;

3、本站所有资源如无特殊说明,都需要本地电脑安装Office2007。图纸软件为AutoCAD,PROE,UG,SolidWorks,CATIA等;

4、本站所有图文资料仅供用户学习参考,不作为任何商用或其他用途;
5、本站不保证下载资源的准确性、安全性和完整性, 不包修改,不支持退换,同时也不承担用户因使用这些下载资源对自己和他人造成任何形式的伤害或损失;

6、 下载文件中如有侵权或不适当内容,请与我们联系,我们立即纠正。


线