

作品包括:
Word版说明书一份,共65页,约39000字
外文翻译一份
CAD版本图纸,共22张:
摘 要
随着与国际接轨的脚步不断加快,市场竞争的日益加剧,人们已经越来越认识到产品质量、成本和新产品的开发能力的重要性。而模具制造是整个链条中最基础的要素之一,模具制造技术现已成为衡量一个国家制造业水平高低的重要标志,并在很大程度上决定企业的生存空间。
虽然中国模具工业在过去十多年中取得了令人瞩目的发展,但许多方面与工业发达国家相比仍有较大的差距。例如,CAD/CAE/CAM技术的普及率不高;许多先进的模具技术应用不够广泛等等,致使相当一部分大型、精密、复杂和长寿命模具依赖进口。
本说明书结合电梯踏板的模具设计系统地阐述了压铸与模锻技术的基本原理,分析了压铸与模锻工艺主要参数的确定方法,论述了压铸模与锻模主要零部件设计方法,并介绍了模具的加工制造及维修保养。
关键词:压铸 模具 加工制造 维修保养
目 录
1 压铸工艺概论 ……………………………………………………………………1
1.1 压铸生产过程和特点 ………………………………………………………1
1.1.1 压铸生产过程…………………………………………………………1
1.1.2压铸特点 ……………………………………………………………1
1.2 压铸合金的基本要求和种类 ……………………………………………… 2
1.2.1对压铸合金的基本要求 ………………………………………………2
1.2.2压铸合金的种类 ………………………………………………………2
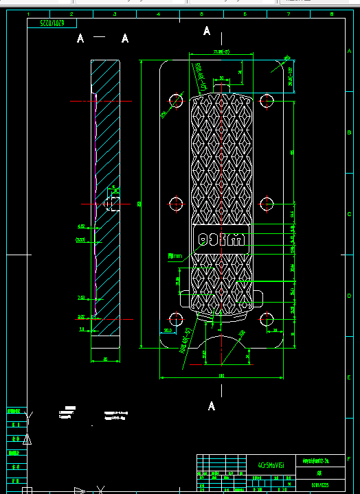
1.3 压铸件的结构工艺性…………………………………………………………4
1.3.1壁厚 ……………………………………………………………………4
1.3.2 铸孔 ……………………………………………………………………4
1.3.3 铸造圆角和脱模斜度 ………………………………………………4
1.3.4 螺纹、齿轮和槽隙 …………………………………………………5
1.3.5 图案、文字和标志 …………………………………………………6
1.3.6 镶嵌件 ………………………………………………………………6
1.4 压铸主要工艺参数的选择与调整 …………………………………………7
1.4.1压力 ……………………………………………………………………7
1.4.2速度 ……………………………………………………………………9
1.4.3温度 …………………………………………………………………10
1.4.4时间 …………………………………………………………………12
1.4.5涂料 …………………………………………………………………12
2 压铸机 …………………………………………………………………………14
2.1 压铸机的种类和工作原理…………………………………………………14
2.1.1压铸机的型号和种类…………………………………………………14
2.1.2压铸机结构形式和压铸过程…………………………………………13
2.1.3压铸机的主要技术参数 ……………………………………………18
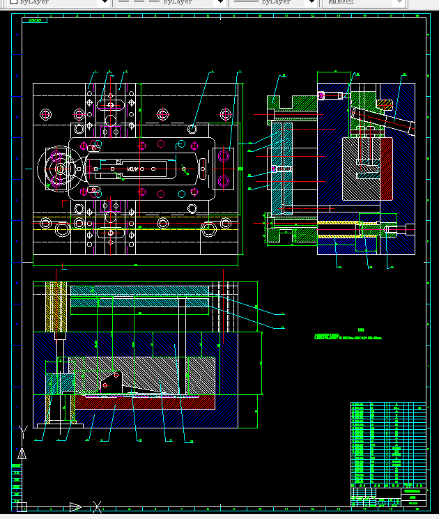
3 踏板的压铸模具设计 …………………………………………………………20
3.1压铸机的选用 ……………………………………………………………20
3.1.1锁模力计算 …………………………………………………………20
3.1.2压室容量 ……………………………………………………………22
3.1.3 开模距离 ……………………………………………………………23
3.1.4 装模尺寸 ……………………………………………………………23
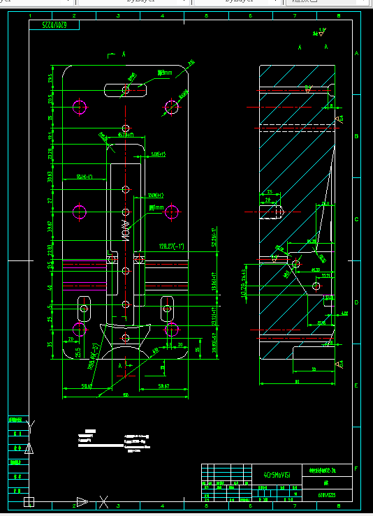
3.2浇铸系统和溢流、排气系统的设计 ………………………………………23
3.2.1 内浇口的设计 ………………………………………………………24
3.2.2 直浇道的设计 ………………………………………………………26
3.2.3 横浇道的设计…………………………………………………………27
3.2.4溢流槽和排气槽的设计………………………………………………28
3.2.5动、定模导柱和导套的设计…………………………………………29
3.2.6模板的设计……………………………………………………………30
3.2.7 抽芯结构的设计………………………………………………………34
3.2.8 推出机构的设计 ……………………………………………………35
3.2.9模具厚度与动模座板行程的核算 …………………………………37
4 压铸模的技术要求及选材 ……………………………………………………39
4.l 压铸模总装的技术要求…………………………………………………39
4.1.1 压铸模装配图上需注明的技术要求…………………………………39
4.1.2压铸模外形和安装部位的技术要求 …………………………………40
4.1.3 总体装配精度的技术要求 ……………………………………………41
4.2 结构零件的公差与配合…………………………………………………41
4.2.1结构零件轴与孔朗配合和精度 ………………………………………41
4.2.2 滑动零件的配合 ………………………………………………………41
4.3 零件的表面粗糙度 ………………………………………………………42
4.4 压铸模零件的材料选择及热处理要求 …………………………………43
4.4.1 压铸模所处的工作状况及对模具的影响……………………………43
4.4.2 影响压铸模寿命的因素及提高模具寿命的措施 ……………………44
4.4.3 压铸模材料的选择和热处理 ……………………………………46 模具的加工制造及维修保养 ……………………………………………47
5.1 金属模具的加工制造 …………………………………………………… 47
5.1.1 金属模县毛坯的获取方法 ……………………………………………47
5.1.2模样及铸型 ……………………………………………………………47
5.1.3 金属模具的机械加工 …………………………………………………50
5.2模具的快速制造 ……………………………………………………………60
5.2.1 快速成形技术的原理、主要方法及特点…………………………… 60
5.2.2 模具毛坯的快速制造方法 ………………………………………… 62
5.3 铸造模具的维护保养 ……………………………………………………64
5.3.1铸模的预防性维护保养 …………………………………………… 64
5.3.2铸模的修复性维护 …………………………………………………65
5.3.3工装模具的清洗技术………………………………………………… 68
参考文献 ……………………………………………………………… 71
温馨提示:
1、题目前面的备注【字母数字编号】为本站整理分类的编号,与课题内容无关,请选题时忽视;
2、若题目上备注三维,则表示文件里包含三维源文件,由于三维组成零件数量较多,为保证预览截图的简洁性,本站将三维文件夹进行了打包。三维及CAD预览截图,均为本站电脑打开软件进行截图的,保证能够打开,下载原件超高清,下载后解压即可;
3、本站所有资源如无特殊说明,都需要本地电脑安装Office2007。图纸软件为AutoCAD,PROE,UG,SolidWorks,CATIA等;
4、本站所有图文资料仅供用户学习参考,不作为任何商用或其他用途;
5、本站不保证下载资源的准确性、安全性和完整性, 不包修改,不支持退换,同时也不承担用户因使用这些下载资源对自己和他人造成任何形式的伤害或损失;
6、 下载文件中如有侵权或不适当内容,请与我们联系,我们立即纠正。