欢迎来到龙图网在线图文分享平台-CAD图纸,设计说明书,工业设计3D模型,三维软件下载!   客服QQ:2363701252
热搜:

工艺夹具 模具设计 数控编程 土木工程 3D模型

G150-客车上车门垫板零件的冲裁模模具设计-长375 下载积分:50 资料编号: G150

1.打开支付宝或者微信扫描二维码。
2.填写金额:50 
3.添加备注,填写资料编号:
资料编号: G150
4.支付成功后,请发资料编号到邮箱:jxsj168@qq.com
会有专人在15分钟内把资料发到您邮箱
备注:如果付款忘记填写资料编号,则发邮件时附带您的交易明细截图即可。
请耐心等待,如超过30分钟还没收到,请联系客服QQ:2363701252
点击分享:

作品描述

作品包括:

Word版说明书一份,共22页,约5700字

CAD版本图纸,共3张


摘要

  本设计根据生产实践过程中对冲压件,冲压实践性的设计。随着近代工业的发展,相当多的工业部门越来越多的采用冷冲压加工产品零部件,尤其是在大批量生产中十分广泛。不少过去用铸造、锻造、切削加工的零件,现在已被质量轻,刚度好的冲压件所代替。通过冲压加工制造,大大提高了生产率,降低了成本。可以说,如果在生产中不广泛采用冲压工艺,许多工业部门的产品要提高生产率、提高质量,降低成本,进行产品的更新换代是很难实现的

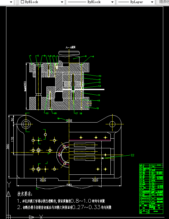
冲件图样分析、分析该冲压件工艺过程设计的可能方案,具体计算和设计该方案各工序的工艺参数,设计绘制冲压工序所用的模具图。

设计图样全部用计算机绘制,符合最新制图标准;投影正确,表达完整,布局合理。注重模具结构和装配要求,功能满足,实用可靠。

目      录



第1章:设计任务书……………………………………………………………………(1)


第2章:冲压设计的基本内容及步骤………………………………………………  (2) 

2.1、零件的工艺分析…………………………………………………………  (2) 

2.2、确定零件的方案………………………………………………………… (3)

2.3、选择定位方式……………………………………………………………(4)

2.4、选择卸料方式……………………………………………………………(4)

2.5、冲裁工艺计算…………………………………………………………  (5)

     2.5.1  凸凹模间隙值的确定………………………………………  (5)

      2.5.2  工艺与设计计算………………………………………………(7)

           2.5.2.1  冲裁力的计算……………………………………… (7)

           2.5.2.2  压力中心的计算…………………………………… (7)

           2.5.2.3  各主要零件的尺寸………………………………… (8)

           2.5.2.4  计算侧压力………………………………………… (11)

           2.5.2.5  模具总体设计……………………………………… (11)

           2.5.2.6  选定设备…………………………………………… (12)

           2.5.2.7  绘制各零件图……………………………………  (13)

           2.5.2.8  模具装配图…………………………………………(15)

2.6   冲压工艺卡片绘制……………………………………………………(16)

第3章     设计总结……………………………………………………………… (17)

参考文献………………………………………………………………………………(19)

附录


温馨提示:

1、题目前面的备注【字母数字编号】为本站整理分类的编号,与课题内容无关,请选题时忽视;

2、若题目上备注三维,则表示文件里包含三维源文件,由于三维组成零件数量较多,为保证预览截图的简洁性,本站将三维文件夹进行了打包。三维及CAD预览截图,均为本站电脑打开软件进行截图的,保证能够打开,下载原件超高清,下载后解压即可;

3、本站所有资源如无特殊说明,都需要本地电脑安装Office2007。图纸软件为AutoCAD,PROE,UG,SolidWorks,CATIA等;

4、本站所有图文资料仅供用户学习参考,不作为任何商用或其他用途;
5、本站不保证下载资源的准确性、安全性和完整性, 不包修改,不支持退换,同时也不承担用户因使用这些下载资源对自己和他人造成任何形式的伤害或损失;

6、 下载文件中如有侵权或不适当内容,请与我们联系,我们立即纠正。


线