

作品包括:
Word版说明书一份,26页,约13000字
外文翻译一份
CAD版本图纸,共33张
YZJ1956立式铣床总体及夹具设计
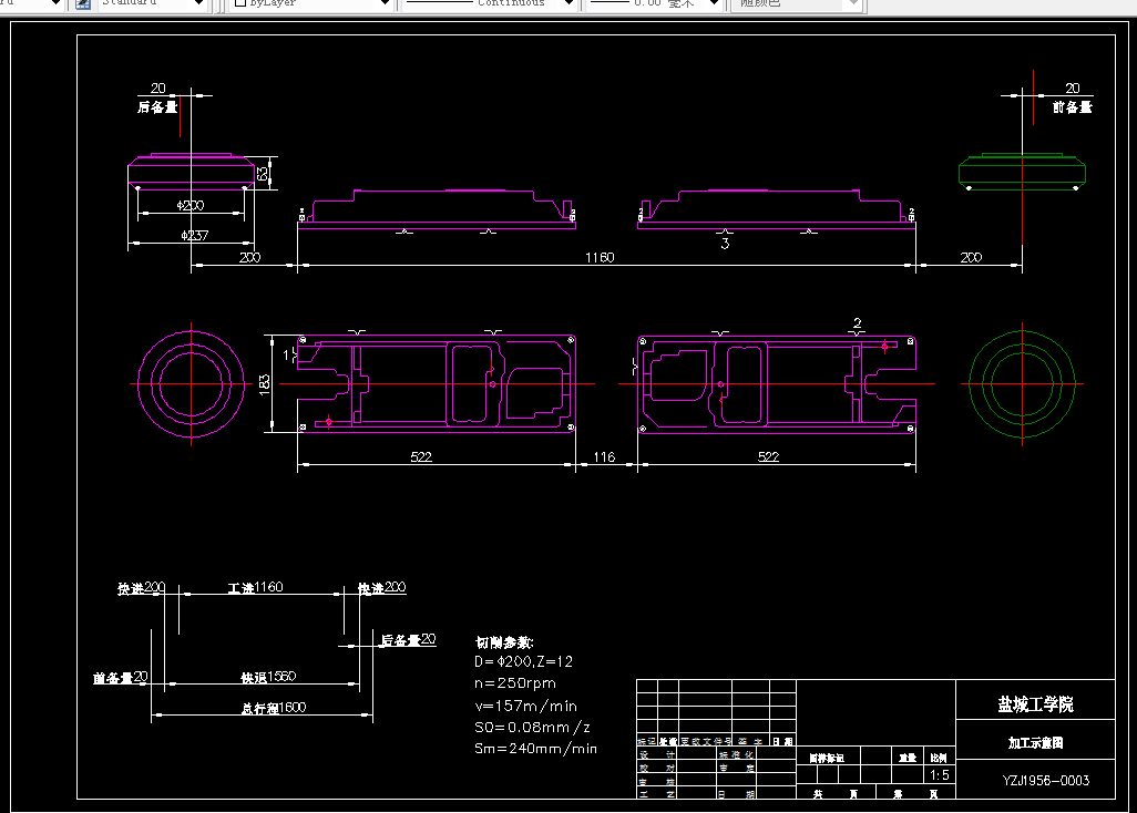
摘要:本设计课题来源于江苏恒力组合机床有限公司。底板是需要大量生产的零件,为了提高加工精度和生产效率,需要设计一种液压自动夹紧的组合机床来改善底板的加工情况。本组合机床是针对底板下平面的半精加工的需要而设计的。该设计的内容包括总体设计和夹具设计两方面。在总体设计中分析了被加工零件的加工工艺性,选择了加工的定位基准及夹紧方案,合适的切削用量、刀具、及机床的配置型式,合适的结构方案等,同时完成了“三图一卡”的绘制。在夹具设计方面,采用了专用夹具,用符合六点定位原则的“三平面”定位方案消除工件的六个自由度,使工件获得稳定可靠的定位,并可以同时加工两个零件,能高度集中工序。夹紧装置则选用比较安全、可靠、方便的液压夹紧装置,使夹紧平稳可靠。本组合机床效率高,成本低,加工精度高,操作使用方便,减轻了工人的劳动强度,提高了劳动生产率,满足了设计需要。
关键词:组合机床;夹具;底板
目 录
1 前言 1
2 组合机床总体设计 3
2.1 总体方案论证 3
2.1.1 加工对象工艺性分析 3
2.1.2 机床配置型式的选择 3
2.1.3 定位基准的选择 3
2.2 确定切削用量及选择刀具 4
2.2.1 选择切削用量 4
2.2.2 计算切削力、切削扭矩及切削功率 5
2.2.3 刀具耐用度的计算 6
2.2.4 选择刀具结构 6
2.3 三图一卡设计 6
2.3.1 被加工零件工序图 6
2.3.2 加工示意图 7
2.3.3 机床联系尺寸图 7
2.3.4 机床生产率计算卡 8
3 组合机床夹具设计 11
3.1.1 零件的工艺性分析 11
3.1.2 夹具设计的基本要求 11
3.1.3 夹具总体结构构思 11
3.2 定位方案的确定 12
3.2.1 定位方案的论证 12
3.2.2 定位基准的选择 12
3.2.3 定位的实现方法 12
3.3 误差分析 13
3.3.1影响加工精度的因素 13
3.3.2保证加工精度的条件 14
3.4 夹紧方案确定 14
3.4.1 夹紧装置的确定 14
3.4.2 夹紧力的确定 16
3.4.3 夹紧液压缸的选择 17
3.5 夹具体的确定 18
4 结论 19
参考文献 20
致 谢 21
附 录 22
温馨提示:
1、题目前面的备注【字母数字编号】为本站整理分类的编号,与课题内容无关,请选题时忽视;
2、若题目上备注三维,则表示文件里包含三维源文件,由于三维组成零件数量较多,为保证预览截图的简洁性,本站将三维文件夹进行了打包。三维及CAD预览截图,均为本站电脑打开软件进行截图的,保证能够打开,下载原件超高清,下载后解压即可;
3、本站所有资源如无特殊说明,都需要本地电脑安装Office2007。图纸软件为AutoCAD,PROE,UG,SolidWorks,CATIA等;
4、本站所有图文资料仅供用户学习参考,不作为任何商用或其他用途;
5、本站不保证下载资源的准确性、安全性和完整性, 不包修改,不支持退换,同时也不承担用户因使用这些下载资源对自己和他人造成任何形式的伤害或损失;
6、 下载文件中如有侵权或不适当内容,请与我们联系,我们立即纠正。