

作品包括:
word说明书一份,共26页,约8700字
工序卡一份
过程卡一份
CAD版本图纸,共5张

目 录
序 言 ………………………………………………………………………………………
任务书…………………………………………………………………………………………
第一章 阀体的加工工艺设计………………………………………………………
1.1 零件图的工艺分析………………………………………………………….
1.11零件结构功用分析……………………………………………………………………:
1.21零件图纸分析…………………………………………………………………………
2.2.1 毛坯的结构确定………………………………………………………….
2.1.1毛坯的结构工艺要求……………………………………………………………………
2.2.1毛坯类型………………………………………………………………………………..
2.3.1毛坯余量确定……………………………………………………………………………….
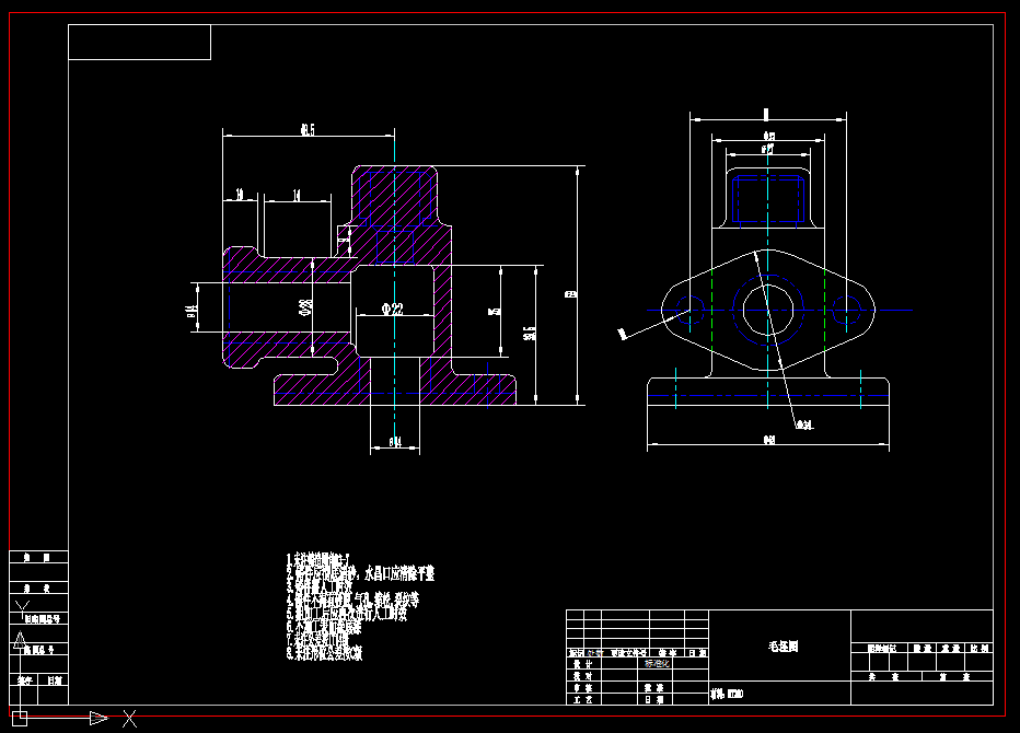
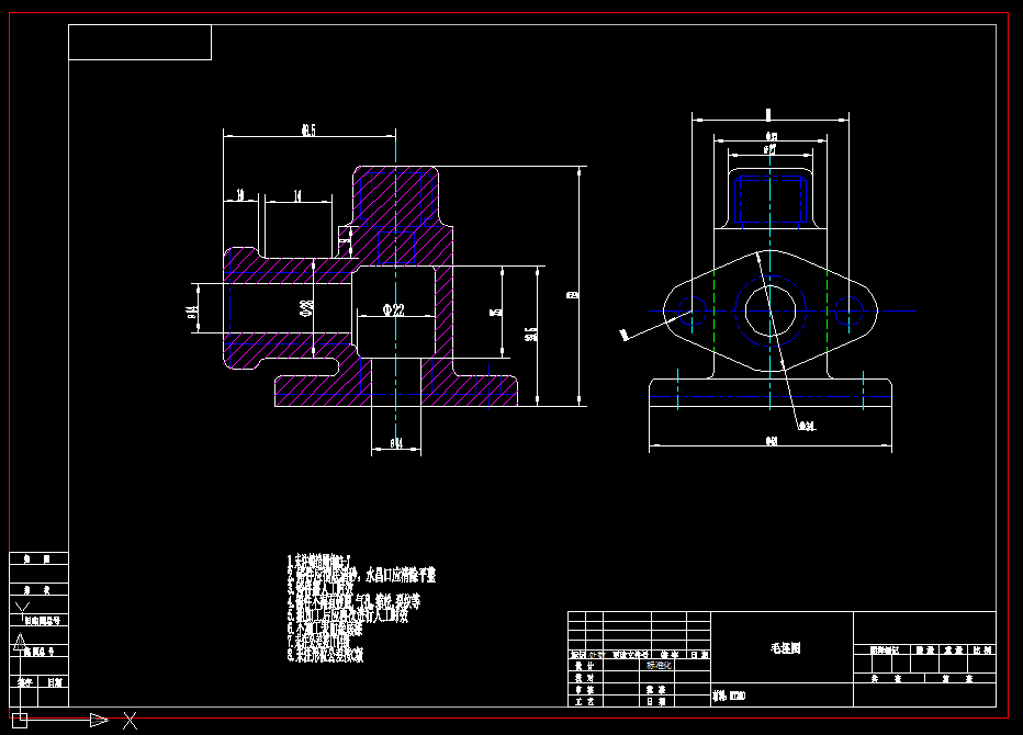
2.4.1毛坯-零件合图草图 3
3.1.1 基准的选择……………………………………………………
4.1.1 加工方法选择的原则
4.1.2 加工阶段的划分
4.1.3 工序的合理组合
5. 1 制定工艺路线
5.1.1 工艺路线方案………………………………………………………………………………
5.1.2 制定工艺路线如下:……………………………………………………………………….
5.2.1机械加工余量、工序尺寸及毛坯尺寸的确定…………………………………………….
5.3.1 设备及其工艺装备确定…………………………………………………………………….
5.3.2确定切削用量及基本工时……………………………………………………………….
小结……………………………………………………………………………………………
第二章 专用夹具设计
1.1铣φ68外圆端面夹具………………………………………………………………………
1.1.1定位基准的选择
1.1.2定位元件的设计
1.1.3定位误差的分析
1.1.4夹具体槽形与对刀装置设计
3.2.6夹紧装置及夹具体设计
3.2.7夹具设计及操作的简要说明
结 论
参考文献
温馨提示:
1、题目前面的备注【字母数字编号】为本站整理分类的编号,与课题内容无关,请选题时忽视;
2、若题目上备注三维,则表示文件里包含三维源文件,由于三维组成零件数量较多,为保证预览截图的简洁性,本站将三维文件夹进行了打包。三维及CAD预览截图,均为本站电脑打开软件进行截图的,保证能够打开,下载原件超高清,下载后解压即可;
3、本站所有资源如无特殊说明,都需要本地电脑安装Office2007。图纸软件为AutoCAD,PROE,UG,SolidWorks,CATIA等;
4、本站所有图文资料仅供用户学习参考,不作为任何商用或其他用途;
5、本站不保证下载资源的准确性、安全性和完整性, 不包修改,不支持退换,同时也不承担用户因使用这些下载资源对自己和他人造成任何形式的伤害或损失;
6、 下载文件中如有侵权或不适当内容,请与我们联系,我们立即纠正。