欢迎来到龙图网在线图文分享平台-CAD图纸,设计说明书,工业设计3D模型,三维软件下载!   客服QQ:2363701252
热搜:

工艺夹具 模具设计 数控编程 土木工程 3D模型

i994-装载机智能称重仪设计 下载积分:50 资料编号: i994

1.打开支付宝或者微信扫描二维码。
2.填写金额:50 
3.添加备注,填写资料编号:
资料编号: i994
4.支付成功后,请发资料编号到邮箱:jxsj168@qq.com
会有专人在15分钟内把资料发到您邮箱
备注:如果付款忘记填写资料编号,则发邮件时附带您的交易明细截图即可。
请耐心等待,如超过30分钟还没收到,请联系客服QQ:2363701252
点击分享:

作品描述

作品阿包括:

Word说明书1份,共65页,约32000字

CAD版本图纸,共3张


摘  要


随着称重技术的不断发展,人们对称重的测量精度和自动化程度提出了越来越高的要求。传统的机械式称重仪,不仅称重过程复杂、不能够保证精度,而且不具有自动去皮、累加和超载报警等功能。设计为智能型称重仪,与装载机设备配合使用,可以防止装载机装车时引起货车超载造成铁路行车事故发生,同时防止亏吨,确保客户的满意。它主要用于当装载机为铁路货车装载散堆料时,能自动显示每斗净重,同时累加重量,并且装满报警,保证货车车皮不超载、不亏吨。

在设计的过程中,在保证仪器精度、稳定性和可靠性的前提下,尽量使仪器具有简单的结构。按此原则,设计采用模块化设计思路,将整个仪器分为压力传感器,电源电路,信号调理及放大电路,A/D转换,显示电路,单片机系统几个部分进行分析和设计


关键词:单片机,传感器,放大电路,A/D转换电路 


目  录


中文摘要 I

英文摘要 II

第一章  绪论 1

1.1 问题的提出 1

1.2 设计目的以及功能要求 1

1.3 传感器的重要性及国内外的发展趋势 2

1.4 本文的主要内容和意义 3

第二章 总体方案设计 4

2.2 称重测量原理 4

2.3 总体方案的确定 5

第三章 称重传感器设计 7

3.1 传感器概述 7

3.1.1 传感器定义及其组成 7

3.1.3 对传感器的要求 8

3.2 电阻应变式传感器 9

3.2.1 弹性敏感元件 9

3.2.2 电阻应变片的结构和分类 13

3.2.3 电阻应变式传感器的工作原理 14

3.2.4 电阻应变片的变换电路 16

3.2.5 压力传感器测量电路 20

3.3称重传感器设计 20

3.3.1 概述 20

3.3.2 基本原理及结构计算 21

第四章 电源电路 25

4.1基本稳压电路 25

4.2集成稳压元器件的选择 26

4.3 稳压电路的设计 28

第五章 传感器信号放大电路 30

5.1 前置放大器与传感器的配接特点 30

5.2 差动放大器的基本原理 31

5.2.1 分析推导输出与输入基本关系的依据 31

5.2.2 差动输入放大电路闭环放大倍数的计算 32

5.3 差动输入比例放大器的误差分析 33

5.4  实际放大电路的设计 33

5.4.1 信号放大器的选择 33

5.4.2 集成运算放大器的应用及主要特性参数 35

5.4.3 电路结构 37

第六章 A/D转换电路 39

6.1 A/D转换电路的选择 39

6.1.1 A/D转换电路的主要参数 39

6.1.2 双积分A/D转换电路的工作原理 39

6.2 A/D转换芯片的选择 41

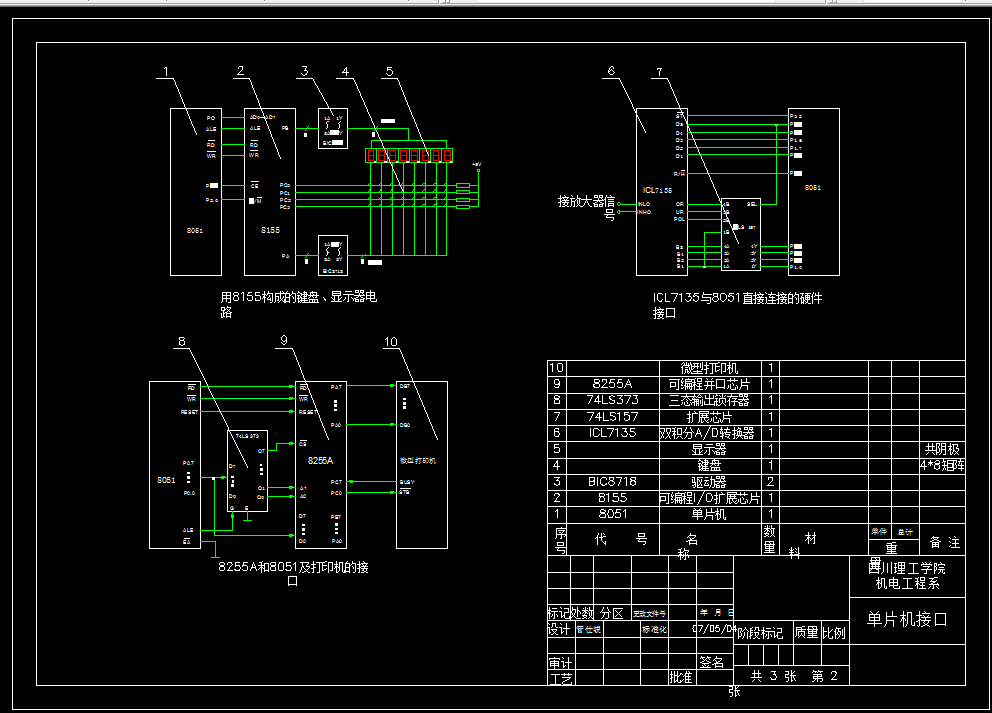
6.2.1 四位半双积分型A/D转换器ICL7135 41

6.2.2 ICL7135的输出时序 43

6.2.3 积分电阻、电容的参数选择 44

6.2.4 内部结构及转换原理 44

第七章  单片机系统 45

7.1  MCS-51系列单片机的结构 45

7.1.1 MCS-51单片机的基本组成 45

7.1.2 MCS-51系列 46

7.1.3 8051单片机的内部结构 46

7.2 8051单片机的引脚及其功能 47

7.3  MCS-51系列单片机接口设计 48

7.3.1 A/D转换器与MCS-51单片机的接口设计 49

7.3.2 由8155构成的显示器接口电路 50

7.3.3 打印机和MCS-51单片机的接口设计 50

第八章 自动控制定高测量系统 52

8.1 工作原理 52

第九章  结论 54

参 考 文 献 56

致 谢 57

温馨提示:

1、题目前面的备注【字母数字编号】为本站整理分类的编号,与课题内容无关,请选题时忽视;

2、若题目上备注三维,则表示文件里包含三维源文件,由于三维组成零件数量较多,为保证预览截图的简洁性,本站将三维文件夹进行了打包。三维及CAD预览截图,均为本站电脑打开软件进行截图的,保证能够打开,下载原件超高清,下载后解压即可;

3、本站所有资源如无特殊说明,都需要本地电脑安装Office2007。图纸软件为AutoCAD,PROE,UG,SolidWorks,CATIA等;

4、本站所有图文资料仅供用户学习参考,不作为任何商用或其他用途;
5、本站不保证下载资源的准确性、安全性和完整性, 不包修改,不支持退换,同时也不承担用户因使用这些下载资源对自己和他人造成任何形式的伤害或损失;

6、 下载文件中如有侵权或不适当内容,请与我们联系,我们立即纠正。


线